Добавить в корзинуПозвонить
Найти в Дзене
starcom68

Тридцатая батарея. Орудийный блок

Продолжаю рассказ об устройстве легендарной 305-мм башенной 30-ой береговой батарее крепости Севастополь. Познакомиться с этим уникальным объектом фортификационного наследия нам помогают ценнейшие фотографии, сделанные еще в 2005 году. В рамках проекта "Весь Крым 2016"  мы попробовали попасть на этот объект в качестве туристов, но эта попытка была бескомпромиссно пресечена в зародыше. В предыдущих постах я рассказал о том, как выглядит снаружи огневая позиция батареи и ее броневые башенные трехорудийные установки МБ-3-12 ФМ, а так же как устроены башни изнутри. Тема 30-ой батареи раскрывается постепенно в нескольких постах и ее интересно переплетать с рассказом о 305-мм Ворошиловской батарее на острове Русский для сравнения. Ведь на той и на другой стоят орудийные башни еще царского линкора "Полтава", правда построены батареи были в разное время.
Теперь пройдем в орудийный блок и осмотрим его. Спустившись с огневой позиции, мы с вами оказываемся перед входом в орудийный блок через л

Продолжаю рассказ об устройстве легендарной 305-мм башенной 30-ой береговой батарее крепости Севастополь. Познакомиться с этим уникальным объектом фортификационного наследия нам помогают ценнейшие фотографии, сделанные еще в 2005 году. В рамках проекта "Весь Крым 2016"  мы попробовали попасть на этот объект в качестве туристов, но эта попытка была бескомпромиссно пресечена в зародыше.

В предыдущих постах я рассказал о том, как выглядит снаружи огневая позиция батареи и ее броневые башенные трехорудийные установки МБ-3-12 ФМ, а так же как устроены башни изнутри. Тема 30-ой батареи раскрывается постепенно в нескольких постах и ее интересно переплетать с рассказом о 305-мм Ворошиловской батарее на острове Русский для сравнения. Ведь на той и на другой стоят орудийные башни еще царского линкора "Полтава", правда построены батареи были в разное время.
Теперь пройдем в орудийный блок и осмотрим его.

Левый сквозник входа в орудийный блок
Левый сквозник входа в орудийный блок

Спустившись с огневой позиции, мы с вами оказываемся перед входом в орудийный блок через левый сквозник (69). Здесь и далее я буду давать номера помещений по нижеприведенной схеме 1932 года.
Одноэтажный орудийный блок батареи длиной около 130 м и шириной 50 м имел в горжевой части два входа с броневыми дверьми и тамбур-шлюзами, защищенных коленчатыми сквозниками.
Все казематы орудийного блока имели сводчатые покрытия из монолитного железобетона толщиной от 3 до 4 м с жестким противооткольным слоем из стальных швеллеров №30 и изолирующей прослойкой из асфальтобетона.

Вход через левый сквозник на момент моего посещения батареи использовался как основной. На фотографии хорошо видны двутавры для крепления маскировки и монорельс для подачи боеприпасов в орудийный блок. Так же хорошо заметны следы послевоенного ремонта и перестройки некоторых частей портала сквозника...
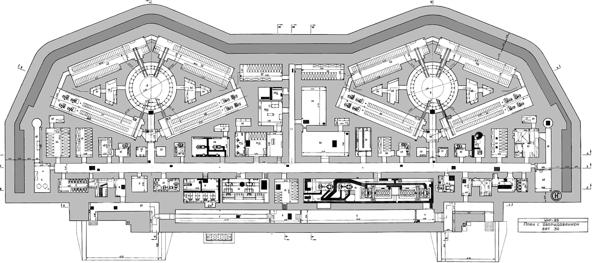
Как я уже отмечал в экскурсии по орудийному блоку нам поможет вот эта схема с экспликацией. Ссылки на помещения я буду давать в виде номеров в круглых скобках. Надо понимать, что это схема батареи 1932 года. При послевоенном восстановлении планировка была частично изменена в сторону как увеличения диаметра башенных колодцев, так и превращения ряда вспомогательных помещений в погреба. Ведь теперь в каждой башне было установлено не два, а уже три орудия.

Чертеж орудийного блока 30-й батареи (1932 г.). Кликабельно. Источник: bellabs
Чертеж орудийного блока 30-й батареи (1932 г.). Кликабельно. Источник: bellabs

Экспликация:

А. Левая башня, Б. Правая башня, 1. Камера фильтров, 2. Камера фильтров, 3. Пост Начхима, 4. Проход в силовую станцию, 5. Камбуз, 6. Гальюн, 7. Шлюз, 8. Проход, 9. Помещение командира батареи, 10. Вытяжные вентиляторы, 11. Котельная, 12. Трансформаторы, 13. Помещение краснофлотцев, 14. Силовая станция, 15. Вытяжные казематные вентиляторы, 16. Проход, 17. 1-й тамбур, 18. 2-й тамбур, 19. Гальюн, 20. Кубрик комсостава на 8 человек, 21. Вход в потерну к КП, 22. Перевязочный пункт, 23. Аптека, 24. Помещение на 22 краснофлотца, 25. Водоносная станция, 26. Нагнетательные вентиляторы, 27. Местный центральный пост ПУАО, 28. Помещение для дежурного командира, 29. Нагнетательные вентиляторы, 30. Телефонная станция, 31. Аккумуляторная, 32. Мастерская, 33. Инструментальная кладовая, 34. Помещение краснофлотцев, 35. Кладовая, 36. Кладовая связи и приборов, 37. Кладовая электротехническая, 38. Нагнетательные вентиляторы, 39. Гальюн для комсостава, 40. Умывальник, 41. Нагнетательные вентиляторы, 42. Помещение для начсостава на 6 человек, 43. Помещение на 22 краснофлотца, 44. Помещение на 38 краснофлотцев, 45. [?], 46. Продуктовая кладовая и ледник, 47. Снарядный погреб, 48. Снарядный погреб, 49. Зарядный погреб, 50. Зарядный погреб, 51. Ручные гранаты, 52. Кладовая ружейных патронов, 53. Башенная кладовая, 54. Башенная кладовая, 55. Проход, 56. Аккумуляторная телефонной станции, 57. Помещение на 34 краснофлотца, 58. Помещение на 34 краснофлотца, 59. Каюткомпания, 60. Снарядный погреб, 61. Снарядный погреб, 62. Зарядный погреб, 63. Зарядный погреб, 64. Башенная кладовая, 65. Башенная кладовая, 66. Башенная кладовая, 67. Башенная кладовая, 68. Проход, 69. Сквозник, 70. Сквозник, 71. Главный коридор, 72. Центральный коридор, 73. Дымовая камера

Оставим пока в покое левый сквозник и пройдем вдоль тылового фасада орудийного блока к правому сквознику. Дойдем до него и оглянемся назад по военной улице батареи.

Военная улица
Военная улица

Обратите внимание на бруствер с левой стороны военной улицы. Это не отбойник на шоссе. Такая форма была специально придана каменной подпорной стенке для целей обороны тыла батареи. Забетонированный провал грунта вполне мог быть на месте плохо засыпанной воронки времен войны.

 Мы стоим перед порталом правого сквозника (70).
Мы стоим перед порталом правого сквозника (70).

Он так же претерпел послевоенное переустройство. Была забетонирована цитата Сталина, но, зато, сохранился фрагмент оригинального карниза. Здесь так же хорошо видна конструкция из двутавров для маскировки и монорельс для подачи боеприпасов.

 Перед фасадом сквозника после войны был воздвигнут памятник командиру батареи майору Г.А.Александеру.
Перед фасадом сквозника после войны был воздвигнут памятник командиру батареи майору Г.А.Александеру.

Рядом со стелой 305-мм снаряды: три практических ядра сталистого чугуна и один какой-то допотопной конфигурации. Слева сзади самый крупный снаряд похож на 365-мм бронебойный - главный калибр так и не построенных линейных крейсеров типа "Измаил". Говорят, батарея с железнодорожными установками такого калибра после войны базировалась под Севастополем.

Через заложенный проем можно перемещать внутрь помещений орудийного блока крупногабаритные агрегаты, например, дизельгенераторы. За этим проемом помещение (4) прохода в силовую станцию и камеры воздушных фильтров. Кстати, по первоначальному, еще дореволюционному, проекту помещение фильтров (тогда потерна) имело в горжевой стене амбразуры для стрелкового оружия в целях самообороны. При достройке батареи эту стену сделали глухой, а при восстановлении и вовсе спрятали под обваловкой.

 Для того чтобы проникнуть в орудийный блок возвращаемся к левому сквознику
Для того чтобы проникнуть в орудийный блок возвращаемся к левому сквознику

Заходим в него через левый проем.

Здесь картинка зеркальная. Не видно только ревуна. Мощная бронедверь также послевоенная, а вот дверная коробка оригинальная
Здесь картинка зеркальная. Не видно только ревуна. Мощная бронедверь также послевоенная, а вот дверная коробка оригинальная

На противоотколе закреплен монорельс подачи боеприпасов в погреба.

 Проходим внутрь орудийного блока через небольшой тамбур и попадаем в главный коридор. 
Проходим внутрь орудийного блока через небольшой тамбур и попадаем в главный коридор. 

Для сообщений между помещениями блока внутри него проходил продольный коридор длиной около 100 м и шириной чуть больше 2 метров. В блоке находились колодцы орудийных установок, снарядные и зарядные погреба, местный центральный пост с резервной группой приборов управления стрельбой, силовая станция, котельная, компрессорные и насосная станции, фильтровентиляционное оборудование, жилые и служебные помещения для личного состава. Под полом помещений располагались емкости для запасов топлива, масла и воды и проходили инженерные коммуникации. Общая площадь помещений орудийного блока батареи составляла около 3000 м2.

На фотографии представлен вид вдоль коридора я левого фланга на правый. Хорошо видно, что бронедвери различных помещений имеют различную конструкцию. Некоторые из них оригинальные с клепкой, некоторые послевоенные. Примечательно, что на ряде оригинальных дверей есть пулевые пробоины: следы последних дней обороны батареи. Справа на специальных кронштейнах уложены монорельсы для подачи снарядов в погреба. Только я не вижу куда их крепить.

Фотографии двух первых дней съемок на батарее у меня утратились. И в этот раз я снимал бессистемно, стараясь хоть как-то восполнить утрату. Поэтому достаточно трудно точно восстановить взаиморасположение помещений. Тем не менее мы попробуем это сделать. Одно из первых помещений куда я заглянул была мастерская. В ней после войны были установлены простейшие токарный, фрезерный и сверлильный станки. Внизу уложены либо монорельсы для транспортировки боеприпасов, либо просто какие-то швеллера. Если я не ошибся, мастерская расположена где-то рядом с котельной (10?) или у технологического проема для транспортировки дизельгенераторов. Не помню точно.

Токарный и фрезерный станки в мастерской
Токарный и фрезерный станки в мастерской
Вид на токарный станок и противооткольное покрытие каземата
Вид на токарный станок и противооткольное покрытие каземата

Продолжим...

 Заходим в котельную (11).
Заходим в котельную (11).

Она находится на своем изначальном месте с момента постройки батареи. После войны здесь были установлены паровые вертикально-водотрубно-газотрубные котлы конструкции инженера Добрина Н.Г. типа ВГД-16/8. Как я понял, питались они мазутом и имели производительность до 1 тонны пара в час каждый.

Схема котла ВГД 16/8
Схема котла ВГД 16/8

Компрессорная.

 Помещение компрессоров для воздуха высокого давления. расположено предположительно в помещении под номером 30
Помещение компрессоров для воздуха высокого давления. расположено предположительно в помещении под номером 30
Эти щитки я похоже сфотографировал в коридоре ко второй башне (та которая левая). Отправляемся осматривать подбашенное помещение и погреба
Эти щитки я похоже сфотографировал в коридоре ко второй башне (та которая левая). Отправляемся осматривать подбашенное помещение и погреба

По первоначальному проекту на каждую башню МБ-2-12 с двумя орудиями приходилось два снарядных и два зарядных погреба. Но при восстановлении батареи в новых линкоровских башнях МБ-3-12 ФМ количество орудий возросло до трех, что потребовало увеличение количества боезапаса (1080 выстрелов на батарею вместо прежних 800) и в первую очередь зарядов, т.к. на один снаряд при полном выстреле приходилось два полузаряда. Увеличение боезапаса повлекло за собой увеличение количества погребов и изменение линий транспортировки боеприпасов. Для этого смежные помещения были переделаны в зарядные погреба (например, помещения кубриков личного состава 57 и 58) и соединены путями подачи со штатными погребами. Проход, соединяющий один из первоначальных погребов со снарядным погребом, пришлось замуровать и прорубить рядом новый дверной проем в бывшие кубрики, ставшими пороховыми погребами. Для первой башни был добавлен один зарядный погреб, для второй два.
Имеющиеся при каждой башне помещения, предназначенные для установки взрывателей и их хранения, примыкающие справа и слева к башенным колодцам, были приспособлены для хранения снарядов или полузарядов и соединены путями подачи с соответствующими погребами. В одном из таких казематов для транспортировки зарядов прорубили проход в пороховой погреб, а на месте прежнего входа оборудовали шлюз с огнезащитным турникетом. Для ускорения подачи в этом каземате разместили дополнительный стеллаж, где хранилось некоторое количество зарядов. В другом каземате прорубили проем в снарядный погреб и расширили оригинальный вход, а затем установили два горизонтальных транспортера, соединенных поворотным лотком, образующих транспортную линию, по которой снаряд попадал в перегрузочное отделение.  Представляетет сколько надо было "прогрызть" бетона?

После войны система хранения боеприпасов в погребах была усовершенствования в сторону более компактного хранения. От простой штабелевки снарядов отказались и разместили их на стеллажах. Снаряды каждой башни теперь хранились в двух снарядных погребах, уложенные в пять рядов на полках механизированных стеллажей. Левый погреб «питал» левое орудие башни, а правый – среднее и правое. В каждом погребе находилось по шесть таких стеллажей, каждый из них имел свой подъемный лоток с ручным приводом.

Вот так выглядит один из снарядных погребов: стеллажи для хранения снарядов, подачные механизмы с розмахами.
Вот так выглядит один из снарядных погребов: стеллажи для хранения снарядов, подачные механизмы с розмахами.

Система транспортировки и подачи снарядов в подбашенное помещение.

 Вот так выглядит процесс транспортировки и подачи снаряда из погреба в подбашенное помещение. Привод возможен и от электромоторов и вручную
Вот так выглядит процесс транспортировки и подачи снаряда из погреба в подбашенное помещение. Привод возможен и от электромоторов и вручную

Блок и захват для транспортировки.

 С помощью лотков снаряды опускали с полок, а затем подавали по системе рольгангов или при помощи захватов в перегрузочное отделение на кольцевой вращающейся стол (желоб).
С помощью лотков снаряды опускали с полок, а затем подавали по системе рольгангов или при помощи захватов в перегрузочное отделение на кольцевой вращающейся стол (желоб).
Сейчас на доске учета снарядов везде проставлены ноли, но часть практических снарядов в погребах сохранилась
Сейчас на доске учета снарядов везде проставлены ноли, но часть практических снарядов в погребах сохранилась

Относительно малая глубина колодцев в бетонном массиве батареи, рассчитанных на береговые башенные установки «МБ-2-12» (с расположением снарядных и зарядных погребов на одном уровне), не позволяла установить в них бывшие корабельные установки без кардинальных переделок их нижних частей, которые существенно изменили устройство механизмов подачи боезапаса к орудиям. Коническую часть подачных труб корабельных башенных установок пришлось обрезать вместе с оборудованием для подъема нижних зарядников, а бывшее перегрузочное отделение переделать так, чтобы загрузку боезапаса можно было производить непосредственно в верхние зарядники.

Через вот такие зарешеченные створки попадаем в подбашенное помещение. Nут уже все вращается и при боевой работе, если сунутся в этот проход тебя может раздавить между вращающейся частью установки и неподвижной. Поэтому, когда производится поворот башни звучит звонок.
Через вот такие зарешеченные створки попадаем в подбашенное помещение. Nут уже все вращается и при боевой работе, если сунутся в этот проход тебя может раздавить между вращающейся частью установки и неподвижной. Поэтому, когда производится поворот башни звучит звонок.

Таким образом, корабельные артиллерийские установки стали ниже на целых два «этажа», соответствующих расположению корабельных зарядных и снарядных погребов. Столь кардинально переделанные артиллерийские системы получили новое обозначение МБ-3-12ФМ.

Не помню что это такое, но похоже на подачные пути снарядов по рольгангу из погреба в перегрузочное отделение.
Не помню что это такое, но похоже на подачные пути снарядов по рольгангу из погреба в перегрузочное отделение.

Мы внутри подбашенного помещения. При боевой работе происходило независимое вращение двух конструкций: самой башни с перегрузочным отделением и зарядниками и кольцевого вращающегося желоба внутри перегрузочного отделения. Когда при этом стоишь внутри перегрузочного отделения немного теряешь ориентировку в пространстве. Получается как бы тройная карусель и создается иллюзия что вращается неподвижный башенный стакан. Такая сложная конструкция требовалась для того, чтобы при любом горизонтальном угле наведения башни синхронизировать подачные отверстия в неподвижной части подбашенного стакана по которым подавались боеприпасы из погребов с отверстиями в корпусе перегрузочного отделения и положением вращающихся вместе с башней зарядников.

Кольцевой вращающийся желоб для транспортировки снарядов в перегрузочном отделении представляет собой жесткое стальное кольцо, вращающееся внутри перегрузочного отделения (независимо от него) вокруг трех шахт зарядников. Полузаряды подавали из пороховых погребов через три специальных шлюза (огнезащитных турникета) и укладывали на желоб вручную. Снаряды выкатывались из подачных окон и так же попадали на кольцевой желоб перегрузочного отделения. Желоб доворачивался на определенный угол и боеприпасы с помощью системы поворотных и продольных лотков и столов передвигались к питателям зарядников и сбрасывались в них. Для загрузки в зарядник полузарядов имелись поворотные двухъярусные лотки и механические досылатели. Все механизмы работали как на электроприводе (по 17 двигателей на башню), так и вручную. После загрузки в зарядники боеприпасы по команде мгновенно отправлялись наверх к орудиям для очередного выстрела. Вся эта система имела много бронзовых деталей. Бронза мягкий металл и не высекает искру. Тем не менее, за время после развала СССР многие бронзовые детали (стопора) свинчены военнослужащими и сданы в утиль.

 На этом фото виден путь снарядов в перегрузочном отделении от рольганга подачного окна через кольцевой лоток, поворотный лоток до попадания в питатель зарядника.
На этом фото виден путь снарядов в перегрузочном отделении от рольганга подачного окна через кольцевой лоток, поворотный лоток до попадания в питатель зарядника.

Все детали оригинального дореволюционного изготовления, в том числе классическая переговорная труба для подачи команд. Зарядник был единый для двух полузарядов и снаряда, который располагался в его нижней части. Как происходил процесс заряжания орудия в башне хорошо видно на фото в предыдущем репортаже

Подачное окно для полузарядов, кольцевой погон и двухярусный поворотный лоток для транспортировки полузарядов к питателю зарядника. Виден растесанный (?) и растресканный бетон башенного стакана.
Подачное окно для полузарядов, кольцевой погон и двухярусный поворотный лоток для транспортировки полузарядов к питателю зарядника. Виден растесанный (?) и растресканный бетон башенного стакана.

Подачное окно перегрузочного отделения не синхронизировано с путями подачи полузарядов из соответствующего погреба, т.к. башня находится в процессе поворота.

Это я просунул голову в какое-то помещение чуть выше перегрузочного отделения. Не помню для чего оно было предназначено, но какие-то приборы здесь имеют место быть за жестяными дверками
Это я просунул голову в какое-то помещение чуть выше перегрузочного отделения. Не помню для чего оно было предназначено, но какие-то приборы здесь имеют место быть за жестяными дверками

Выходим из перегрузочного отделения второй башни и описав приличный крюк отправляемся к башне под номером один. Зайдя в коридор по направлению к ней сворачиваем в первое помещение направо и оказываемся в Местном центральном посте ПУАО (27). ПУАО - пост управления артиллерийским огнем. По своей сути он выполнял функции запасного командного пункта. Если по какой-то причине команды на ведения огня с командного пункта переставали поступать, то управлять огнем батареи можно было с этого поста из маленькой комнаты в которой с трудом могут развернуться два человека. Если приборы централизованного управления огнем и здесь выходили из строя, каждая башня могла вести огонь автономно, пользуясь своими простейшими приборами. Система управления огнем тяжелых береговых батарей Советского Союза до Великой Отечественной войны была не просто сложна, она была архисложна и базировалась все на тех же горизонтальнобазных дальномерах. На британских береговых батареях все было несколько проще - по морскому (но лучше ли?), а советская автоматика управления огнем после захвата 30-ой батареи осталась так и не понятна сумрачному германскому гению, собственно как и конструкция орудий авторам Денкшрифта. Подробно о довоенных приборах управления стрельбой "Баррикада" можно прочитать в книге Ворошиловская батарея... (см. список лит-ры в конце). Здесь я ограничусь лишь кратким описанием.

При послевоенном восстановлении батареи место прежней системы управления стрельбой типа «Баррикада» (приборы и кабельные трассы которой были демонтированы немцами) батарея получила опытный образец новейшей системы «Берег-30». Основными отличиями ее были отсутствие горизонтальнобазного дальномера, работающего от сети целеуказательных постов (после появления радиолокационных средств необходимость в нем отпала); наличие более совершенных центрального автомата стрельбы (прибор «1-Б») и трансформатора азимута и дистанции (прибор «77»). Кроме того, имелся резервный автомат стрельбы (прибор «1-Р»). Целеуказание в систему поступало от располагавшегося в боевой рубке визира «ВБК-2» (экспериментальный образец) с тремя независимыми оптическими системами для командира батареи и наводчиков по азимуту цели и всплеска, бронированной дальномерной рубки «РД-2-8» с двумя 8-метровыми стереодальномерами «ДМС-8» и радиолокационных станции орудийной наводки «Залп-Б» и станции обнаружения «Шкот». Для ночной стрельбы использовались две теплопеленгаторные станции. Возможности системы управления стрельбой позволяли батарее уверенно поражать видимые и невидимые цели, движущиеся со скоростью до 60 узлов.

Когда заходишь в центральный пост ПУАО то слева рядом с дверным проемом видишь прибор 108М (?). Судя по всему он подает напряжение 110 В на приборы управления огнем обеих башен. Номенклатура приборов частично совпадает с ПУС "Баррикада"
Когда заходишь в центральный пост ПУАО то слева рядом с дверным проемом видишь прибор 108М (?). Судя по всему он подает напряжение 110 В на приборы управления огнем обеих башен. Номенклатура приборов частично совпадает с ПУС "Баррикада"
На соседней стенке самый интересный прибор под номером 1-Р, которого не было в ПУС "Баррикада". Он включен. Это тот самый резервный автомат стрельбы из состава ПУС "Берег-30". Обратите внимание на его компактность.
На соседней стенке самый интересный прибор под номером 1-Р, которого не было в ПУС "Баррикада". Он включен. Это тот самый резервный автомат стрельбы из состава ПУС "Берег-30". Обратите внимание на его компактность.
Здесь в упрощенном виде продублированы основные функции приборов центрального поста и командного пункта батареи на случай потери связи с последним.
Здесь в упрощенном виде продублированы основные функции приборов центрального поста и командного пункта батареи на случай потери связи с последним.
На стене прямо перед входом в пост размещен вот такой щит также подающий питание для обеспечения стрельбы
На стене прямо перед входом в пост размещен вот такой щит также подающий питание для обеспечения стрельбы
Фрагмент укрупненно
Фрагмент укрупненно

Если в прицелы башен можно было наблюдать цель, то командир одной из башен мог управлять огнем батареи. В этом случае все линии кабелей ПУС, идущие на КП переключались на местный центральный пост. Данный прибор позволяет вырабатывать правильные прицел и целик (вертикальный и горизонтальный углы наведения) в зависимости от дальности до цели и ее курса с учетом ВИР (величины изменения расстояния). Необходимая информация могла поступать как от какого-то внешнего источника, так и от одной из башен, которая, видя цель, могла "вести"  за собой по азимуту вторую башню. Вероятно, в случае выхода из строя основных автоматов стрельбы на КП, можно было использовать данные полученный с его приборов наблюдения. Информация в приборе 1-Р отображалась как на циферблатах, так и в графическом варианте.

Правая от входа стенка занята телефонными аппаратами и планшетом противокатерной обороны ВМБ Севастополь с секторами обстрела береговых батарей
Правая от входа стенка занята телефонными аппаратами и планшетом противокатерной обороны ВМБ Севастополь с секторами обстрела береговых батарей

Смотрим дальше...

Рядом с телефонными аппаратами еще один блок приборов управления стрельбой.
Рядом с телефонными аппаратами еще один блок приборов управления стрельбой.
Вверху расположен ряд ревунов и звонков подающих сигналы при различных ситуациях боевой работы. Ниже расположены приборы ПУС 69 для первой и второй башен (69Б-1 и 69Б-2) выдающих информацию о состоянии орудий. Справа неизвестный мне прибор 69П-4
Вверху расположен ряд ревунов и звонков подающих сигналы при различных ситуациях боевой работы. Ниже расположены приборы ПУС 69 для первой и второй башен (69Б-1 и 69Б-2) выдающих информацию о состоянии орудий. Справа неизвестный мне прибор 69П-4
Слева, судя по виду переключателей, прибор 63М подающий сигналы для расчетов башен и погребов. Справа прибор 60М контроля подающихся сигналов. Внизу еще какой-то щиток, номер не разглядеть
Слева, судя по виду переключателей, прибор 63М подающий сигналы для расчетов башен и погребов. Справа прибор 60М контроля подающихся сигналов. Внизу еще какой-то щиток, номер не разглядеть
В углу поста под потолком размещен планшет на котором можно видеть дальность стрельбы батареи двумя типами боеприпасов и ее сектора обстрела при работе по морским целям
В углу поста под потолком размещен планшет на котором можно видеть дальность стрельбы батареи двумя типами боеприпасов и ее сектора обстрела при работе по морским целям

Осмотрев местный центральный пост, отправляемся в расположенное неподалеку помещение силовой станции (14). До войны здесь стояли два дизельгенератора 6БК-43 мощностью по 370кВт и два электромашинных преобразователя напряжения. Интересен был их принцип действия. Электромоторы крутили генераторы которые вырабатывали постоянный электрический ток требуемого напряжения.

Увеличившееся по сравнению с довоенным энергопотребление батареи заставило провести реконструкцию ее силового оборудования. В силовой станции орудийного блока были установлены три новых дизеля «6Ч23/30» горьковского завода «Двигатель Революции» мощностью по 450 л.с. с генераторами трехфазного переменного тока мощностью по 320 кВт. (для управления дизелями были даже предусмотрены машинные телеграфы корабельного типа). Башенные электроприводы, работавшие на постоянном токе, снабжались энергией от трех электромашинных преобразователей мощностью по 160 кВт. Отдельные преобразователи вырабатывали энергию для приборов управления стрельбой и средств связи.

На фото хорошо видны расположенные в ряд дизельгенераторы
На фото хорошо видны расположенные в ряд дизельгенераторы
Два из них укрупненно с уходящими в дымовую камеру выхлопными трубами
Два из них укрупненно с уходящими в дымовую камеру выхлопными трубами
Один из дизельгенераторов. Видно что сам корпус двигателя закрыто щитками, что явно снижает шум
Один из дизельгенераторов. Видно что сам корпус двигателя закрыто щитками, что явно снижает шум

Другая часть помещения.

Вторая часть помещения занята щитовой и электромашинными преобразователями напряжения
Вторая часть помещения занята щитовой и электромашинными преобразователями напряжения
Впечатляет? С 1954 года здесь ничего не менялось и почти все работает
Впечатляет? С 1954 года здесь ничего не менялось и почти все работает
А вот это интересные воронки в которые сливается вода из системы охлаждения дизелей при ее замене. Матросы взвода консервации в них ссут, а потом воняет.
А вот это интересные воронки в которые сливается вода из системы охлаждения дизелей при ее замене. Матросы взвода консервации в них ссут, а потом воняет.

Выходим обратно в коридор

Выходим из силовой станции и по главному коридору отправляемся на правый фланг орудийного блока. Обратите внимание на оригинальную дверь слева и баки для воды под потолком. Они клепанные. Именно из этих баков вода в случае необходимости заливает погреба боезапаса.
Выходим из силовой станции и по главному коридору отправляемся на правый фланг орудийного блока. Обратите внимание на оригинальную дверь слева и баки для воды под потолком. Они клепанные. Именно из этих баков вода в случае необходимости заливает погреба боезапаса.
Помещение 24, если я не ошибся, сейчас превращено в туалет для личного состава. Когда-то здесь был кубрик.
Помещение 24, если я не ошибся, сейчас превращено в туалет для личного состава. Когда-то здесь был кубрик.

К сожалению, это почти все фото (за исключением музея) которые у меня сохранились по орудийному блоку. А ведь я в деталях снимал уникальный работающий эрлифт для подъема воды из скважины с глубины 120 метров, спуск по колодцу в потерну ведущую к командному пункту и прочие вкусности, но фотографии были бездарно утрачены и мне пришлось переснимать что попало по быстрому...

Основной литературой для написания поста послужили две статьи:
1. Н.В. Гаврилкин (Москва), Д.Ю. Стогний (Севастополь). Батарея №30. 70 лет в строю. Цитадель №№ 12 и 13, 2005 и 2006 гг..
2. В.И.Калинин, Н.В.Гаврилкин. Приборы управления стрельбой тяжелых батарей береговой обороны ВМФ СССР... Крепость Россия № 3, Владивосток, 2008.
3. В.Андреев. Севастопольская крепость в годы Первой мировой войны 1914-1917 гг. Фортовед №№ 7 и 8, 2015 и 2016 гг.
Не обошлось конечно и без личного посещения батареи в 2005 году. Тут я безмерно обязан одному из авторов статьи - Дмитрию Стогнию, который терпел меня на батарее три дня.

Продолжение следует

Другие репортажи о Тридцатой батарее:

Тридцатая батарея. Боевое отделение второй башни МБ-3-12ФМ
starcom688 декабря 2017

Оригинальный репортаж в моем блоге в ЖЖ

Понравился репортаж? Подписыватесь на мой канал и поддердиваете его через функцию Дзен-донат. Спасибо!