Добавить в корзинуПозвонить
Найти в Дзене
starcom68

Тридцатая батарея. Командный пункт и Бельбекская укрепленная группа

Рассказ о легендарной 30-ой береговой батарее Севастополя был бы не полный, если оставить за его рамками командный пункт батареи с которого осуществлялось управление огнем. К сожалению, мне не удалось попасть в число немногих из ныне живущих людей, которые повезло попасть на командный пункт по потерне. Уже преодолев большую часть спуска по скобтрапу в 35-ти метровом колодце, нам с моим провожатым пришлось повернуть обратно. На батарею прибыло высокое начальство и просило экскурсию... Делать нечего, я покидаю прохладные подземелья орудийного блока и, еще раз посмотрев как работает самая дорогая в России "карусель", отправляюсь на центральное укрепление Бельбекской долговременной группы осматривать его и расположенный в границах укрепления командный пункт снаружи.
Бельбекская долговременная группа проектировалась в 1913 году, начала строиться перед самым началом Первой мировой войны и была призвана обеспечивать правый фланг Приморского фронта крепости Севастополь от действий десанта.

Рассказ о легендарной 30-ой береговой батарее Севастополя был бы не полный, если оставить за его рамками командный пункт батареи с которого осуществлялось управление огнем. К сожалению, мне не удалось попасть в число немногих из ныне живущих людей, которые повезло попасть на командный пункт по потерне. Уже преодолев большую часть спуска по скобтрапу в 35-ти метровом колодце, нам с моим провожатым пришлось повернуть обратно. На батарею прибыло высокое начальство и просило экскурсию...

Делать нечего, я покидаю прохладные подземелья орудийного блока и, еще раз посмотрев как работает самая дорогая в России "карусель", отправляюсь на центральное укрепление Бельбекской долговременной группы осматривать его и расположенный в границах укрепления командный пункт снаружи.
Бельбекская долговременная группа проектировалась в 1913 году, начала строиться перед самым началом Первой мировой войны и была призвана обеспечивать правый фланг Приморского фронта крепости Севастополь от действий десанта. Кроме того, на левом фланге группы бала размещена представляющая особую ценность строящаяся бронебашенная 305-мм батарея № 26 (широко известной как 30-я батарея). В состав Бельбекской долговременной группы входила обеспеченная от штурма 26-я батарея на левом фланге, Промежуточная пехотная позиция на узкой и вытянутой высоте (отроге) по соседству, Центральное укрепление на возвышенности с отметкой 39,56 саженей и еще пара пехотных позиций на правом фланге к строительству которых так и не приступили.

Для получения представления о взаимном расположении этих объектов нам пригодиться немецкая схема 30-ой батареи из издания: Nachtrag zu den Denkschriften uber die fremde Landesbefestigungen. Berlin: Reichsdruckerei, 1943. Описание, сделанное немецкими инженерами в период оккупации Севастополя актуально и сегодня.


На схеме желтым выделены, слева-направо:
На схеме желтым выделены, слева-направо:

• Трансформаторная подстанция (нем. Umformerstation), бывшее убежище для противоштурмовых орудий

• Орудийный блок (Batterieblock).

Вот так он выглядел после последнего штурма.

-3

Интересно, что даже 600 и 800 мм снаряды немецких мортир типа "Карл" и сверхтяжелой пушки "Дора" не нанесли серьезных разрушений блоку. Сильно пострадала с пробитием свода и повреждением швеллеров только трансформаторная подстанция и помещения фильтровентиляционных установок. И конечно досталось бронебашням. Обращает на себя внимание концентрация крупных воронок перед фронтом орудийного блока в непосредственной близости от башен. Немецкие корректировщики упорно старались привести батарею к молчанию.

• Дальномер и командный пункт на опорном пункте "Бастион" (Feuerleit-und Funkstand; Bastion). Бастион - немецкое название данное центральному укреплению Бельбекской укрепленной группы. Между батареей и Бастионом на узком отроге располагалось промежуточное укрепление.

Юго-западная башня № 2 выделена красным, северо-восточная башня № 1 синим. Нумерация башен идет от командного пункта.

КП соединен с артблоком 600-метровой потерной (красный пунктир).

Вид от современного КПП батареи на высоту 39,56 с командным пунктом и укреплением "Бастион". Тут я скрывался в тени в ожидании разрешения на проход и лопал алычу. Если приглядеться, то на макушке высотки виднеется рубка дальномера и башня радиолокатора. Кроме того, видна секущая высотку линия по которой когда-то подходили крановые железнодорожные пути для монтажа орудийных стволов. Убежище для крана также показано на схеме выше. Чуть ниже этой линии проходит шоссе, соединяющее батарею и ее военный городок, переходящее в военную улицу батареи.

-4

При проектировании достройки батареи в конце 1920-х годов командный пункт предполагалось оборудовать в самом орудийном блоке, на его левом фланге. Но в окончательном варианте (март 1930 г.) КП решили разместить на вершине высоты 39,8 (? данные по отметке разнятся) примерно в 650 м северо-восточнее орудийного блока. Именно там, где до 1917 г. велось строительство Центрального опорного пункта. При этом на поверхности горы располагался только блок с наблюдательным броневым колпаком и с дальномерной башней, а все остальные помещения КП устраивались тоннельного типа на глубине 37 м.

Схема взаимного расположения сооружений

1. Орудийный блок

2. Командный пункт с подземной частью и броневой рубкой

3. Дальномер

4. Потерна

5. Железная дорога и укрытие для крана

6. Трансформаторная подстанция (убежище противоштурмовых орудий)

Тонким пунктиром показаны контуры центрального укрепления ("Бастион"). Промежуточное укрепление между орудийным блоком и "Бастионом" не показано.

-5

В 1936 г. на КП батареи начали монтаж второй очереди системы управления стрельбой. Основным ее элементом являлся горизонтальнобазный дальномер – электромеханический планшет-построитель предназначенный для определения координат цели. Сложность монтажа заключалась в том, что помещение центрального поста находилось на 37-метровой глубине под землей, а габариты существующей шахты и наземного входа в блок КП были слишком малы. Для опускания приборов пришлось пробить в скальном грунте дополнительный вертикальный шурф и соединить его с помещениями подземной части КП горизонтальной выработкой. После завершения монтажа выработка была заложена бетонными блоками, а шурф засыпан грунтом. Полностью батарея была введена в строй в 1940 г.
В итоге батарея получила командный пункт, соединяющийся с ней потерной глубокого залегания пробитой в скальном грунте на глубине до 38 м. Наземная часть КП представляла собой железобетонный блок размером 15х16 м с толщиной стен и перекрытий до 3,5 м. Внутри блока находились радиорубка с помещением для аккумуляторов и кубрик личного состава. Вход в блок снабжался тамбур-шлюзом, закрывался броневой дверью и коленчатым сквозником. В железобетонное покрытие блока была вмонтирована броневая рубка «КБ-16» (толщина брони стен – 406 мм, крыши – 305 мм) с четырьмя смотровыми щелями и оптическим визиром командира батареи типа «ПКБ» (впоследствии замененным на «ВБК-1»).

В 50 м от блока на бетонном основании размещалась вращающаяся дальномерная рубка «Б-19» с 10-метровым стереоскопическим дальномером фирмы «Цейсс» и стереотрубой «СТ-5» 5-метровой базы, защищенная 30-мм броней.

 Дальномерная рубка на немецких фотографиях
Дальномерная рубка на немецких фотографиях

Проход от дальномера до КП существует в виде крытого хода с каменными стенами и железобетонным перекрытием с противооткольным слоем из стальных балок и пластин. Ход перестраивался после войны.

В подземной части КП, расположенной на глубине 37 м в виде обделанного бетоном тоннеля длиной 53 м и шириной 5,5 м, находились: главный центральный пост батареи, автономная электростанция и котельная с запасами топлива, фильтровентиляционная установка и помещения для личного состава. В главном центральном посту располагалась основная группа системы управления стрельбой (ПУС) системы «Баррикада» в составе построителя горизонтальнобазного дальномера (ГБД), трансформатора азимута и дистанции (ТАД), автомата прямого курса (АПК) и ряда других приборов. Построитель ГБД принимал целеуказание от шести выносных наблюдательных постов, расположенных на мысе Керменчик, у деревни Мамашай, на бывшей береговой батарее № 7 (Северная сторона Севастополя), на бывшем форте «Литер-А» (район бухты Стрелецкая), мысе Фиолент и горе Кая-Баш. Каждый пост представлял собой железобетонное сооружение легкого типа в котором размещались оптический стереодальномер 6-метровой базы «ДМ-6» и визир конца базы типа «ГО». Ночная стрельба обеспечивалась двумя передвижными прожекторными станциями типа «3-15-4» для которых на берегу построили железобетонные укрытия.

Наземная и подземная части КП соединялись между собой вертикальной шахтой с электрическим лифтом и лестницей.

650-метровая потерна глубокого залегания, соединявшая КП с орудийным блоком, имела небольшой уклон к середине, откуда имелось перпендикулярное ответвление служившее водостоком. В него выходили канализационные и дренажные трубы, проложенные под полом потерны. На участке между водостоком и орудийным блоком потерна имела еще одно выходящее на дневную поверхность ответвление, служившее запасным выходом. Это был вход в тоннельное убежище так и недостроенной к 1917 году Промежуточной позиции. Само тоннельное убежище, его даже успели забетонировать, использовали по назначению в качестве убежища, расположенного неподалеку в скальной выемке караульного помещения у главного въезда на батарею. Это здание сохранилось, пережив войну.
Немецкая схема участка потерны с запасным выходом, убежищем и водостоком

-7

Комментарии Дмитрия Стогния:
Потерна, тоннельное убежище и запасной выход расположены с перепадами по высоте и соединены между собой наклонными галереями. Из документов на восстановление батареи начала 1950-х гг. следует, что участок потерны, примыкающий к этой галерее, обрушен взрывом. Прямой сквозник на поверхности соорудили в 1950-е гг. По проекту восстановления батареи в убежище должна была быть установлена фильтровентиляционная установка и туалет, но сделано этого не было. Фактически с 1950-х по 2000-е гг в этом помещении хранились ящики с ЗИПом. Ответвление потерны – узкая и низкая галерея для вывода на поверхность канализационно-дренажного коллектора из командного пункта. На немецкой схеме эта галерея изображена прямой, хотя на самом деле она имеет два поворота. Именно через эту галерею 24 июня 1942 г. вышла на поверхность группа Александера.

Итак, выхожу на поверхность орудийного блока и направляюсь в сторону КП через Промежуточную позицию Бельбекской долговременной группы.
Практически сразу мне попадается вот такой проход под крановыми путями.

-8
 Выйдя через дыру в колючке за охраняемый периметр оглядываюсь назад на орудийный блок и военную улицу
Выйдя через дыру в колючке за охраняемый периметр оглядываюсь назад на орудийный блок и военную улицу
С трудом спускаюсь по крутому склону вдоль колючки вниз на военную улицу и иду по ней в сторону военного городка до обширной выемки грунта в склоне. Именно здесь когда-то был вход в тоннельное убежище Промежуточной позиции, а в июне 1942 при штурме немцами была подорвана потерна, соединяющая КП и орудийный блок. Захватив "Бастион" с КП батареи немцы не стали торопиться с его штурмом с поверхности и, ограничившись подрывами рубки, продолжили продвигаться в сторону орудийного блока, вышли к этому месту. Зачем здесь осуществили подрыв, трудно сказать. Но в результате, запертый в орудийном блоке гарнизон, потерял возможность вылазки в тыл осаждающим и оборвалось сообщения с КП по потерне. По одной из канонических версий этим взрывом выкуривали из потерны группу Александера.
Как уже говорилось выше, сквозник полностью восстановлен после войны. Вот так он выглядит со стороны шоссе. Выемка грунта относительно "свежая" и, скорее всего, находится на месте полностью разрушенного подрывом коленчатого сквозника тоннельного убежища, построенного еще до революции.
С трудом спускаюсь по крутому склону вдоль колючки вниз на военную улицу и иду по ней в сторону военного городка до обширной выемки грунта в склоне. Именно здесь когда-то был вход в тоннельное убежище Промежуточной позиции, а в июне 1942 при штурме немцами была подорвана потерна, соединяющая КП и орудийный блок. Захватив "Бастион" с КП батареи немцы не стали торопиться с его штурмом с поверхности и, ограничившись подрывами рубки, продолжили продвигаться в сторону орудийного блока, вышли к этому месту. Зачем здесь осуществили подрыв, трудно сказать. Но в результате, запертый в орудийном блоке гарнизон, потерял возможность вылазки в тыл осаждающим и оборвалось сообщения с КП по потерне. По одной из канонических версий этим взрывом выкуривали из потерны группу Александера. Как уже говорилось выше, сквозник полностью восстановлен после войны. Вот так он выглядит со стороны шоссе. Выемка грунта относительно "свежая" и, скорее всего, находится на месте полностью разрушенного подрывом коленчатого сквозника тоннельного убежища, построенного еще до революции.
Зайдем в сквозник. Его потолок защищен противоотколом. Обратите внимание, из под дверей выходит кабель. По нему осуществляется подача электричества в ближайший кооператив.
Зайдем в сквозник. Его потолок защищен противоотколом. Обратите внимание, из под дверей выходит кабель. По нему осуществляется подача электричества в ближайший кооператив.
 С трудом поднимаюсь обратно на боевой гребень и возвращаюсь практически к периметру из колючей проволоки для осмотра ДОТов противодиверсионной обороны батареи постройки 1930-х годов, расположенных на северном склоне отрога, соединяющего высоту с орудийным блоком и высоту с центральным укреплением и КП. Первый по пути следования одноказематный пулеметный ДОТ начала 30-х годов имеет пять амбразур с перемещением пулемета на столе (?) по погону между ними. Какой-либо сквозник отсутствует. Говорят, это чисто флотская конструкция, встречающаяся только на 30-ой батарее. Похожие, но трехамбразурные ДОТы имеются в Псковском и Кингиссепском УРах и ведут свою родословную от блокгаузов Колотовникова времен Первой мировой.
С трудом поднимаюсь обратно на боевой гребень и возвращаюсь практически к периметру из колючей проволоки для осмотра ДОТов противодиверсионной обороны батареи постройки 1930-х годов, расположенных на северном склоне отрога, соединяющего высоту с орудийным блоком и высоту с центральным укреплением и КП. Первый по пути следования одноказематный пулеметный ДОТ начала 30-х годов имеет пять амбразур с перемещением пулемета на столе (?) по погону между ними. Какой-либо сквозник отсутствует. Говорят, это чисто флотская конструкция, встречающаяся только на 30-ой батарее. Похожие, но трехамбразурные ДОТы имеются в Псковском и Кингиссепском УРах и ведут свою родословную от блокгаузов Колотовникова времен Первой мировой.
Амбразуры смотрят на долину реки Бельбек. Внутри виднеется след от погона, крюки для фиксации давно срезанных бронезаслонок и крепление из уголка, возможно, для бака с водой. Внизу в приямке должно быть противохимическое убежище, но оно полностью засыпано.
Амбразуры смотрят на долину реки Бельбек. Внутри виднеется след от погона, крюки для фиксации давно срезанных бронезаслонок и крепление из уголка, возможно, для бака с водой. Внизу в приямке должно быть противохимическое убежище, но оно полностью засыпано.
-14
Это, наверное, самый известный ДОТ из периметра обороны 30-ой батареи. Знаменит он стал благодаря вот этой немецкой фотографии
Это, наверное, самый известный ДОТ из периметра обороны 30-ой батареи. Знаменит он стал благодаря вот этой немецкой фотографии
Через 70 метров в сторону КП в кустах нахожу остатки ЖБОТа постройки периода обороны Севастополя 1941-1942 гг. Не даром в этом месте перед Первой мировой войной было начато строительство промежуточного укрепления. Оборона Севастополя во Вторую мировую вызвала настоятельную необходимость дополнительного укрепления отрога со стороны Бельбекской долины.
Через 70 метров в сторону КП в кустах нахожу остатки ЖБОТа постройки периода обороны Севастополя 1941-1942 гг. Не даром в этом месте перед Первой мировой войной было начато строительство промежуточного укрепления. Оборона Севастополя во Вторую мировую вызвала настоятельную необходимость дополнительного укрепления отрога со стороны Бельбекской долины.
ЖБОТ простейшей конструкции из сборного железобетона со вторичным усилением покрытия бетоном (скорее всего после второго штурма). Сооружение сильно разрушено с фронтальной части и левого фланга. Видны остатки арматуры соединяющей бетонные блоки. Теперь становится понятным почему немцы удивлялись скорости русских при возведении подобных сооружений, которые могли появиться на передовой за одну ночь
ЖБОТ простейшей конструкции из сборного железобетона со вторичным усилением покрытия бетоном (скорее всего после второго штурма). Сооружение сильно разрушено с фронтальной части и левого фланга. Видны остатки арматуры соединяющей бетонные блоки. Теперь становится понятным почему немцы удивлялись скорости русских при возведении подобных сооружений, которые могли появиться на передовой за одну ночь
Вид на ЖБОТ со стороны фронта
Вид на ЖБОТ со стороны фронта
Интерьеры. От внутренних элементов не осталось и следа. Я еще помню, как в 1977 году у значительно более разрушенного аналогичного ЖБОТа на правом фланге 24-ой батареи сохранилась броневая заслонка и никому не приходило в голову сдать ее в металлолом
Интерьеры. От внутренних элементов не осталось и следа. Я еще помню, как в 1977 году у значительно более разрушенного аналогичного ЖБОТа на правом фланге 24-ой батареи сохранилась броневая заслонка и никому не приходило в голову сдать ее в металлолом
Возвращаюсь из кустов обратно на гребень отрога и осматриваюсь. Даже сейчас, спустя многие годы после войны здесь дикая мешанина из траншей промежуточного опорного пункта, траншей периода Великой Отечественной и воронок от снарядов и бомб. Впереди на возвышенности хорошо виден центральный опорный пункт Бельбекской группы или "Бастион" в немецкой терминологии.
Возвращаюсь из кустов обратно на гребень отрога и осматриваюсь. Даже сейчас, спустя многие годы после войны здесь дикая мешанина из траншей промежуточного опорного пункта, траншей периода Великой Отечественной и воронок от снарядов и бомб. Впереди на возвышенности хорошо виден центральный опорный пункт Бельбекской группы или "Бастион" в немецкой терминологии.
Подхожу к южному склону отрога и заглядываю сверху в выемку с прикрытым сквозником запасным выходом из потерны. Рядом вентиляционная шахта тоннельного убежища. Их две, построены еще до Революции, улучшены и дополнены после войны
Подхожу к южному склону отрога и заглядываю сверху в выемку с прикрытым сквозником запасным выходом из потерны. Рядом вентиляционная шахта тоннельного убежища. Их две, построены еще до Революции, улучшены и дополнены после войны
 Иду дальше по гребню отрога в сторону командного пункта батареи. Вся земля здесь перепахана траншеями или воронками
Иду дальше по гребню отрога в сторону командного пункта батареи. Вся земля здесь перепахана траншеями или воронками
А это очередной пулеметный ДОТ противодиверсионной обороны на пять амбразур постройки начала 30-х годов. Он сильно поврежден, почти расколот на части, при обстреле. И это не мудрено, во время последнего штурма по этому месту в дополнение к крупным калибрам била прямой наводкой вся полевая артиллерия противника, сосредоточенная на противоположном склоне Бельбекской долины
А это очередной пулеметный ДОТ противодиверсионной обороны на пять амбразур постройки начала 30-х годов. Он сильно поврежден, почти расколот на части, при обстреле. И это не мудрено, во время последнего штурма по этому месту в дополнение к крупным калибрам била прямой наводкой вся полевая артиллерия противника, сосредоточенная на противоположном склоне Бельбекской долины
Вот этот ДОТ на немецкой фотографии. Видна какая-то белая тряпка на доске, какая-то деталь в амбразуре и чем-то непонятным, похожим не телогрейку заткнутый дверной проем. Если сравнить немецкое фото и современное, становится понятным, что угол ДОТа долбили совсем недавно для добычи арматуры
Вот этот ДОТ на немецкой фотографии. Видна какая-то белая тряпка на доске, какая-то деталь в амбразуре и чем-то непонятным, похожим не телогрейку заткнутый дверной проем. Если сравнить немецкое фото и современное, становится понятным, что угол ДОТа долбили совсем недавно для добычи арматуры
Иду к Центральному опорному пункту вдоль практически полностью засыпанных еще во время штурма траншей
Иду к Центральному опорному пункту вдоль практически полностью засыпанных еще во время штурма траншей
 Обернувшись назад можно оценить пройденное расстояние и увидеть орудийные башни вдалеке
Обернувшись назад можно оценить пройденное расстояние и увидеть орудийные башни вдалеке
А вот это уже остатки траншей Центрального опорного пунка с каменной и бетонной одеждой крутостей. Если сравнить их с аналогичными траншеями Балаклавской укрепленной группы, то становится понятна сила огня, практически полностью их разрушившая
А вот это уже остатки траншей Центрального опорного пунка с каменной и бетонной одеждой крутостей. Если сравнить их с аналогичными траншеями Балаклавской укрепленной группы, то становится понятна сила огня, практически полностью их разрушившая
Первое решение обойти опорный пункт по часовой стрелке по периметру вдоль траншеи оказалось неверным. Я запоролся в непроходимый колючий кустарник и кроме ям черных копателей с выброшенными рядом остатками фрагментов военного железа и подошвой от сапога ничего интересного на северном склоне не нашел. Хотя нет, нашел еще вот этот чудом сохранившийся бетонный козырек над нишей в траншее опорного пункта. Как ни странно это не следы последней войны, а оборудованное укрытие для пехоты в годы Первой мировой войны. Тогда к 1917 году вялотекущее строительство Центрального опорного пункта закончилось только отрывкой и укреплением траншей и вот таких вот укрытий для пехоты в них. Для других казематированных построек укрепления была начата только отрывка котлованов. Эти ниши сослужили хорошую службу в 1941-1942 годах.
Первое решение обойти опорный пункт по часовой стрелке по периметру вдоль траншеи оказалось неверным. Я запоролся в непроходимый колючий кустарник и кроме ям черных копателей с выброшенными рядом остатками фрагментов военного железа и подошвой от сапога ничего интересного на северном склоне не нашел. Хотя нет, нашел еще вот этот чудом сохранившийся бетонный козырек над нишей в траншее опорного пункта. Как ни странно это не следы последней войны, а оборудованное укрытие для пехоты в годы Первой мировой войны. Тогда к 1917 году вялотекущее строительство Центрального опорного пункта закончилось только отрывкой и укреплением траншей и вот таких вот укрытий для пехоты в них. Для других казематированных построек укрепления была начата только отрывка котлованов. Эти ниши сослужили хорошую службу в 1941-1942 годах.
Чуть возвращаюсь обратно и направляюсь к центру возвышенности 39,56 к тому, к чему неуклонно стремился - командному пункту 30-ой батареи и бронированной дальномерной рубке. Эта рубка встречает нас на обращенном к морю склоне возвышенности подобно закованному в броню средневековому рыцарю. На фото представлен вид с тыльной части. Рубка при консервации батареи была развернута задней частью к морю, стыдливо отвернувшись чтобы не видеть разруху 90-х...
Чуть возвращаюсь обратно и направляюсь к центру возвышенности 39,56 к тому, к чему неуклонно стремился - командному пункту 30-ой батареи и бронированной дальномерной рубке. Эта рубка встречает нас на обращенном к морю склоне возвышенности подобно закованному в броню средневековому рыцарю. На фото представлен вид с тыльной части. Рубка при консервации батареи была развернута задней частью к морю, стыдливо отвернувшись чтобы не видеть разруху 90-х...

В послевоенный период командный пункт батареи подвергся значительной реконструкции. Установка на нем радиолокационной станции орудийной наводки потребовала строительства специальной железобетонной рубки для размещения вращающегося антенного устройства, накрытого сверху радиопрозрачным стеклопластиковым колпаком. В помещениях наземной части КП дополнительно пришлось разместить аппаратный и агрегатный посты РЛС, что повлекло за собой переделку входа (часть прежнего коленчатого сквозника была использована для установки аппаратуры, а к оставшейся пристроили новый прямой сквозник со световым колодцем).

План и разрез командного пункта (слева) и дальномерного поста.
План и разрез командного пункта (слева) и дальномерного поста.

Вместо прежней системы управления стрельбой типа «Баррикада» (приборы и кабельные трассы которой были демонтированы немцами в период оккупации Севастополя) батарея получила опытный образец новейшей системы «Берег-30». Основными отличиями ее были отсутствие горизонтальнобазного дальномера, работающего от сети целеуказательных постов (после появления радиолокационных средств необходимость в нем отпала) и наличие более совершенных центрального автомата стрельбы (прибор «1-Б») и трансформатора азимута и дистанции (прибор «77»).  Целеуказание в систему поступало от располагавшегося в боевой рубке визира «ВБК-2» (экспериментальный образец) с тремя независимыми оптическими системами для командира батареи и наводчиков по азимуту цели и всплеска, бронированной дальномерной рубки «РД-2-8» с двумя 8-метровыми стереодальномерами «ДМС-8» и радиолокационных станции орудийной наводки «Залп-Б» и станции обнаружения «Шкот». Для ночной стрельбы использовались две теплопеленгаторные станции, размещенные севернее и южнее огневой позиции батареи в специальных железобетонных казематах, действующие совместно с расположенными неподалеку от них прожекторами. Возможности системы управления стрельбой позволяли батарее уверенно поражать видимые и невидимые цели, движущиеся со скоростью до 60 узлов.

 Обратите внимание на сварные швы бронированной дальномерной рубки и крючки для крепления маскировочной сетки
Обратите внимание на сварные швы бронированной дальномерной рубки и крючки для крепления маскировочной сетки
Оба восьмиметровых дальномера сильно повреждены, их внешние линзы местами выломаны несмотря на защитные лючки. В целя сохранения оставшегося отверстия забетонированы, а сама рубка то ли для маскировки, то ли для защиты от вандалов частично обложена диким камнем
Оба восьмиметровых дальномера сильно повреждены, их внешние линзы местами выломаны несмотря на защитные лючки. В целя сохранения оставшегося отверстия забетонированы, а сама рубка то ли для маскировки, то ли для защиты от вандалов частично обложена диким камнем
Если я не ошибаюсь, это единственная дальномерная рубка, сохранившаяся в береговой обороне на Черном море.  Правая часть нижнего дальномера пока еще имеет защитный лючок.
Если я не ошибаюсь, это единственная дальномерная рубка, сохранившаяся в береговой обороне на Черном море. Правая часть нижнего дальномера пока еще имеет защитный лючок.
Центральная часть дальномерной рубки напоминает рыцарский шлем. Происхождение и назначение этих наваренных заплаток я затрудняюсь объяснить
Центральная часть дальномерной рубки напоминает рыцарский шлем. Происхождение и назначение этих наваренных заплаток я затрудняюсь объяснить
Левая часть дальномеров пострадала от рук вандалов сильнее. Здесь броня частично снята и отверстия к оптическим приборам забетонированы в целях консервации
Левая часть дальномеров пострадала от рук вандалов сильнее. Здесь броня частично снята и отверстия к оптическим приборам забетонированы в целях консервации
Левая часть рубки, вид с тыла
Левая часть рубки, вид с тыла
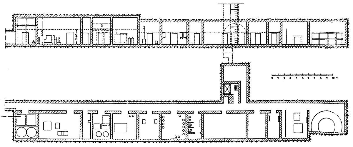
План и разрез подземной части командного пункта
План и разрез подземной части командного пункта
А вот так командный пункт выглядит на поверхности. На переднем плане броневая командирская рубка управления огнем с визиром батарейного командира (ВБК-2). На дальнем плане рубка радиолокационной станции орудийной наводки «Залп-Б» с остатками радиопрозрачного колпака локатора
А вот так командный пункт выглядит на поверхности. На переднем плане броневая командирская рубка управления огнем с визиром батарейного командира (ВБК-2). На дальнем плане рубка радиолокационной станции орудийной наводки «Залп-Б» с остатками радиопрозрачного колпака локатора
Обратите внимание на командирскую рубку, похоже, что она обшита жестью с теплоизоляцией под ней. Когда-то также были обшиты орудийные башни.
Обратите внимание на командирскую рубку, похоже, что она обшита жестью с теплоизоляцией под ней. Когда-то также были обшиты орудийные башни.
Еще один ракурс этого уникального сооружения. По моим прикидкам на Черном море все броневые рубки управления огнем береговых батарей срезаны на металл. Осталась только вот эта и правый КДП 35-ой батареи в частной застройке.
Еще один ракурс этого уникального сооружения. По моим прикидкам на Черном море все броневые рубки управления огнем береговых батарей срезаны на металл. Осталась только вот эта и правый КДП 35-ой батареи в частной застройке.
В рубке имеется не менее четырех смотровых щелей защищенных триплексами. Но кто-то тут уже успел повандалить и пытался разбить триплекс
В рубке имеется не менее четырех смотровых щелей защищенных триплексами. Но кто-то тут уже успел повандалить и пытался разбить триплекс
Заглянем вовнутрь радиолокационной рубки. Здесь царит разруха
Заглянем вовнутрь радиолокационной рубки. Здесь царит разруха
У этой рубки тоже имеются похожие на смотровые, но служащие для вентиляции щели
У этой рубки тоже имеются похожие на смотровые, но служащие для вентиляции щели
Вид на радиолокационную рубку с тыла. На переднем плане вентиляционная труба скрытого под землей КП.
Вид на радиолокационную рубку с тыла. На переднем плане вентиляционная труба скрытого под землей КП.
А это забетонированный вход на КП. Двери когда-то срезали мародеры
А это забетонированный вход на КП. Двери когда-то срезали мародеры
Какие-то отверстия в бетонной плите рядом. Дымовая камера?
Какие-то отверстия в бетонной плите рядом. Дымовая камера?
Еще один большой люк под землю
Еще один большой люк под землю
Заглядываю вниз и вижу сохранившийся скобтрап. Ну как по нему не спуститься? Тем более на дне ямы виднеется отверстие какого-то лаза
Заглядываю вниз и вижу сохранившийся скобтрап. Ну как по нему не спуститься? Тем более на дне ямы виднеется отверстие какого-то лаза
Действительно отверстие ведет в узкую галерею. Я немного протиснулся в нее, но дальше лезть не рискнул. Мне не улыбалась перспектива застрять намертво в этом безлюдном месте. Интересно, что на стенах и полу этой галереи в изобилии присутствовала копоть. Что это? Следы пожара июня 1942 года или в эту галерею производился выхлоп дизельгенератора? если сама яма оставляет впечатление послевоенной постройки, то галерея выглядит несколько более "древней".
Действительно отверстие ведет в узкую галерею. Я немного протиснулся в нее, но дальше лезть не рискнул. Мне не улыбалась перспектива застрять намертво в этом безлюдном месте. Интересно, что на стенах и полу этой галереи в изобилии присутствовала копоть. Что это? Следы пожара июня 1942 года или в эту галерею производился выхлоп дизельгенератора? если сама яма оставляет впечатление послевоенной постройки, то галерея выглядит несколько более "древней".
Возвращаюсь на поверхность и начинаю обследовать местность концентрическими кругами с центром на месте рубки. Мое внимание привлекла железобетонная плита, прикрывающая какое-то заглубленное сооружение
Возвращаюсь на поверхность и начинаю обследовать местность концентрическими кругами с центром на месте рубки. Мое внимание привлекла железобетонная плита, прикрывающая какое-то заглубленное сооружение
По соседству обнаруживаются руины еще каких-то объектов. Это орудийные дворики послевоенной зенитной батареи. С ее устройством и конфигурацией надо еще разбираться
По соседству обнаруживаются руины еще каких-то объектов. Это орудийные дворики послевоенной зенитной батареи. С ее устройством и конфигурацией надо еще разбираться
От них практически ничего не осталось. Зачем они были разрушены мне не понятно
От них практически ничего не осталось. Зачем они были разрушены мне не понятно
Зенитная батарея была расположена на западном склоне возвышенности и предназначалась для прикрытия 30-ой батареи. Вооружена она была восмью 57-мм орудиями С-60 и четырьмя ЗПУ. Одно из орудий сейчас находится в виде экспоната на покрытии орудийного блока
Зенитная батарея была расположена на западном склоне возвышенности и предназначалась для прикрытия 30-ой батареи. Вооружена она была восмью 57-мм орудиями С-60 и четырьмя ЗПУ. Одно из орудий сейчас находится в виде экспоната на покрытии орудийного блока
Остатки котлована под так и не построенное горжевое убежище Центрального опорного пункта
Остатки котлована под так и не построенное горжевое убежище Центрального опорного пункта
Перехожу в восточную часть возвышенности и обследую резервуар для воды. Здесь все еще сильно опутано колючей проволокой
Перехожу в восточную часть возвышенности и обследую резервуар для воды. Здесь все еще сильно опутано колючей проволокой
Очередной люк под землю
Очередной люк под землю
По траншее опорного пункта (здесь на фото представлен неплохо сохранившийся ее фрагмент с бетонными ступенями для подъема пехоты на бруствер) выхожу к самому восточному ДОТу противодиверсионной обороны 30-ой батареи
По траншее опорного пункта (здесь на фото представлен неплохо сохранившийся ее фрагмент с бетонными ступенями для подъема пехоты на бруствер) выхожу к самому восточному ДОТу противодиверсионной обороны 30-ой батареи
ДОТ классической конструкции с одним казематом на пять амбразур для одного пулемета на погоне. Его стены получили сильные повреждения с северной и восточной сторон. Перед его фронтальной частью сквозь листву проглядывают постройки заброшенного казарменного городка 30-ой батареи
ДОТ классической конструкции с одним казематом на пять амбразур для одного пулемета на погоне. Его стены получили сильные повреждения с северной и восточной сторон. Перед его фронтальной частью сквозь листву проглядывают постройки заброшенного казарменного городка 30-ой батареи
Внутри каземата
Внутри каземата
Вид на ДОТ с юга. Имеющиеся с этой стороны сильные повреждения наглядно иллюстрирую хронику взятия опорного пункта "Бастион" в июне 1942 года. Именно путем обхода по лощине с юга высота была сначала блокирована, а потом взята немецкими подразделениями. Обратите внимание на забетонированную крайнюю правую амбразуру. Зачем и когда? Если это было забетонировано в 1941-1942 годах для повышения защищенности сооружения при артобстреле и бомбардировке, то это укладывается в привычную картину. А вот если амбразуру забетонировали немцы в период обороны 1944 года, то мы имеем дело со следами штурма ОТ уже нашими войсками. Не секрет, что взятие Севастополя в мае 1944 года в тактическом плане повторило один в один немецкое взятие Севастополя в июне 1942 года.
Вид на ДОТ с юга. Имеющиеся с этой стороны сильные повреждения наглядно иллюстрирую хронику взятия опорного пункта "Бастион" в июне 1942 года. Именно путем обхода по лощине с юга высота была сначала блокирована, а потом взята немецкими подразделениями. Обратите внимание на забетонированную крайнюю правую амбразуру. Зачем и когда? Если это было забетонировано в 1941-1942 годах для повышения защищенности сооружения при артобстреле и бомбардировке, то это укладывается в привычную картину. А вот если амбразуру забетонировали немцы в период обороны 1944 года, то мы имеем дело со следами штурма ОТ уже нашими войсками. Не секрет, что взятие Севастополя в мае 1944 года в тактическом плане повторило один в один немецкое взятие Севастополя в июне 1942 года.
Вид на бывший казарменный городок 30-ой батареи. Где-то тут притаилась братская могила погибших на КП защитников батареи
Вид на бывший казарменный городок 30-ой батареи. Где-то тут притаилась братская могила погибших на КП защитников батареи
Вид на долину реки Бельбек с центральной части возвышенности. Не помню на что забрался, чтобы снять. Наверное на броневую рубку. На переднем плане в кустах так называемая Нахаловка, а на дальнем, на противоположной возвышенности правого борта долины р.Бельбек, - приемный радиоцентр ЧФ.
Вид на долину реки Бельбек с центральной части возвышенности. Не помню на что забрался, чтобы снять. Наверное на броневую рубку. На переднем плане в кустах так называемая Нахаловка, а на дальнем, на противоположной возвышенности правого борта долины р.Бельбек, - приемный радиоцентр ЧФ.

На этом мы прощаемся с героической и уникальной Тридцатой батареей, чудом сохранившейся в эпоху безвременья. Я очень надеюсь, что в уже российском Крыму ее ждет прекрасное будущее и она не будет растаскана на металл и разворована как это делалось с ней в нулевые годы руками военных.

Полный оригинальный репортаж смотрите в моем блоге starcom68

МЕТКИ: Артиллерия, Береговая оборона, ВОВ, ДОТы, Забытые крепости, Крым, Немецкие фото, Севастополь, Фортификация