Найти в Дзене
Кадастр.Москва

Нюансы определения границы помещения

Говоря простым языком, помещение - это пространство внутри здания, которое ограничено строительными конструкциями, стенами, перегородками. Чтобы помещение считалось самостоятельным объектом недвижимости, оно должно обладать признаками изолированности и обособленности. Изолированность - это возможность исключить доступ в помещение собственников других помещений. Причем под изолированностью скрывается еще две составляющие: первая - внутренняя связь между всеми частями такого помещения, т.е. если помещение состоит из нескольких комнат, то должна быть возможность пройти через все комнаты, не выходя за пределы помещения, вторая - доступ из помещения в места общего пользования (коридоры, холлы) или сразу на улицу. Обособленность - наличие стен и перегородок. Рассмотрим для примера два помещения: помещение I, состоящее из комнаты 2 (синий контур) и помещение II, состоящее из комнат 11, 12 и 13 (красный контур). Площадь помещения I 340,8 кв.м, помещения II составляет 7,2+7,4+33,6=48,2 кв.м. Ка

Говоря простым языком, помещение - это пространство внутри здания, которое ограничено строительными конструкциями, стенами, перегородками.

Чтобы помещение считалось самостоятельным объектом недвижимости, оно должно обладать признаками изолированности и обособленности.

Изолированность - это возможность исключить доступ в помещение собственников других помещений. Причем под изолированностью скрывается еще две составляющие: первая - внутренняя связь между всеми частями такого помещения, т.е. если помещение состоит из нескольких комнат, то должна быть возможность пройти через все комнаты, не выходя за пределы помещения, вторая - доступ из помещения в места общего пользования (коридоры, холлы) или сразу на улицу. Обособленность - наличие стен и перегородок.

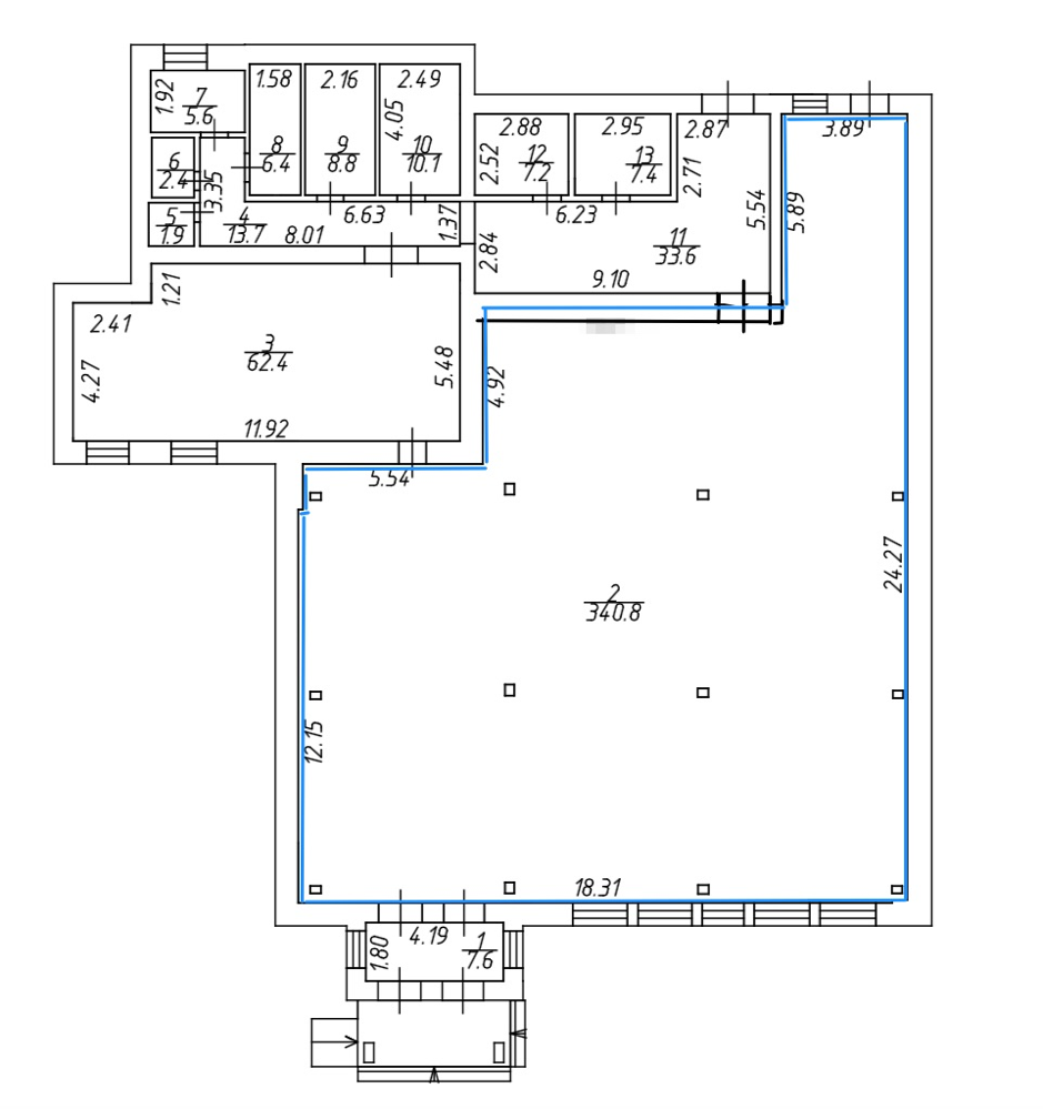
Рассмотрим для примера два помещения: помещение I, состоящее из комнаты 2 (синий контур) и помещение II, состоящее из комнат 11, 12 и 13 (красный контур).

Площадь помещения I 340,8 кв.м, помещения II составляет 7,2+7,4+33,6=48,2 кв.м. Как видно по рисунку, стены и перегородки являются искусственными ограничителями пространства помещений, и на них не распространяется право собственности. При этом границами помещений являются внутренние поверхности внешних стен. Именно по ним проходит так называемый контур помещения (граница помещения). В рамках такого контура собственник может реализовывать свое право. Следовательно, разграничивающая стена с промерами 9,10 в одном помещении и 9,21 в другом не относится ни к помещению I, ни к помещению II.

Рассмотрим случай, когда произошла небольшая перепланировка в части утолщения стены с промером 9,21 в помещении I.

-2

По идее, контур помещения I измениться не должен, так как в случае изменения границ помещения невозможно провести учет изменений объекта недвижимости. С другой стороны, физически площадь помещения I была уменьшена за счет утолщения стены. Получается, что для успешного учета изменений в результате перепланировки (утолщение стены) контур помещения I изменять не нужно (но тогда мы противоречим требованиям к формированию контура помещения) и площадь также нужно оставить прежнюю, так как контур мы не меняем.

В тоже самое время, уменьшая или увеличивая толщину внешних стен, ограничивающих область действия права собственности на помещения, будут затронуты, по аналогии с жилищным законодательством, интересы всех остальных собственников помещений в этом здании, поскольку ограничивающие пространство помещения стены не входят в право собственности на данное помещение.

Существует и еще одна проблема с границами помещения (контуром помещения). В случае значительной перепланировки, при сопоставлении вида до перепланировки (планировка помещения по сведениям в Едином государственном реестре недвижимости ЕГРН) и вида после перепланировки (планировка из проектной документации), регистратор, принимая решения об учете изменений, вынужден визуально определять, нет ли отличия в части изменения внешнего контура рассматриваемого помещения (в результате перепланировки могут быть затронуты соседние помещения, помещение может расшириться с увеличением фактической площади за счет уменьшения толщин его внешних стен или наоборот - уменьшится в фактических размерах за счет утолщения его внешних стен).

Такое визуальное сопоставление различных видов помещения до и после перепланировки - лишняя возможность допустить ошибки при проверке документов.

Таким образом, мы приходим к пониманию, что по аналогии с земельными участками границы помещений в сведениях ЕГРН должны быть определены как пространственные объекты. 

Если у вас есть вопросы по поводу правильности определения контура вашего помещения, вы можете обратиться к нам за бесплатной консультацией.

-3