ПРАВИЛЬНЫЙ МАНГАЛ Своими Руками! || ВСЕ РАЗМЕРЫ!!!
Мангал своими руками. Сосед до сих пор завидует, а делать его очень легко и дёшево
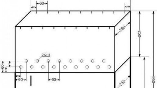
Как сварить мангал своими руками. Сварка – это один из самых распространенных способов изготовления мангала. Она позволяет создать прочное и долговечное изделие, которое будет служить не один год. В этой статье мы расскажем, как сварить мангал самостоятельно. Выбор материала. Перед тем, как приступить к работе, необходимо выбрать материал для изготовления мангала. Наиболее распространенными материалами являются сталь и чугун. Сталь более легкая и дешевая, но она быстрее нагревается и остывает, чем чугун...
Сварить мангал своими руками
Мангал для приготовления шашлыка и мяса сегодня стал неотъемлемым атрибутом дачной жизни. В настоящее время это металлическое приспособление есть в каждом загородном доме. А дело лишь в том, что приготовление мяса на углях под открытым небом – любимое занятие тех, кто предпочитает отдыхать загородом...