Перепланировка квартиры: почему всегда нужно сносить стены в новостройке #220 [ ЗЕМСПРОЕКТ, ЗЕМСТАНДАРТ ]
Перепланировка квартиры: что нужно согласовывать, а что нет
Ни об одной перепланировке нельзя сказать, что её точно разрешат. Главные принципы любых изменений — не трогать несущие конструкции, не менять общую площадь квартиры, не касаться общего оборудования. Вот примерный список изменений, на которые не наложен строгий запрет: Можно выполнять любую отделку, если она не влияет на эксплуатацию дома и не меняет никаких конфигураций. Итак, можно не спрашивать разрешения у органов на: Важно. Если решено поменять газовое оборудование, например, плиту, то нужно...
Перепланировка квартиры: пошаговое руководство от идеи до закона с актуальными требованиями и документами
Как сделать проект для перепланировки квартиры: гайд от мельницы до пирога (со сметой и актами)
Или как превратить хаотичные желания в красивый технический документ, чтобы не спровоцировать визит контролёров и штрафные санкции. Прогрессия: от мечты до проекта
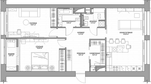
Каждый владелец квартиры когда-нибудь задумывается: а поменять бы планировку, объединить кухню с гостиной или превратить темную ванну в светлый санузел. Но именно здесь начинается настоящее кулинарное испытание — превратить фантазии в документы, способные пройти через жёсткие фильтры контролирующих органов...