Ремонт своими руками/Погреб за 140 тыс/Что нужно для ремонта/Грунтовка стен/Испытание электрокосилки
Как в квартире площадью 44 м2 разместить всё, что нужно для комфорта! Бонусом – цена ремонта
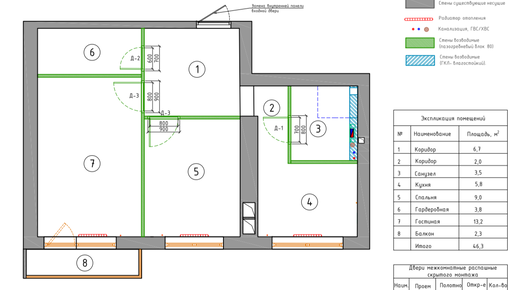
В новом проекте Remplanner уютная двушка недалеко от метро Кутузовская. Расположена квартира в многоэтажном блочном доме 1965 года постройки. Ее главная особенность, пожалуй, крохотная кухня, чуть больше 5 м2, которую никак нельзя увеличить. Нам предстояло создать уютную и стильную планировку для молодой пары, предусмотрев все, что требуется для комфортной жизни. На наш взгляд, нам это удалось! Особенность планировки такова, что на коридор пришлось почти 9 м2, причем задействовать эту площадь крайне сложно...