Добавить в корзинуПозвонить
Найти в Дзене

Кейс: как ускоренная визуализация интерьеров увеличивает конверсию продаж в ИЖС

Рынок индивидуального жилищного строительства сегодня переживает этап качественного усложнения. Рост объемов, усиление конкуренции и изменение поведения покупателей приводят к тому, что привычные инструменты продаж перестают работать так же эффективно, как раньше. Если еще несколько лет назад можно было продавать дом через планировки, фасады и базовые характеристики, то сегодня этого уже недостаточно. Ключевая проблема заключается не в самом продукте, а в его восприятии. Покупатель не умеет читать архитектурные чертежи и не воспринимает планировку как готовое пространство. Для него это набор линий, который требует дополнительных усилий для интерпретации. В условиях высокой конкуренции это становится критичным: клиент выбирает не тот проект, который объективно лучше, а тот, который быстрее и проще понимается. В результате даже качественные архитектурные решения теряют в конверсии на этапе презентации. Девелопер вкладывается в продукт, но не доносит его ценность до рынка. Попытка закрыть

Рынок индивидуального жилищного строительства сегодня переживает этап качественного усложнения. Рост объемов, усиление конкуренции и изменение поведения покупателей приводят к тому, что привычные инструменты продаж перестают работать так же эффективно, как раньше. Если еще несколько лет назад можно было продавать дом через планировки, фасады и базовые характеристики, то сегодня этого уже недостаточно.

Ключевая проблема заключается не в самом продукте, а в его восприятии. Покупатель не умеет читать архитектурные чертежи и не воспринимает планировку как готовое пространство. Для него это набор линий, который требует дополнительных усилий для интерпретации. В условиях высокой конкуренции это становится критичным: клиент выбирает не тот проект, который объективно лучше, а тот, который быстрее и проще понимается.

В результате даже качественные архитектурные решения теряют в конверсии на этапе презентации. Девелопер вкладывается в продукт, но не доносит его ценность до рынка.

Попытка закрыть эту проблему через полноценный дизайн-проект сталкивается с рядом ограничений. Во-первых, это высокая стоимость — в среднем от 100 до 300 тысяч рублей на один дом. Во-вторых, длительные сроки разработки, которые не совпадают с задачами маркетинга. В-третьих, избыточность: большая часть проектной документации не используется в продажах и не влияет на решение покупателя.

Таким образом формируется разрыв между продуктом и инструментами его представления. Именно этот разрыв становится точкой потери денег.

В рамках данного кейса задача была сформулирована иначе: не создавать интерьер как отдельный продукт, а разработать инструмент визуализации, который работает в логике продаж. Ключевыми требованиями стали скорость, экономическая эффективность и достоверность.

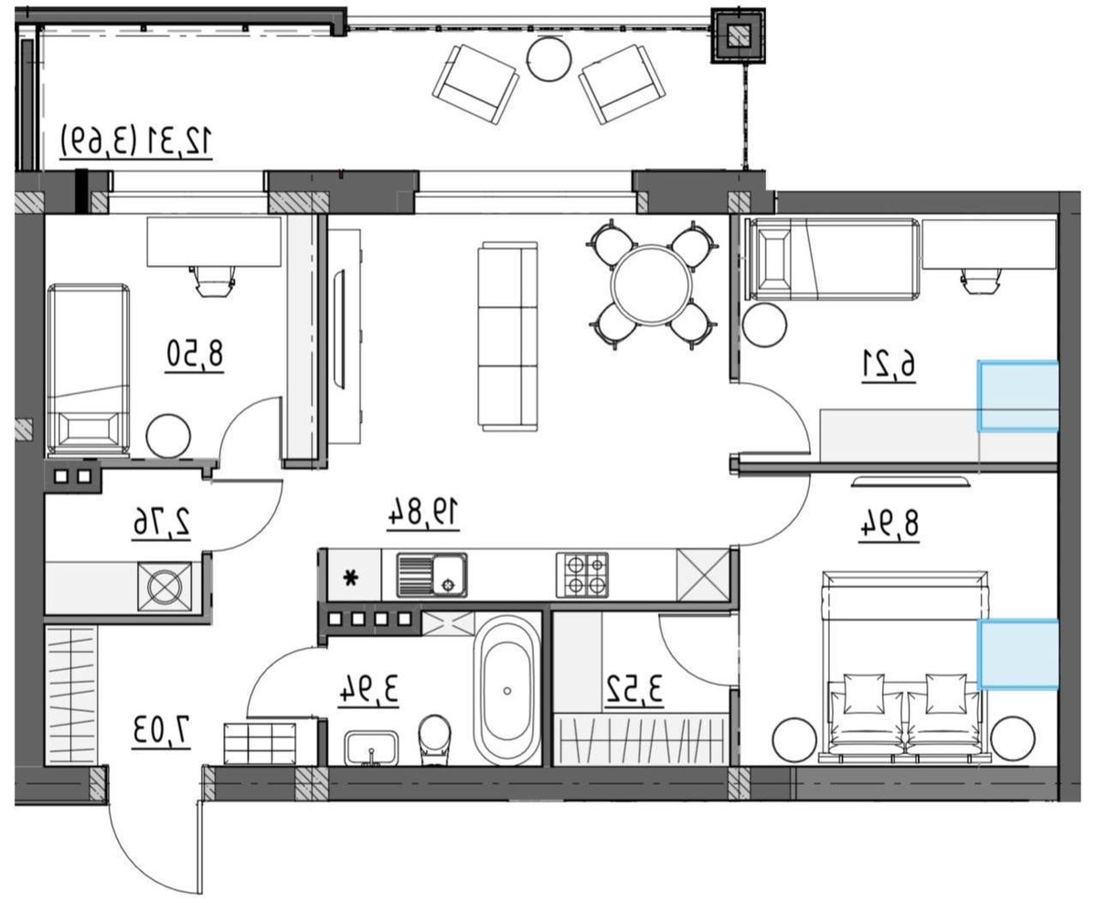
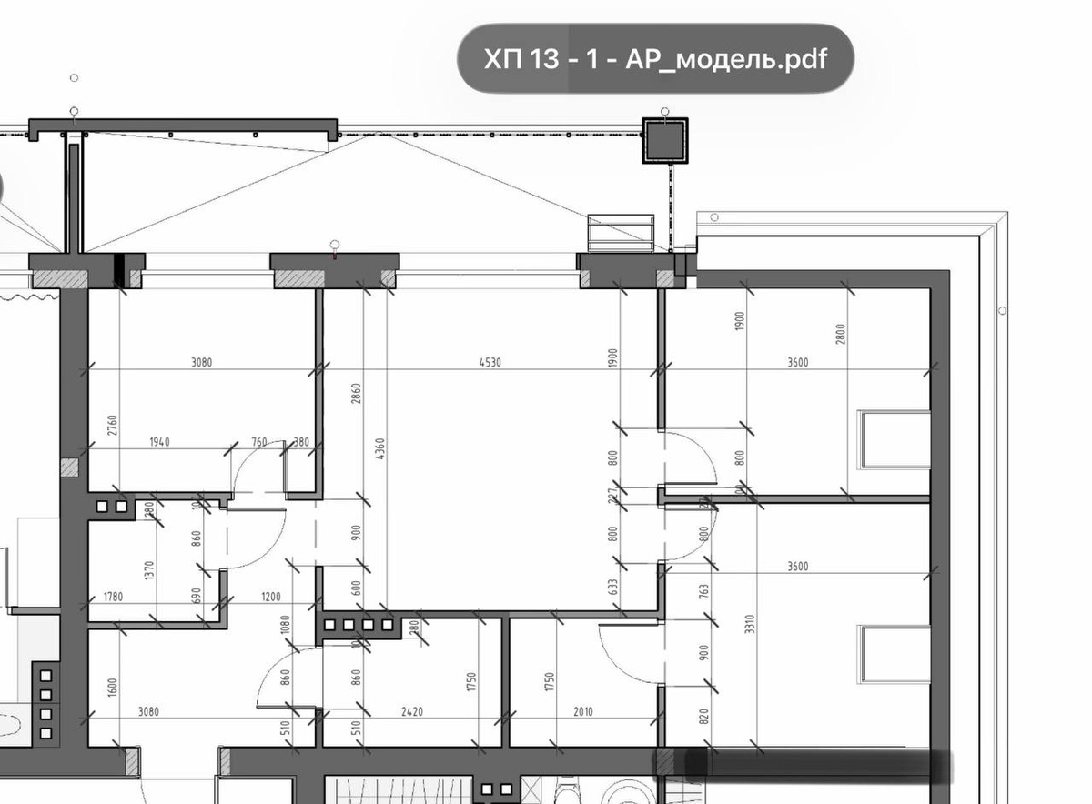
Основой решения стала работа с реальной архитектурной моделью. Визуализация строилась на базе BIM-проекта, что позволило сохранить точные пропорции, геометрию и логику зонирования. Это принципиально важно, поскольку любое искажение пространства снижает доверие со стороны покупателя.

Дополнительно использовались фактические данные объекта — реальные фотографии дома, даже на стадии строительства. Качество исходных материалов не являлось критичным: ключевую роль играли геометрия, освещение и видовые характеристики. Такой подход позволил сохранить ощущение реалистичности и избежать эффекта «глянцевой картинки», оторванной от реальности.

Отдельный блок работы был связан с формированием стилистики интерьеров. Она определялась не субъективными предпочтениями, а параметрами рынка: сегментом проекта, ожиданиями целевой аудитории и сценариями использования пространства. Фактически речь шла о продуктовой упаковке, а не о классическом дизайне.

Ключевым технологическим элементом стала генерация интерьеров с использованием нейросетей. При этом основная сложность заключалась не в создании отдельных изображений, а в обеспечении их системности. Необходимо было добиться стилистической целостности, точного соответствия планировке и повторяемости решений во всех помещениях. В результате была выстроена технология создания бесшовных интерьеров, которые воспринимаются как единое пространство.

Результаты проекта подтвердили эффективность подхода. Срок подготовки визуализаций составил до 7 дней, что позволяет оперативно выводить продукт на рынок. Бюджет оказался в 2–3 раза ниже по сравнению с классическим дизайн-проектом. При этом заказчик получил полный комплект материалов для маркетинга и продаж.

С точки зрения бизнеса ключевой эффект заключается в изменении восприятия продукта. Покупатель видит не абстрактные характеристики дома, а конкретный сценарий жизни. Это снижает уровень неопределенности и ускоряет принятие решения.

Дополнительно появляется возможность продаж на ранних стадиях строительства. Даже при отсутствии готового объекта девелопер может презентовать продукт максимально понятно и убедительно.

В текущих рыночных условиях визуализация становится не дополнительным элементом, а обязательной частью продуктовой упаковки. Покупатель оценивает не только параметры дома, но и качество среды, сценарии жизни и уровень готовности решения.

Что у нас получилось в итоге:

Таким образом, ускоренная визуализация интерьеров позволяет девелоперам сократить сроки подготовки проекта, оптимизировать бюджет и повысить эффективность продаж без лишних затрат.

Если вы хотите понять, как этот инструмент может работать в вашем проекте и где вы теряете конверсию — напишите https://t.me/annaHrustalni «разбор». Разберем на практике и покажем точки роста.