Добавить в корзинуПозвонить
Найти в Дзене
INMYROOM

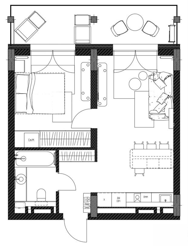
Продуманная кухня с островом в однушке 39 м²

Здесь вписали этнические мотивы в современную кухню и сделали остров главным предметом Дизайнер Анна Сотикова разработала проект под названием «Новый Русский» для однушки 39 м² в Новосибирске. Идея — соединить этнические мотивы с функциональным современным жильем. Кухня-гостиная здесь общая зона, где все в одном стиле и с умом: белый микроцемент, дерево трех пород и мятные акценты в мебели. Гарнитур линейный, белый, с деревянными ручками ручной работы — они же повторяются на всех шкафах и колонне с техникой. Холодильник, духовка и микроволновка встроены в высокую колонну, посудомойка спрятана в нижних модулях. Верхних шкафов нет совсем: вместо них — одна широкая полка с высоким бортом и подсветкой снизу, на которой аккуратно стоят специи и небольшой декор. Столешница из натурального дерева отвечает за уютную атмосферу. Зеркальный цоколь по всей длине гарнитура — один из самых интересных приемов на кухне. Он отражает пол и создает ощущение, что шкафы парят над поверхностью. Визуально пр

Здесь вписали этнические мотивы в современную кухню и сделали остров главным предметом

Дизайнер Анна Сотикова разработала проект под названием «Новый Русский» для однушки 39 м² в Новосибирске. Идея — соединить этнические мотивы с функциональным современным жильем. Кухня-гостиная здесь общая зона, где все в одном стиле и с умом: белый микроцемент, дерево трех пород и мятные акценты в мебели.

 📷Дизайн: Анна Сотикова
📷Дизайн: Анна Сотикова

Гарнитур линейный, белый, с деревянными ручками ручной работы — они же повторяются на всех шкафах и колонне с техникой. Холодильник, духовка и микроволновка встроены в высокую колонну, посудомойка спрятана в нижних модулях.

 📷Дизайн: Анна Сотикова
📷Дизайн: Анна Сотикова

Верхних шкафов нет совсем: вместо них — одна широкая полка с высоким бортом и подсветкой снизу, на которой аккуратно стоят специи и небольшой декор. Столешница из натурального дерева отвечает за уютную атмосферу.

 📷Дизайн: Анна Сотикова
📷Дизайн: Анна Сотикова

Зеркальный цоколь по всей длине гарнитура — один из самых интересных приемов на кухне. Он отражает пол и создает ощущение, что шкафы парят над поверхностью. Визуально пространство становится легче, и это особенно важно в небольшой квартире, где кухня и гостиная — одна зона.

 📷Дизайн: Анна Сотикова
📷Дизайн: Анна Сотикова

Центр всего — остров с деревянной столешницей и основанием, отделанным штукатуркой под мазанку. Фактура грубоватая, и именно это контрастирует с белыми фасадами и создает нужную глубину. С одной стороны острова три мятных барных стула, с другой — закрытый шкафчик для сыпучих продуктов. Над островом две крупные асимметричные люстры на черных тросах: они двигаются при открытии балкона и добавляют пространству динамику.

 📷Дизайн: Анна Сотикова
📷Дизайн: Анна Сотикова

Гостиная плавно продолжает кухню без четкой границы. Серый диван, темный круглый журнальный стол, джутовый и геометрический зеленый ковры — всё в одной природной гамме.

 📷Дизайн: Анна Сотикова
📷Дизайн: Анна Сотикова

Тумба под телевизор стилизована под низкую русскую лавку, на полу местами лежат домотканые половики. Этнические детали здесь не кричат — они просто есть, и это именно тот баланс, который делает концепцию убедительной.

Сейчас читают:

Если вы делаете ремонт или просто любите красивые интерьеры, наш канал сэкономит вам часы поиска идей.

Ставьте ❤️ и подписывайтесь:

Дзен | VK | Telegram | Max |