Добавить в корзинуПозвонить
Найти в Дзене
FORUMHOUSE

Дом вместо долгостроя: как форумчанин собрал жильё из бытовок и сразу начал жить

Дом вместо долгостроя: как форумчанин собрал жильё из бытовок и сразу начал жить
Есть два типа строящихся: одни годами тянут «идеальный дом» — и живут всё это время в ожидании. Другие — делают проще, но уже живут.
Эта история как раз про вторых. Участник FORUMHOUSE MaxG2012 вместо классического сценария «сначала стройка — потом жизнь» пошёл от обратного: взял две утеплённые бытовки и собрал из них дом.
Что получилось по факту
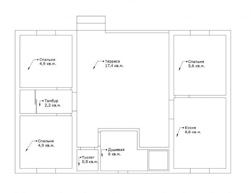
— Дом 6×8 м — Две бытовки по краям + терраса по центру — Общая крыша, объединяющая всё в один объём — Фундамент — простые бетонные блоки на подсыпке
Компактно, но всё есть: спальни, кухня, хранение, отопление.
Что сделали своими руками
— Собрали каркас вокруг бытовок, чтобы не ломать их конструкцию — Обшили ЦСП — бюджетно и живуче — Сделали большие свесы крыши — защита фасада — Фронтоны — обычная вагонка с антисептиком — Проложили сразу коммуникации (вода, канализация, электрика)
Инженерка без излишеств
— Отопление — обычные электроконвекторы — Управление — ч

Дом вместо долгостроя: как форумчанин собрал жильё из бытовок и сразу начал жить

Есть два типа строящихся: одни годами тянут «идеальный дом» — и живут всё это время в ожидании. Другие — делают проще, но уже живут.
Эта история как раз про вторых. Участник FORUMHOUSE MaxG2012 вместо классического сценария «сначала стройка — потом жизнь» пошёл от обратного: взял две утеплённые бытовки и собрал из них дом.

Что получилось по факту
— Дом 6×8 м — Две бытовки по краям + терраса по центру — Общая крыша, объединяющая всё в один объём — Фундамент — простые бетонные блоки на подсыпке
Компактно, но всё есть: спальни, кухня, хранение, отопление.

Что сделали своими руками
— Собрали каркас вокруг бытовок, чтобы не ломать их конструкцию — Обшили ЦСП — бюджетно и живуче — Сделали большие свесы крыши — защита фасада — Фронтоны — обычная вагонка с антисептиком — Проложили сразу коммуникации (вода, канализация, электрика)

Инженерка без излишеств
— Отопление — обычные электроконвекторы — Управление — через GSM + умные розетки — Вода — накопительная ёмкость + бойлер
Причём автор честно пишет: ожидал «как в квартире», а получил — как в даче. Но — работает.
— Септик вместо торфяного туалета, для большего комфорта.

Ошибки, которые всплыли
— Розеток всегда мало → пришлось переделывать — Двери из массива на улице «повело» — Электрику от подрядчика переделал почти сразу — Заезд на участок пришлось срочно делать второй
Классика, которую многие проходят, но редко так честно показывают.

Интерьер без переплат
— Линолеум — Простая модульная кухня — Самодельные системы хранения — Минимум «красоты», максимум функционала

Дом доделывался постепенно — по выходным и отпускам. Параллельно — участок, огород, нормальная жизнь.
И спустя пару лет:
— фасад в порядке — ничего не разваливается — жить комфортно
А главное — не было этих лет “на паузе”. А идеал догонит потом.

Полную историю с этапами и массой самодельных находок читайте в нашем Журнале https://www.forumhouse.ru/journal/articles/11212-stilnyy-domik-iz-bytovok-i-drugie-radosti-zagorodnoy-zhizni-vmesto-dolgostroya

-2
-3
-4
-5
-6
-7
-8
-9
-10