Добавить в корзинуПозвонить
Найти в Дзене

Аквариум — центр квартиры

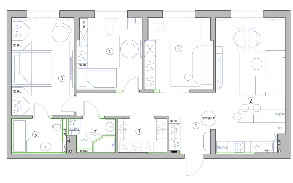
🐚 Начинаем разбор нового проекта #градиз_наутилус И сразу с самого важного — перепланировки Локация: г. Екатеринбург, ЖК Архитектон Объект: 4-ех комнатная квартира Площадь: 98,3 м² Заказчики просили сохранить максимум от существующей планировки, поэтому работали точечно. Но даже незначительные изменения сделали пространство свободнее: • Расширили вход в кабинет и гардеробную —это сделало помещения визуально шире и свободнее. • Объединили прихожую и гостиную, сохранив приватность за счёт разделения зон большим аквариумом, при этом «грязная зона» осталась изолированной. • Подвинули перегородку между санузлами — это позволило вместить стиральную машину в душевой, а мастер-ванную оставить зоной отдыха. 📎 Чем меньше стен, тем больше воздуха и пространства для жизни. Больше о проекте можно прочитать тут #атмосферный_проект #градиз_наутилус

Аквариум — центр квартиры 🐚

Начинаем разбор нового проекта #градиз_наутилус

И сразу с самого важного — перепланировки

Локация: г. Екатеринбург, ЖК Архитектон

Объект: 4-ех комнатная квартира

Площадь: 98,3 м²

Заказчики просили сохранить максимум от существующей планировки, поэтому работали точечно. Но даже незначительные изменения сделали пространство свободнее:

• Расширили вход в кабинет и гардеробную —это сделало помещения визуально шире и свободнее.

• Объединили прихожую и гостиную, сохранив приватность за счёт разделения зон большим аквариумом, при этом «грязная зона» осталась изолированной.

• Подвинули перегородку между санузлами — это позволило вместить стиральную машину в душевой, а мастер-ванную оставить зоной отдыха.

📎 Чем меньше стен, тем больше воздуха и пространства для жизни. Больше о проекте можно прочитать тут

#атмосферный_проект #градиз_наутилус

-2