Добавить в корзинуПозвонить
Найти в Дзене
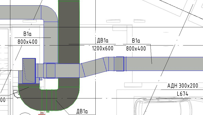
ПРОЕКТИРОВАНИЕ ЗДАНИЙ

Экономия пространства: когда инженер думает не только о трубах.

Застройщики жилого сектора очень ревностно относятся к площадям (конечно, при средней цене в Москве 500т.р. за квадрат...). Квартиры, кладовые, парковочные места — это деньги. А вентшахты, технические помещения, ниши — это «потери». Понятно, правда? 🤷‍♂️ Но хороший инженер умеет работать в этих условиях и находить решения, которые устраивают всех. Пример из практики — паркинг и вентиляция: Если в здании есть подземный паркинг, насыщенный вентсистемами, вентиляторы общеобменной вытяжки и дымоудаления можно вынести на кровлю, объединив их через общую шахту. Главное — не забыть про огнезащиту ‼️ и правильно настроить клапаны: нормально-открытые закрываются в нужный момент, нормально-закрытые — открываются. Рассинхрон решает. Выброс воздуха из техпомещений (ИТП, ТП, электрощитовых) в объём паркинга — тоже рабочий вариант, прямо предусмотренный СП 60.13330.2020 п. 7.6.12 👌 ⚠️А вот куда не стоит заходить: ❌ Размещать вентоборудование одного пожарного отсека в другом. Итог — транзит, клапан

Застройщики жилого сектора очень ревностно относятся к площадям (конечно, при средней цене в Москве 500т.р. за квадрат...). Квартиры, кладовые, парковочные места — это деньги. А вентшахты, технические помещения, ниши — это «потери». Понятно, правда? 🤷‍♂️

Но хороший инженер умеет работать в этих условиях и находить решения, которые устраивают всех.

Пример из практики — паркинг и вентиляция:

Если в здании есть подземный паркинг, насыщенный вентсистемами, вентиляторы общеобменной вытяжки и дымоудаления можно вынести на кровлю, объединив их через общую шахту. Главное — не забыть про огнезащиту ‼️ и правильно настроить клапаны: нормально-открытые закрываются в нужный момент, нормально-закрытые — открываются. Рассинхрон решает.

Выброс воздуха из техпомещений (ИТП, ТП, электрощитовых) в объём паркинга — тоже рабочий вариант, прямо предусмотренный СП 60.13330.2020 п. 7.6.12 👌

⚠️А вот куда не стоит заходить:

❌ Размещать вентоборудование одного пожарного отсека в другом. Итог — транзит, клапаны, головная боль при согласованиях и эксплуатации.

Таких приёмов в реальных проектах — десятки. И каждый из них экономит площадь, нервы и бюджет.

✔️Если хочется разбираться в подобных решениях уверенно и делать грамотно и расчеты и проект отопления и вентиляции — курс по ОВ как раз про это 👇

Напоминаем, что на него идет сейчас набор и 07.04.26 старт 5-го потока. Традиционно до старта скидка 25%+рассрочка.

📎Кстати, обучение идет сразу в трех программах: Revit, AutoCAD, MagiCAD, чтобы вы могли выбирать, что вам удобнее и были инженером-универсалом.

☄️Готовимся в жаркому строительному сезону, повышая знания! Ставочку ЦБ понижает, рынок оживает+весна на носу (хотя сейчас за окном опять снег пошел 🙃).