Добавить в корзинуПозвонить
Найти в Дзене

Трёхкомнатная квартира у парка Сосновка — сколько стоит комфорт?

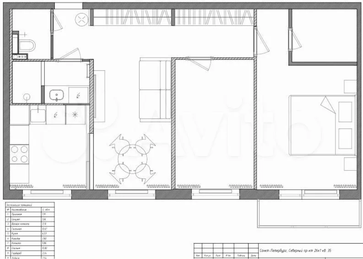
Сегодня мы поговорим о квартире по адресу: Санкт-Петербург, Северный пр-т, 26к1. Дом 1977 года постройки — типичный представитель своего времени. Но интерес здесь вызывает не сам дом, а квартира внутри него. Она расположена на девятом, последнем этаже. Общая площадь — около 60 квадратных метров, три комнаты. Но главное — это ремонт. С первого взгляда видно: квартира как новая. Современные материалы, аккуратные решения, стильный интерьер. Но если копнуть глубже, становится понятно — перед нами классический пример быстрого флиппинга. Квартира была куплена в феврале 2026 года, а уже в конце марта выставлена на продажу. Очевидно, что за такой срок невозможно сделать капитальный ремонт. Скорее всего, здесь ограничились косметикой: покрасили стены, обновили пол, добавили мебель, свет, декор. Визуально всё выглядит привлекательно, но вопрос качества остаётся открытым. Оценивают квартиру в 14 500 000. И это уже не просто стоимость квартиры, а цена за «ощущение комфорта». Такие проекты рассчита

Сегодня мы поговорим о квартире по адресу: Санкт-Петербург, Северный пр-т, 26к1. Дом 1977 года постройки — типичный представитель своего времени. Но интерес здесь вызывает не сам дом, а квартира внутри него.

Она расположена на девятом, последнем этаже. Общая площадь — около 60 квадратных метров, три комнаты. Но главное — это ремонт.

-2

С первого взгляда видно: квартира как новая. Современные материалы, аккуратные решения, стильный интерьер. Но если копнуть глубже, становится понятно — перед нами классический пример быстрого флиппинга.

-3

Квартира была куплена в феврале 2026 года, а уже в конце марта выставлена на продажу. Очевидно, что за такой срок невозможно сделать капитальный ремонт.

-4

Скорее всего, здесь ограничились косметикой: покрасили стены, обновили пол, добавили мебель, свет, декор. Визуально всё выглядит привлекательно, но вопрос качества остаётся открытым.

-5

Оценивают квартиру в 14 500 000. И это уже не просто стоимость квартиры, а цена за «ощущение комфорта».

-6

Такие проекты рассчитаны на эмоции покупателя. Человек заходит, видит красивую картинку и принимает решение. Но важно понимать, что за этим стоит.

-7

Это не плохо и не хорошо — это рынок. Но подходить к таким объектам нужно максимально внимательно. Хотя такие варианты, как этот, могут выглядеть привлекательно, нужно понимать, что они скрывают огромное количество подводных камней.

-8

Для того чтобы быть спокойными в успехе сделки, обращайтесь за консультацией по номеру телефона: +7 995 889-71-52 (телеграм или МАХ), меня зовут Владислас.

-9

Помните, что комфорт — это не только внешний вид, но и то, что скрыто внутри.