Добавить в корзинуПозвонить
Найти в Дзене

83 квадрата, где нет лишних сантиметров: разбираем планировку, которая экономит миллионы на стройке в 2026-м!

Если вы думаете, что комфортный загородный дом — это обязательно 150–200 м² и огромный бюджет, у нас для вас хорошие новости. Этот проект доказывает обратное: 83,2 м² продуманного пространства, где есть всё для жизни семьи — и даже больше. Общая информация —Общая площадь дома: 83,2 м² —Терраса: 7,5 м² —Строительная площадь: 100 м²
Просторная кухня — сердце дома (15,2 м²) Здесь легко помещается полноценная кухня + обеденная зона. Идеально для семейных ужинов и встреч с друзьями. Плюс — удобный выход на террасу с задней стороны дома.
Терраса 7,5 м² — ваш личный уголок отдыха Утренний кофе, вечерние посиделки, летние ужины — всё здесь. Это пространство, которое превращает дом в удовольствие.
Две изолированные спальни —Спальня 1: 13,1 м² —Спальня 2: 11,0 м² Комфортно для семьи с ребёнком или как спальня + кабинет. Гостиная 11,0 м² — уют и функциональность Компактная, но удобная зона отдыха. Отлично подходит для вечернего просмотра фильмов и семейных хобби! Два санузла — оптимально
Оглавление

Если вы думаете, что комфортный загородный дом — это обязательно 150–200 м² и огромный бюджет, у нас для вас хорошие новости. Этот проект доказывает обратное: 83,2 м² продуманного пространства, где есть всё для жизни семьи — и даже больше.

Готовый дом (Д-41)
Готовый дом (Д-41)

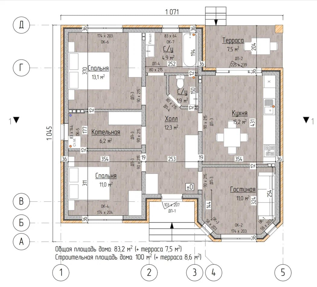
Общая информация

—Общая площадь дома: 83,2 м²

—Терраса: 7,5 м²

—Строительная площадь: 100 м²

Чертёж-планировка Д-41
Чертёж-планировка Д-41

Разбор планировки:


Просторная кухня — сердце дома (15,2 м²)

Здесь легко помещается полноценная кухня + обеденная зона.

Идеально для семейных ужинов и встреч с друзьями.

Плюс — удобный выход на террасу с задней стороны дома.


Терраса 7,5 м² — ваш личный уголок отдыха

Утренний кофе, вечерние посиделки, летние ужины — всё здесь.

Это пространство, которое превращает дом в удовольствие.

Две изолированные спальни

—Спальня 1: 13,1 м²

—Спальня 2: 11,0 м²

Комфортно для семьи с ребёнком или как спальня + кабинет.

Гостиная 11,0 м² — уют и функциональность

Компактная, но удобная зона отдыха.

Отлично подходит для вечернего просмотра фильмов и семейных хобби!

Два санузла — оптимальное решение для семьи!

Основной санузел: 4,9 м² (с ванной)

Дополнительный: 1,9 м²

Практичное решение, которое ценят все семьи.

Холл 12,3 м² — ощущение простора с порога

Никаких узких коридоров — дом «дышит» уже с входа.

Отдельная котельная (6,2 м²)

Можно разместить всё инженерное оборудование и не загромождать дом.

Почему этот дом сейчас так оптимален?

✅Компактная площадь = экономия на строительстве

✅Удобная планировка без «пустых» метров

✅Подходит под ипотеку и маткапитал

✅Идеален как для ПМЖ, так и для дачи

Сейчас многие переходят с квартир на такие дома — и причина проста: за те же деньги вы получаете больше пространства и свободы.

Хотите рассчитать стоимость такого дома под ваш участок?

Оставьте заявку на нашем сайте — подберём вариант под ваш бюджет. Успейте попасть под старые условия ипотеки!

Получите консультацию по строительству дома под ключ:

📞 Строительство и проектирование: +7 (928) 460-60-04 — руководитель офиса

📞 Ипотечное кредитование: +7 (989) 27-36-888 — главный специалист по ипотечному кредитованию

📍 Офис компании: г. Краснодар, ул. Тепличная, 62/1, корп. 5

Наш сайт: https://domovoy.online/

ДОМОВОЙ — строим дома, в которых хочется жить