Добавить в корзинуПозвонить
Найти в Дзене
Дело Чести

Оспорить размер выкупаемого земельного участка

На современном российском рынке многие бизнесмены имеют уникальную возможность приобрести арендуемую недвижимость, принадлежащую муниципалитетам. Это не просто предусмотренная законом льгота, а реальный шанс для малого и среднего бизнеса укрепить свои позиции и развивать свою деятельность на устойчивой основе. Однако, как показывает практика, на пути к осуществлению этого права возникают серьезные преграды. К сожалению, многие местные власти устанавливают искусственные ограничения, например, вводя лимиты на размеры выкупаемых земельных участков. Это фактически нарушает права арендаторов и ставит под угрозу их бизнес-планы и возможности роста. Важно осознавать, что предприниматели имеют законное право на выкуп всей арендуемой площади. Поэтому им необходимо знать свои права и уметь их защищать. Как действовать, если муниципалитеты пытаются ограничить размер выкупаемого участка? Ответ на этот вопрос станет основой для дальнейших шагов. В нашем материале юристы поделятся рекомендациями о т
Оглавление

На современном российском рынке многие бизнесмены имеют уникальную возможность приобрести арендуемую недвижимость, принадлежащую муниципалитетам. Это не просто предусмотренная законом льгота, а реальный шанс для малого и среднего бизнеса укрепить свои позиции и развивать свою деятельность на устойчивой основе. Однако, как показывает практика, на пути к осуществлению этого права возникают серьезные преграды.

К сожалению, многие местные власти устанавливают искусственные ограничения, например, вводя лимиты на размеры выкупаемых земельных участков. Это фактически нарушает права арендаторов и ставит под угрозу их бизнес-планы и возможности роста. Важно осознавать, что предприниматели имеют законное право на выкуп всей арендуемой площади. Поэтому им необходимо знать свои права и уметь их защищать. Как действовать, если муниципалитеты пытаются ограничить размер выкупаемого участка? Ответ на этот вопрос станет основой для дальнейших шагов.

В нашем материале юристы поделятся рекомендациями о том, как правильно действовать в таких ситуациях. Мы расскажем о сборе необходимых документов, подготовке правовой базы и взаимодействии с органами местного самоуправления. Вы узнаете, как грамотно составить заявление на выкуп и какие аргументы использовать для защиты своих интересов.

Получите бесплатные ответы на ваши вопросы по спорам с муниципалитетами в арбитражных судах от профессиональных юристов и найдите полезную информацию в нашем чате в МАХ: https://max.ru/join/9Zy2K89ndQyHJR9Or7kWqAh2lQ8jHod7odjzgLs0XJ0

Ситуация из нашей юридической практики

В нашей практике нередки случаи, когда органы местного самоуправления препятствуют законному праву предпринимателей, наших клиентов, на выкуп арендованной недвижимости.

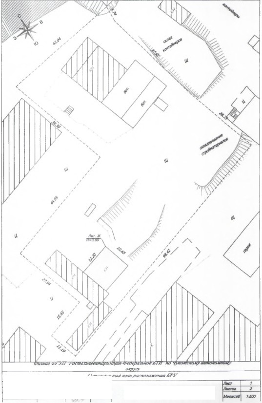
Яркой иллюстрацией служит дело нашего клиента – малого предприятия, ведущего деятельность на территории Чукотского автономного округа.

Компания долгие годы добросовестно арендовала у муниципалитета здание и земельный участок, а после выполнения всех условий, установленных Федеральным законом от 29.07.2015 № 159-ФЗ «Об особенностях отчуждения недвижимого имущества…», правомерно обратилась с заявлением о выкупе.

Вопреки закону, администрация муниципального образования предприняла попытку существенно ограничить права заявителя, предложив к выкупу земельный участок заведомо меньшей площади, чем та, что фактически находилась в долгосрочной аренде.

В качестве формального обоснования были приведены доводы о наличии на спорной территории пожарного водоема и подъездной дороги для специальной техники, которые, по утверждению ответчика, не могли перейти в частную собственность.

При этом ширина указанной «дороги» была определена в 38 метров, что многократно превышает требования для проезда пожарных машин.

Муниципалитет подкрепил свою позицию заключением кадастрового инженера. Однако наши юристы, изучив это заключение, обнаружили полную несостоятельность этих аргументов. Водоем оказался заброшенным и не функционирующим, а выводы, представленные в заключении – сфальсифицированными в интересах администрации. Данное дело наглядно демонстрирует не только типичные механизмы нарушения прав предпринимателей со стороны недобросовестных чиновников, но и критическую важность профессиональной юридической поддержки для восстановления справедливости в суде. Успешное оспаривание позволило клиенту выкупить землю в первоначальных, законных границах.

Обращение в арбитражный суд за защитой

В ситуации, когда муниципалитет неправомерно отказывает в выкупе земельного участка либо предлагает его в урезанном размере, единственным действенным способом защиты нарушенного права является обращение в арбитражный суд.

Споры данной категории относятся к компетенции арбитражных судов, поскольку одной из сторон является субъект предпринимательской деятельности (арендатор), а предмет спора связан с экономической деятельностью.

Инициация судебного процесса начинается с подготовки мотивированного искового заявления. Качество и полнота этого документа предопределяют дальнейший ход дела. Иск должен соответствовать требованиям ст. 125 Арбитражного процессуального кодекса РФ (АПК РФ) и содержать наименование арбитражного суда, в который подается заявление, а также полные реквизиты истца (наименование юридического лица, ИНН, ОГРН, юридический адрес) и его представителя.

Не забудьте указать данные ответчика – администрации муниципального образования с указанием ее полного наименования и адреса. Важно также прописать цену иска, рассчитываемую исходя из кадастровой или рыночной стоимости спорной части земельного участка.

Ключевой элемент иска – подробное изложение обстоятельств дела: дата и условия заключения договора аренды, его предмет (с указанием кадастрового номера и площади), факты пролонгации, своевременное обращение с заявлением о выкупе и получение необоснованного отказа либо проекта договора с измененными условиями.

Сформулируйте также правовое обоснование ваших требований со ссылками на конкретные нормы Земельного кодекса РФ (в частности, ст. 36), Федерального закона № 159-ФЗ, а также на сложившуюся судебную практику Высшего Арбитражного Суда РФ и Верховного Суда РФ.

В завершение иска четко сформулируйте требования: обязать администрацию заключить договор купли-продажи земельного участка в границах, предусмотренных первоначальным договором аренды.

В конце иска укажите перечень прилагаемых документов, являющихся доказательствами изложенных фактов. Сюда же необходимо будет прикрепить копию доверенности юридического представителя.

Обязательным условием принятия иска к производству является уплата государственной пошлины, размер которой исчисляется в соответствии с Налоговым кодексом РФ от цены иска. Квитанция об оплате прилагается к заявлению.

После подачи иска суд возбуждает производство по делу и начинает стадию подготовки, в ходе которой судья определяет круг обстоятельств, имеющих значение, и распределяет бремя доказывания. На этом этапе истцу критически важно представить полный пакет документов: оригиналы договоров аренды и дополнительных соглашений, кадастровые паспорта и выписки из ЕГРН, технические планы на здания, всю переписку с администрацией. Если необходимые доказательства находятся у ответчика (например, внутренние распоряжения, документы межевания), следует заявить мотивированное ходатайство об их истребовании судом.

Муниципалитеты нередко используют тактику процессуального затягивания: подают ходатайства об отложении заседаний, представляют возражения и дополнительные доказательства в последний момент. Противостоять такой стратегии без глубокого знания процессуального права и опыта ведения споров с органами власти крайне сложно. Квалифицированный представитель способен парировать подобные действия, настаивая на соблюдении сроков и противодействуя злоупотреблениям.

Завершающей фазой являются судебные прения и вынесение решения. В прениях стороны подводят итог, аргументируя свою позицию на основе исследованных доказательств. Решение суда, вступившее в законную силу, обязательно для исполнения. В случае отказа администрации добровольно исполнить решение, оно подлежит принудительному исполнению через службу судебных приставов.

Формирование правовой позиции для суда

В соответствии с принципами состязательности и равноправия сторон, закрепленными в АПК РФ, арбитражный суд вправе требовать от участников процесса представления правовых позиций по существу спора.

На примере описанного дела из нашей практики: после предоставления ответчиком заключения кадастрового инженера, суд предложил истцу (то есть нам) представить подробную правовую позицию относительно этого доказательства. Такой документ представляет собой развернутые контраргументы, структурированные следующим образом.

В шапке документа указываются реквизиты дела (номер, судья), полные наименования истца, ответчика и третьих лиц. В описательной части кратко и объективно излагаются выводы, к которым пришел кадастровый инженер в своем заключении (например, о наличии обременений, ограничивающих размер выкупаемого участка).

Мотивировочная часть правовой позиции – это ядро документа. Последовательно, пункт за пунктом, формулируются возражения против каждого вывода эксперта с приведением правовых и фактических оснований несогласия.

Например, в нашем деле мы указали:

  1. на несоответствие ширины «пожарного проезда» (38 м) любым действующим строительным и противопожарным нормативам, что свидетельствует о необоснованном завышении
  2. что указанный водоем де-факто не существует как функционирующий объект инфраструктуры, что подтверждается фотоматериалами, актами обследования, свидетельскими показаниями
  3. обосновали недобросовестность или ошибку в действиях кадастрового инженера, возможно, с указанием на конфликт интересов

В правовой позиции вы можете давать ссылку на прилагаемые доказательства, опровергающие выводы ответчика: фото- и видеофиксация состояния территории, независимые технические заключения, официальные ответы надзорных органов (МЧС, Росреестра), архивные документы, подтверждающие первоначальное состояние участка.

В заключительной части четко излагаются конкретные ходатайства к суду: например, о признании заключения кадастрового инженера ненадлежащим и недопустимым доказательством, не имеющим юридической силы, или о вызове и допросе указанного кадастрового инженера в судебном заседании для дачи пояснений и ответов на вопросы.

Помните, что грамотно составленная правовая позиция не только разрушает доводы оппонента, но и направляет ход судебного разбирательства в нужное русло, упрощая работу суда и увеличивая шансы на благоприятный исход.

Доказывание законных границ выкупаемого участка

Бремя доказывания факта владения и пользования земельным участком в определенных границах лежит на истце. Для этого необходимо выстроить систему взаимосвязанных доказательств, подтверждающих, что предлагаемый муниципалитетом к выкупу участок не соответствует первоначальным условиям аренды и недостаточен для нормальной эксплуатации недвижимости.

Конечно, ключевым доказательством будет договор аренды и приложения к нему. Критически важно, чтобы в разделе, описывающем предмет договора, были однозначно указаны: кадастровый номер, площадь, границы (с приложением кадастрового плана или выписки), категория земель и вид разрешенного использования.

Не менее значимыми являются приложения к договору, в частности, схема планировочной организации земельного участка или технический паспорт объекта. В этих документах содержится графическое отображение границ участка с точными размерами и экспликацией, что служит неоспоримым доказательством его первоначальной конфигурации.

-2

Не менее ценным доказательством являются данные государственного кадастра недвижимости. Публичная кадастровая карта Росреестра и актуальная выписка из Единого государственного реестра недвижимости (ЕГРН) являются официальными источниками информации.

С их помощью можно продемонстрировать суду местоположение, площадь и границы участка по его первоначальному кадастровому номеру, сопоставив эти данные с информацией по участку, предлагаемому ответчиком. Это позволяет визуализировать и количественно оценить масштаб сокращения площади.

В случае если представленных доказательств недостаточно для однозначных выводов, или ответчик настаивает на своей технической аргументации, истцу целесообразно заявить ходатайство о назначении судебной экспертизы.

Суд назначает экспертизу, формулируя перед экспертом круг вопросов, например, соответствует ли площадь и конфигурация первоначального арендуемого участка установленным градостроительным регламентам и требованиям пожарной безопасности для эксплуатации расположенного на нем объекта капитального строительства? Являются ли объекты, указанные администрацией как ограничивающие выкуп (водоем, проезд), функционирующими и необходимыми с точки зрения действующих норм?

Заключение объективной и комплексной экспертизы, проведенной специализированной организацией или сертифицированным кадастровым инженером, является одним из наиболее весомых доказательств, на которое суд обращает первостепенное внимание при вынесении решения.

Наша юридическая помощь

Если вы столкнулись с проблемой выкупа земельного участка, наши юристы готовы предложить вам всестороннюю юридическую помощь, чтобы вы могли отстоять свои законные права. Наша команда профессионалов тщательно изучит вашу ситуацию, выявив все нюансы и особенности дела. Мы понимаем, что каждый случай уникален, и именно поэтому подготовим индивидуальную претензию в адрес муниципалитета или иск в суд. Наша цель – обеспечить вам надежную защиту ваших прав и интересов.

Собирание необходимых доказательств – это ключевой этап в любом юридическом процессе. Мы возьмем на себя эту задачу, обеспечив полный пакет документов: от технической документации до экспертных заключений. Это позволит нам создать крепкую основу для вашей защиты и значительно повысит шансы на успешное разрешение дела.

Наша команда готова выступать за вас в любом арбитражном суде России: от Калининграда до Чукотки. Мы знаем, как действовать в рамках законодательства и как эффективно представлять ваши интересы в суде. Доверьтесь профессионалам, которые знают свое дело и готовы бороться за ваши права до конца. Вы не одни в этой ситуации – мы с вами на каждом этапе пути к справедливости.