Найти в Дзене
Квартира в Москве

Ремонт в П-44

Друзья, добрый день, постепенно движемся к завершению дизайн-проекта в П-44. Надеюсь, ещё немного и сможем Вам предложить готовый продукт. И передаю слово нашей прекрасной Полине. Мы начали проект в П-44: показываем планировку и первые решения
Ранее мы уже писали, что запускаем новый проект — типовая квартира серии П-44.
Сейчас перешли к практике: разработали планировочное решение , сделали концепцию и подготовили пару первых визуализаций .
Типовая П-44 — это:
изолированная комната
отдельная кухня
небольшой санузел
достаточно узкий коридор
И важный момент: большая часть стен — несущие, что сильно ограничивает перепланировку
👉 Поэтому здесь нельзя «нарисовать красивый дизайн», не думая о реальности.
Я сразу решила: никаких сложных перепланировок — только работа с тем, что есть.
Почему?
это дешевле
быстрее
безопаснее с точки зрения согласований
понятнее для покупателя.
Серия П-44 вообще ценится за свою «логичную» планировку.
Моя задача — не переделать квартиру, а раскрыть её потенц

Друзья, добрый день, постепенно движемся к завершению дизайн-проекта в П-44. Надеюсь, ещё немного и сможем Вам предложить готовый продукт.

И передаю слово нашей прекрасной Полине.

Мы начали проект в П-44: показываем планировку и первые решения
Ранее мы уже писали, что запускаем новый проект — типовая квартира серии П-44.

Сейчас перешли к практике:
разработали планировочное решение , сделали концепцию и подготовили пару первых визуализаций .

Типовая П-44 — это:
изолированная комната
отдельная кухня
небольшой санузел
достаточно узкий коридор
И важный момент:
большая часть стен — несущие, что сильно ограничивает перепланировку
👉 Поэтому здесь нельзя «нарисовать красивый дизайн», не думая о реальности.

Я сразу решила:
никаких сложных перепланировок — только работа с тем, что есть.
Почему?
это дешевле
быстрее
безопаснее с точки зрения согласований
понятнее для покупателя.

Серия П-44 вообще ценится за свою «логичную» планировку.

Моя задача — не переделать квартиру, а
раскрыть её потенциал.

-2


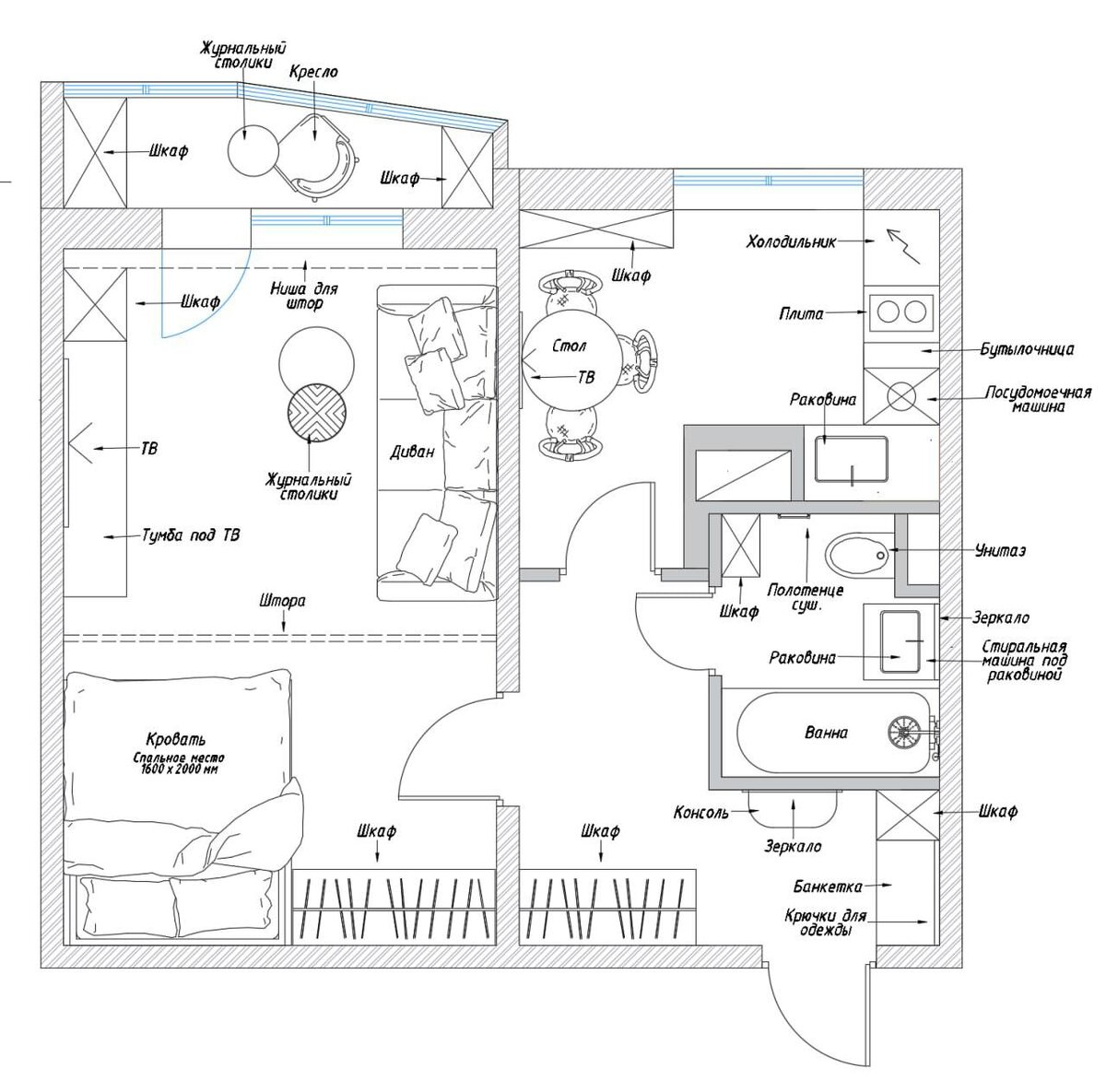
Главная идея: разделить одну комнату на две функции
Вместо того чтобы делать «обычную однушку», мы решили:
👉
сделать в одной комнате и спальню, и гостиную.
Без сноса стен. Без сложных согласований. Но с нормальной логикой жизни.

Решение максимально простое, но рабочее:
в глубине комнаты — полноценная кровать
ближе к окну — зона гостиной с диваном
между ними — штора
👉 Штора — это ключ:
можно закрыть — получаешь спальню
можно открыть — получаешь единое пространство.

-3
-4
-5
-6

Почему это сильнее, чем классический вариант
Обычно в П-44 делают так:
либо кровать и диван в одной зоне (визуальный хаос)
либо раскладной диван (компромисс по комфорту)
Мы сделали иначе:
👉 человек получает
нормальную кровать + отдельную гостиную зону
А это уже другой уровень восприятия квартиры.

Кухня: без изменений, но с новым ощущением

Кухню мы не трогаем по планировке, но усиливаем визуально:
минималистичные фасады
встроенная техника
чистые линии
подсветка
👉 Важно, чтобы она выглядела как новая, даже если дому много лет.


Почему мы уверены в этом решении
Потому что оно:
не требует согласований
дешёвое в реализации
понятно покупателю
даёт ощущение «двушки»
👉 А значит — увеличивает стоимость квартиры.

Что дальше
Сейчас у нас:
готова планировка
продумано зонирование
сделана часть визуализаций
Дальше:
считаем бюджет
делаем чертежи
будем показывать весь процесс.

Друзья, и с Вашего позволения, небольшой комментарий от себя:

Напоминаю, что мы планируем разработать в качестве продукта:

Бюджетный ремонт, с возможностью заказа только дизайн-проекта, либо дизайн проекта + электрика/сантехника либо полноценного ремонта, предназначенного в основном для сдачи в аренду.

Т.е. квартира должна выглядеть дорого/богато и максимально функционально с точки зрения арендатора, и создавать качественный доходный актив для Вас.

Изначальная идея в этом.

Если необходима качественная проработка под индивидуальные требования, очевидно, что нужен и индивидуальный проект же.

С П-44 начали потому что это одна из самых оптимальных московских серий по соотношению цена/потребительские свойства и потому что читатели выбрали её голосованием.

В общем, фокус не на том, что это "квартира Вашей мечты" - такое сделать в рамках типового проекта невозможно - у нас у всех мечты разные, а "интересный актив - квартира под сдачу в Москве".

Онлайн-курс по подбору квартиры в Москве - бесплатно посмотреть здесь

Друзья, всего самого доброго - желаю Вам много успешных сделок.

Подбор квартиры в Москве

ТГ-канал

Книга "Ключ от Москвы. Где и как найти квартиру своей мечты"

Если посчитаете интересным - пишите/звоните +7919-7782622 или в телеграм @AlexanderKhalitov