Добавить в корзинуПозвонить
Найти в Дзене

#Питер Квартира по ставке 13,9% для всех

✔️Один из самых интересных вариантов для тех, кто хочет купить квартиру без семейной ипотеки. Особенно если вы хотите купить квартиру ребенку на будущее, или себе пенсионную квартиру, которая будет сдаваться в аренду и приносить вам доход 📍Престижный Московский район 🔸сдача — 4 квартал 2027 года 🔸минимальное удорожание 🔸 платёж зависит от вашего первоначального взноса Почему этот вариант стоит рассмотреть: 1. Московский район Это одна из самых понятных и востребованных локаций Санкт-Петербурга. Район растёт, развивается, и квартиры здесь остаются ликвидными — как для жизни, так и для аренды. 2. Малоэтажная застройка Не ощущение «человейника», а более комфортная среда для жизни. 3. Квартиры с отделкой Можно не тратить сразу огромные суммы на ремонт и быстрее заехать или сдать квартиру. 4. Есть разные сроки и форматы Можно рассмотреть как квартиры с ближайшей сдачей, так и готовые варианты в этих корпусах — но готовые, конечно, уже идут дороже. ✅ Пример расчетов, студия 20,5

#Питер Квартира по ставке 13,9% для всех

✔️Один из самых интересных вариантов для тех, кто хочет купить квартиру без семейной ипотеки.

Особенно если вы хотите купить квартиру ребенку на будущее, или себе пенсионную квартиру, которая будет сдаваться в аренду и приносить вам доход

📍Престижный Московский район

🔸сдача — 4 квартал 2027 года

🔸минимальное удорожание

🔸 платёж зависит от вашего первоначального взноса

Почему этот вариант стоит рассмотреть:

1. Московский район

Это одна из самых понятных и востребованных локаций Санкт-Петербурга. Район растёт, развивается, и квартиры здесь остаются ликвидными — как для жизни, так и для аренды.

2. Малоэтажная застройка

Не ощущение «человейника», а более комфортная среда для жизни.

3. Квартиры с отделкой

Можно не тратить сразу огромные суммы на ремонт и быстрее заехать или сдать квартиру.

4. Есть разные сроки и форматы

Можно рассмотреть как квартиры с ближайшей сдачей, так и готовые варианты в этих корпусах — но готовые, конечно, уже идут дороже.

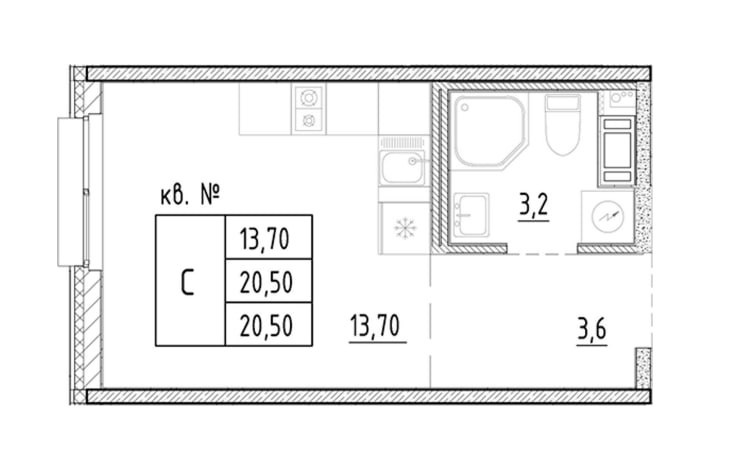
✅ Пример расчетов, студия 20,5 м2

🔺Стоимость - 6 263 888 ₽

🔺ПВ - 1 259 042 ₽

🔥Ставка 13,9% на весь срок

🔺Ежемесячный платеж - 58 905 ₽

Если увеличить первый взнос, платеж станет еще комфортнее

⭐️ Из преимуществ - близкий срок получения ключей, чистовая отделка

Есть разные форматы квартир и варианты планировок

✔️Все подробности и расчеты у наших менеджеров https://oksanasaygili.com/zayavka?utm_source=agtg

✔️ Наш канал в MAX ✔️ Наши услуги ✔️Кейсы ✔️Бесплатная диагностика

-2
-3