Найти в Дзене
ГидроПрепод

На набережной ДВФУ решат проблему с туалетами. Смотрим проект.

День добрый! Мне в руки попали чертежи, по которым должны будут построены новые санузлы на территории набережной, расположенной на кампусе ДВФУ. В этой статье посмотрим на то, где они будут располагаться на территории кампуса и то как они должны будут выглядеть. От себя замечу, что Я как приличный работник и гражданин, в большинстве своем, действия руководства университета и тем более

День добрый! Мне в руки попали чертежи, по которым должны будут построены новые санузлы на территории набережной, расположенной на кампусе ДВФУ. В этой статье посмотрим на то, где они будут располагаться на территории кампуса и то как они должны будут выглядеть. От себя замечу, что Я как приличный работник и гражданин, в большинстве своем, действия руководства университета и тем более администрации города поддерживаю крайне редко, но в этом случае могу сказать только одно - "давно пора!". Каждые выходные в теплое время года и почти каждый летний день, кампус и набережная набиты посетителями, а качественного решения вопроса с туалетами нет с момента открытия кампуса в 2014 году! Это получается, уже как 12 лет. Буду рад за кампус и город, если проект будет реализован. Стоить реализация всего проекта будет порядка 50 миллионов рублей. Проект готовила компания "f5", проект у меня на руках и можно посмотреть, что внутри.

Санузлы будут располагаться в трёх точках на территории, круглогодичный туалет расположится в центре, а два летних туалета по краям набережной.

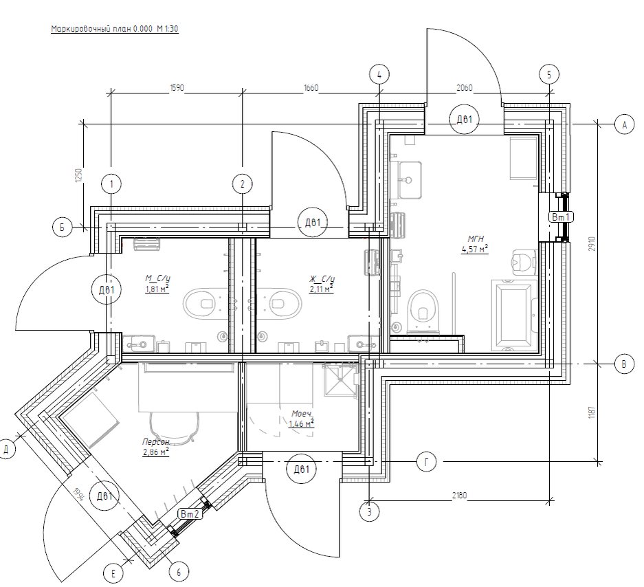
Летние туалеты имеют одинаковую конструкцию, и состоят из мужской, женской уборной и туалета для МГН (инвалидов). Дополнительно в состав включили моечную для уборщицы и кабинет для работницы, которая будет контролировать работу туалета.

-2
Устройство туалета.
Устройство туалета.
Аксонометрия кабинета работника и уборочной для инвентаря.
Аксонометрия кабинета работника и уборочной для инвентаря.

По рендеру фасад должен будет выглядеть так:

-5

Круглогодичный туалет должен быть значительно больше. Число кабинок в женском санузле увеличится до 4-х, в мужском до трех.

План круглогодичного туалета.
План круглогодичного туалета.
Аконометрия внутреннего пространства туалетных кабинок.
Аконометрия внутреннего пространства туалетных кабинок.

Рендер фасада:

-8

На этом обзор проекта можно заканчивать, будем ждать результатов работ и в конце сможем сравнить с тем, что они заявляли по проекту.

Магазин ГидроПрепода: https://vk.com/market-216258278?screen=group

Все мои ресурсы в одной ссылке: https://taplink.cc/hydrprepod