Добавить в корзинуПозвонить
Найти в Дзене

Уютный и функциональный мастер-блок в доме

На примере нашего дизайн-проекта загородного дома в Твери, покажем как может выглядеть личное пространство. Второй этаж полностью отдан под приватную зону хозяев — здесь расположен мастер-блок со спальней, гардеробной и санузлом. Изначально пространство было разделено на 12 кв.м и 21 кв.м и вместе с заказчиком мы приняли решение отдать большую часть под гардеробную, а спальню сделать более камерной — так появилось ощущение уединённости. Особую геометрию спальне задаёт скатная крыша, а деревянные панели наполняют интерьер теплом и спокойствием. Гардеробная продолжает эстетику: системы хранения по периметру, бьюти-зона у окна с естественным светом, фасады из шпонированного МДФ и сочетание открытых и закрытых секций. Акцент — стеклянный шкаф, который облегчает пространство и деликатно зонирует его. Мастер-санузел площадью 12 кв.м построен на симметрии и логике движения: подиум с отдельно стоящей ванной и душевой зоной, отделённой тонированным стеклом. Ванна под мансардным окном — отдельны

На примере нашего дизайн-проекта загородного дома в Твери, покажем как может выглядеть личное пространство.

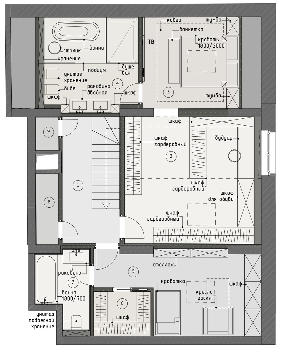
Планировочное решение 2-го этажа в доме
Планировочное решение 2-го этажа в доме
-2

Второй этаж полностью отдан под приватную зону хозяев — здесь расположен мастер-блок со спальней, гардеробной и санузлом. Изначально пространство было разделено на 12 кв.м и 21 кв.м и вместе с заказчиком мы приняли решение отдать большую часть под гардеробную, а спальню сделать более камерной — так появилось ощущение уединённости.

-3
-4

Особую геометрию спальне задаёт скатная крыша, а деревянные панели наполняют интерьер теплом и спокойствием.

-5
-6
-7

Гардеробная продолжает эстетику: системы хранения по периметру, бьюти-зона у окна с естественным светом, фасады из шпонированного МДФ и сочетание открытых и закрытых секций. Акцент — стеклянный шкаф, который облегчает пространство и деликатно зонирует его.

-8
-9
-10

Мастер-санузел площадью 12 кв.м построен на симметрии и логике движения: подиум с отдельно стоящей ванной и душевой зоной, отделённой тонированным стеклом. Ванна под мансардным окном — отдельный сценарий отдыха с видом на небо.

Тёплая нейтральная палитра и тактильные материалы продолжают общее настроение дома, создавая атмосферу уюта и спокойствия.

Если вы планируете обустройство дома, записывайтесь на консультацию в нашу студию — подберём оптимальный формат работы и рассчитаем стоимость вашего проекта.