Найти в Дзене
Иргиредмет

Проектирование металлических конструкций в условиях действующего производства

Проектирование современного горнодобывающего предприятия – это сложный процесс, требующий учета множества факторов и соблюдения высоких требований к надежности, долговечности и безопасности. Однако строительство нового или реконструкция существующего объекта часто ведется в условиях производственной площадки с инженерными коммуникациями, оборудованием и технологическими процессами, что значительно затрудняет выполнение проектных задач. Основные проблемы при проектировании Иргиредмет занимался проектированием металлических конструкций при перевооружении золотоизвлекательной фабрики (ЗИФ) на Дальнем Востоке. Сотрудники института столкнулись с рядом сложностей, связанных с тем, что работа велась в условиях действующего производственного объекта. Отсутствие (нехватка) исходных данных или их частичное несоответствие фактическому состоянию.При разработке проектной документации для ЗИФ специалисты основывались на исходных данных, предоставленных заказчиком: чертежей металлических конструкций

Проектирование современного горнодобывающего предприятия – это сложный процесс, требующий учета множества факторов и соблюдения высоких требований к надежности, долговечности и безопасности. Однако строительство нового или реконструкция существующего объекта часто ведется в условиях производственной площадки с инженерными коммуникациями, оборудованием и технологическими процессами, что значительно затрудняет выполнение проектных задач.

Основные проблемы при проектировании

Иргиредмет занимался проектированием металлических конструкций при перевооружении золотоизвлекательной фабрики (ЗИФ) на Дальнем Востоке. Сотрудники института столкнулись с рядом сложностей, связанных с тем, что работа велась в условиях действующего производственного объекта.

Отсутствие (нехватка) исходных данных или их частичное несоответствие фактическому состоянию.При разработке проектной документации для ЗИФ специалисты основывались на исходных данных, предоставленных заказчиком: чертежей металлических конструкций каркаса фабрики и внутренних площадок обслуживания.

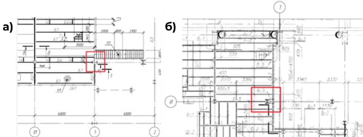
Когда подрядчик приступил к непосредственному демонтажу (монтажу) балок, выяснилось, что исходных данных не хватает, а чертежи не полностью отражают фактическое положение некоторых конструкций. Например, на рис. 2а показано положение колонны площадки по исходному проекту, на рис. 2б – фактическое положение. В результате пришлось срочно выдавать техническое решение и корректировать проект.

Рисунок 2. Положение колонны по исходному проекту (а), фактическое положение колонны (б)
Рисунок 2. Положение колонны по исходному проекту (а), фактическое положение колонны (б)

Ограниченность пространства.Необходимость размещения конструкции вблизи действующего оборудования и коммуникаций требует тщательного анализа. Важно обеспечить установку элементов без нарушения технологического процесса и с минимальным риском повреждения имеющегося оснащения.

Проект внедрения гравитации в отделении измельчения ЗИФ предусматривал устройство металлической этажерки и установку на нее концентрационных столов и отсадочных машин.

Первоначальным конструктивным решением этажерки был рамно-связевой металлический каркас. Связи предполагалось сделать в поперечном направлении (рис. 3а), но так как из-за стесненных условий они бы попадали в устанавливаемое оборудование (насосы и зумпф), было решено поставить рамы в продольном направлении (рис. 3б).

Рисунок 3. Связи площадки в поперечном направлении (а), рамы площадки в продольном направлении (б)
Рисунок 3. Связи площадки в поперечном направлении (а), рамы площадки в продольном направлении (б)

После завершения строительства и начала эксплуатации этажерки выявились заметные горизонтальные перемещения, которые в проектных расчетах были в пределах допустимого нормативного значения.

По результатам обсуждения с заказчиком было решено дополнительно усилить этажерку связями в продольном направлении (рис. 5а и 5б), что в итоге позволило снизить вибрации.

Рисунок 5. Усиление рам этажерки связями по торцам (а) и в середине (б)
Рисунок 5. Усиление рам этажерки связями по торцам (а) и в середине (б)

Конструктивное решение по созданию связей во всех направлениях оказалось значительно лучше в плане перемещений, чем жесткое сопряжение ригеля с колонной. Однако следует отметить, что подобные возможности, как правило, ограничены стесненными условиями действующего производства.

Условия эксплуатации.Повышенные вибрации от оборудования, агрессивная среда, высокая температура окружающей среды – все это влияет на выбор материала, методы обработки металла и типы соединений между элементами конструкции.

При выполнении строительно-монтажных работ на ЗИФ часто приходилось сталкиваться с негативными явлениями, например переполнением и проливом чанов, приводившими к подтоплению котлованов под фундаменты проектируемых сооружений и оборудования.

Одним из самых серьезных последствий подтопления является изменение физико-механических свойств грунта. Вода заполняет поры между его частицами, что может стать причиной уменьшения прочности и несущей способности. В результате может произойти оседание фундамента, которое в свою очередь способно повлечь за собой деформацию конструкций сооружения.

Присутствие на объекте специалистов авторского и строительного надзора позволило в кратчайшие сроки провести обследование, выявить недостатки и составить предписания по устранению дефектов подтопленного котлована и свежеуложенной бетонной смеси фундамента.

Также по проекту в отделении сорбции должно было быть установлено новое оборудование: оттирочная емкость, вибрационный грохот и т.д. Анализируя существующие металлические конструкции на выделенной для этой цели площадке, сотрудники Иргиредмета пришли к выводу, что она рассчитана только на нагрузки от обслуживающего персонала.

Ввиду того, что нагрузки от оборудования значительно превышали существующие, а нагрузка от грохота имела динамический характер, было принято решение расположить новое оборудование на отдельно стоящей металлической этажерке, не связанной с имеющейся площадкой. Ее конструкции в районе установки были частично демонтированы.

Нормативно-правовая база. Российские строительные нормы и правила предусматривают дополнительные требования при проектировании зданий и сооружений на действующих предприятиях. Например, СП 70.13330.2012 регламентирует особенности расчета несущих металлоконструкций в промышленных зданиях.

Подходы к решению проблем

Для успешного проектирования и монтажа металлических конструкций в условиях действующего производства применяются специальные подходы.

Тщательная подготовка проекта.Детальное изучение площадки позволяет выявить потенциальные препятствия: подземные коммуникации, пролеты технологических линий, проходящие рядом пути транспортировки сырья или продукции и т.д. Для этого необходимо выполнить предпроектное обследование существующей инфраструктуры.

Использование современных технологий при проектировании. Современные компьютерные программы дают возможность создавать трехмерные модели будущих конструкций и визуализировать процесс монтажа, что помогает избежать ошибок еще на стадии разработки проекта.

Одним из характерных примеров является использование 3D-сканеров – незаменимых инструментов в предпроектном обследовании конструкций производственных зданий и сооружений.

Основные преимущества 3D-сканеров:

· Высокая точность и детальность данных. 3D-сканеры дают высокоточные данные о геометрии объектов, способны фиксировать мельчайшие детали и создавать точные трехмерные модели. Это особенно важно при обследовании старых или сложных конструкций, где нет возможности получить полную информацию из традиционных источников.

· Ускорение процесса обследования. Использование традиционных методов обследования занимает много времени и требует значительных человеческих ресурсов. С помощью 3D-сканеров процесс может быть завершен за считанные часы, что существенно сокращает продолжительность анализа состояния конструкции, позволяет быстро принять решение и приступить к ремонту или модернизации.

· Снижение рисков и повышение безопасности. Обследование сложных конструкций, например, на высоте или в труднодоступных местах, может быть опасным. 3D-сканеры работают дистанционно, минимизируя необходимость физического присутствия людей в таких зонах и повышая общую безопасность работ.

· Хранение и анализ данных. Изображения, полученные с помощью 3D-сканеров, можно хранить и анализировать в будущем. К данным можно вернуться в любое время, что особенно полезно для долгосрочного мониторинга состояния зданий и сооружений, отслеживания изменений и планирования профилактических мер.

При работе с отсканированными материалами можно подгрузить отсканированные облака точек в среду 3D-моделирования для дальнейшей работы проектировщика. Это помогает избежать коллизий с существующими конструкциями, сетями или оборудованием действующего производства. Также программы дают возможность выполнять различные замеры без выезда специалиста на объект, что значительно ускоряет процесс проектирования.

· Поддержка принятия управленческих решений. Данные, собранные с помощью 3D-сканеров, представляют собой мощный инструмент для менеджмента. Они помогают в визуализации текущего состояния конструкций, упрощают процессы планирования, бюджетирования и оценки рисков. На основании точной информации можно принимать более обоснованные решения по обслуживанию и модернизации производственных зданий.

Применение специальных материалов и решений. Использование высокопрочных марок стали, коррозионностойких покрытий и оптимизированных сварных швов повышает долговечность конструкции даже в сложных эксплуатационных условиях.

Автоматизация процессов строительства. Применение робототехники и автоматизированных систем контроля качества значительно сокращает сроки возведения сооружения и повышает точность монтажных работ.

Заключение

Эффективность проектирования и возведения металлических конструкций в условиях действующего производственного объекта достигается за счет применения комплексного подхода. Он включает детальную подготовку проекта, использование передовых технологий и соблюдение всех нормативных требований, обеспечивая безопасность работников предприятия, экономичность и экологичность строительных мероприятий.

Автор:

Ленский С.В., главный специалист, сектор конструктивных решений, архитектурно-строительный отдел АО «Иргиредмет»