Найти в Дзене
УРА.РУ

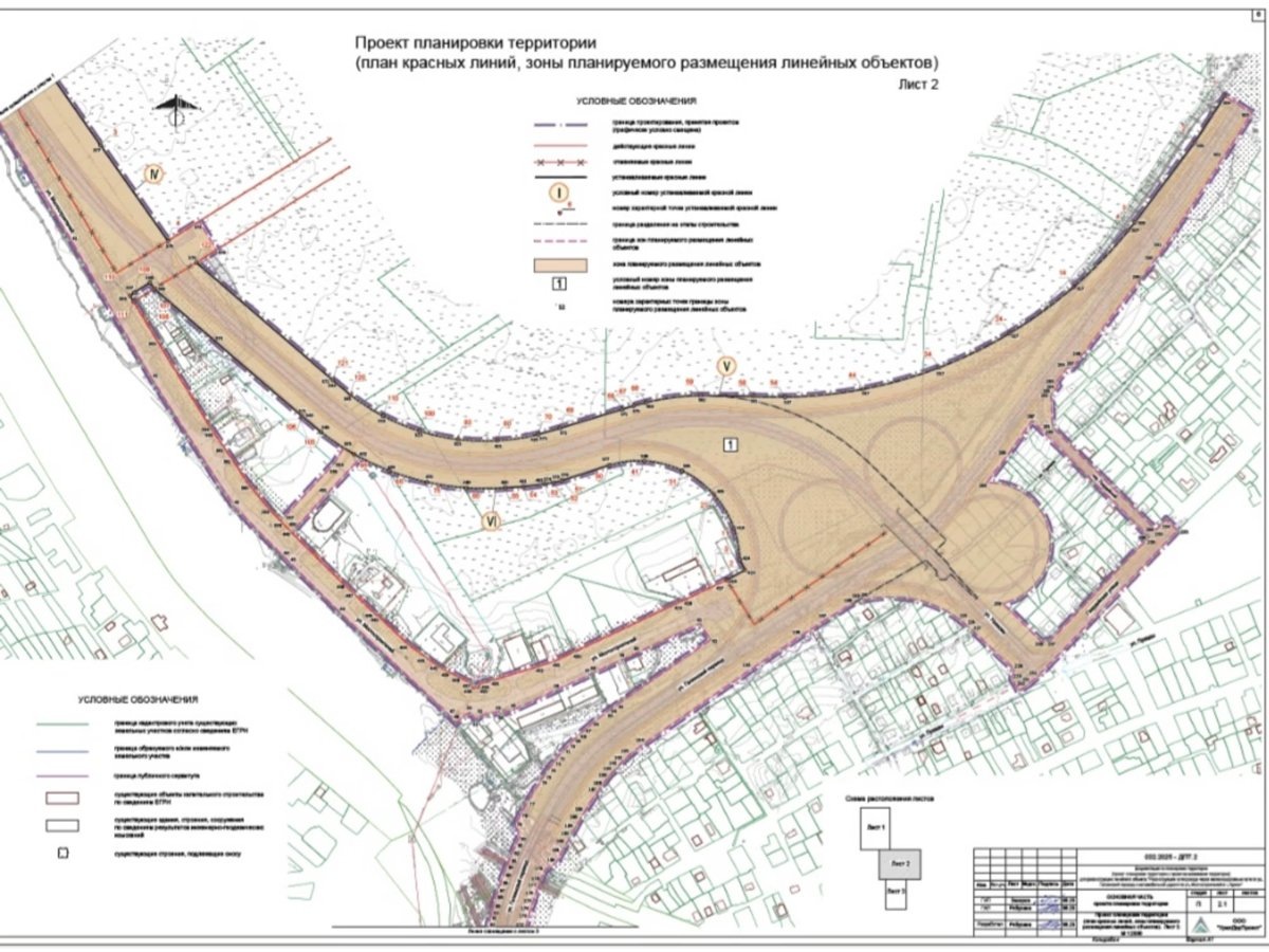
В Заозерном районе Кургана построят новую транспортную развязку. Схема

Власти Кургана одобрили проект обновления улицы Мостостроителей. Речь идет об участке от Галкинского переезда до проспекта Маршала Голикова, а также прилегающих дорогах. Работы будут проводиться в два этапа. Согласно документации мэрии, дорогу расширят до четырех полос. Кроме того, планируется строительство второго путепровода через железную дорогу и нового моста через реку Черную. В перспективе здесь появится транспортная развязка по типу «неполного клеверного листа» с дополнительными съездами. Под реализацию проекта могут попасть частные дома — речь идет об участках на улицах Ушакова, Гвардейская, Горяева и Новостроек. Их планируют изъять для муниципальных нужд. Новый и существующий путепроводы на Мостостроителей будут работать как два отдельных сооружения. Такое решение заложено в проекте реконструкции. Первый этап работ — обновление улиц и строительство мостовых объектов — запланирован на 2026–2029 годы. На втором этапе будет строительство современной развязки, которая должна увели
    В Кургане реконструируют Галкинский переезд и улицу Мостостроителей
В Кургане реконструируют Галкинский переезд и улицу Мостостроителей

Власти Кургана одобрили проект обновления улицы Мостостроителей. Речь идет об участке от Галкинского переезда до проспекта Маршала Голикова, а также прилегающих дорогах. Работы будут проводиться в два этапа.

Согласно документации мэрии, дорогу расширят до четырех полос. Кроме того, планируется строительство второго путепровода через железную дорогу и нового моста через реку Черную. В перспективе здесь появится транспортная развязка по типу «неполного клеверного листа» с дополнительными съездами.

Под реализацию проекта могут попасть частные дома — речь идет об участках на улицах Ушакова, Гвардейская, Горяева и Новостроек. Их планируют изъять для муниципальных нужд.

Новый и существующий путепроводы на Мостостроителей будут работать как два отдельных сооружения. Такое решение заложено в проекте реконструкции. Первый этап работ — обновление улиц и строительство мостовых объектов — запланирован на 2026–2029 годы. На втором этапе будет строительство современной развязки, которая должна увеличить пропускную способность. Однако сроки начала этих работ пока не определены.

Т
Тимур Нуцулханов