Найти в Дзене
INMYROOM

Как обустроить комфортный интерьер-антистресс: 7 классных решений из двушки 41 м²

Пространство получилось спокойным, продуманным и по-настоящему удобным для жизни Дизайнер Юлия Бортневская создала проект этой квартиры для бизнесмена, чья жизнь связана с постоянными путешествиями, а пребывание в Москве носит нерегулярный характер. Главной целью стало создание спокойной, функциональной среды без визуального шума, где можно полноценно отдохнуть и восстановить силы между поездками. В качестве концептуальной основы был выбран биофильный минимализм, объединяющий простоту, чистые линии и связь с природой. Юлия поделилась ключевыми дизайнерскими решениями, реализованными в этом интерьере. Планировка квартиры была переосмыслена. Пространство кухни расширили, что позволило сформировать удобную зону для готовки — важное условие для владельца, который любит готовить. В результате кухня стала полноценной и логичной частью общей зоны гостиной. Все технические и бытовые элементы максимально интегрированы в мебель. Такой подход сохраняет чистоту линий и создает спокойную визуальную
Оглавление

Пространство получилось спокойным, продуманным и по-настоящему удобным для жизни

Стилист: Алла Зорина
Стилист: Алла Зорина

Дизайнер Юлия Бортневская создала проект этой квартиры для бизнесмена, чья жизнь связана с постоянными путешествиями, а пребывание в Москве носит нерегулярный характер. Главной целью стало создание спокойной, функциональной среды без визуального шума, где можно полноценно отдохнуть и восстановить силы между поездками. В качестве концептуальной основы был выбран биофильный минимализм, объединяющий простоту, чистые линии и связь с природой. Юлия поделилась ключевыми дизайнерскими решениями, реализованными в этом интерьере.

 📷
📷

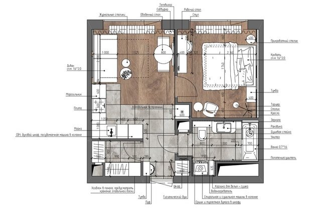
1. Продуманная планировка

Планировка квартиры была переосмыслена. Пространство кухни расширили, что позволило сформировать удобную зону для готовки — важное условие для владельца, который любит готовить. В результате кухня стала полноценной и логичной частью общей зоны гостиной.

 📷
📷

Обратите внимание на видео:

2. Принцип минимального визуального шума

Все технические и бытовые элементы максимально интегрированы в мебель. Такой подход сохраняет чистоту линий и создает спокойную визуальную среду, благодаря чему даже компактное пространство воспринимается более просторным и воздушным.

 📷
📷

3. Игра фактур

Для сохранения минималистичной эстетики, но без ощущения стерильности, в отделке использованы различные тактильные материалы: шпонированный МДФ, гибкий камень и бамбуковые панели. Их сочетание добавляет интерьеру глубины и тепла.

 📷
📷

4. Интеграция инженерии

Поскольку в апартаментах предусмотрена спринклерная система, потолок потребовал особого подхода. С помощью натяжной конструкции удалось создать единый уровень, скрыть все инженерные коммуникации и аккуратно оформить ниши над окнами.

 📷
📷

5. Воздушная спальня

В спальне сознательно оставили только самое необходимое: кровать, прикроватные тумбы и консоль. Вся система хранения предусмотрена в скрытой нише. Это решение делает помещение визуально свободным и настраивающим на отдых.

 📷
📷

6. Архитектурный свет

В интерьере реализован сценарий освещения, где световой поток мягко переходит со стены на потолок. При включении свет равномерно распределяется по поверхностям, создавая дополнительный уютный сценарий и меняя атмосферу пространства.

 📷
📷

7. Функциональная ванная со световым окном

В санузле удалось создать функциональное и визуально легкое пространство. Ключевой элемент — световое окно над ванной, которое наполняет помещение светом и добавляет глубины. Даже мелкие бытовые предметы аккуратно спрятаны за фасадами, что сохраняет чистую архитектуру.

 📷
📷

Как отмечает заказчик, квартира стала для него настоящим местом силы: сюда приятно возвращаться после долгих перелетов и напряженных рабочих дней. Пространство получилось спокойным, продуманным до мелочей и по-настоящему комфортным для восстановления сил.

8. Смотрите остальные фото проекта в карусели ниже

 📷
📷
 📷
📷
 📷
📷
 📷
📷
 📷
📷
 📷
📷
 📷
📷
 📷
📷

Сейчас читают:

Спасибо, что читаете нас! ❤️

Если материал был полезен — поставьте лайк и отправьте другу.

А ещё больше интерьерных идей, советы экспертов и классные румтуры в нашем Telegram-канале. Подписывайтесь, вам точно понравится!