Найти в Дзене

Строительство дома под ключ 135 м². Пример на Адыгейской Набережной.

Планируете строительство дома под ключ для большой семьи? Мы разобрали проект двухэтажного дома площадью 135,4 м², который идеально подходит для постоянного проживания. Узнайте, почему такая планировка пользуется спросом и как можно оптимизировать строительство дома в ипотеку, не теряя в качестве.
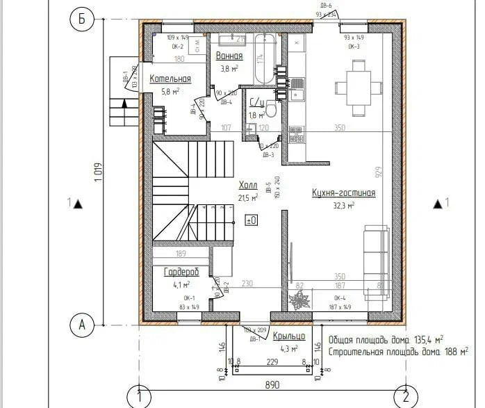
Планировка первого этажа: кухня-гостиная и гостевая зона:
Сердце дома — просторное помещение, объединяющее зону приготовления пищи и отдыха. Большие окна обеспечивают хорошее естественное освещение в течение всего дня. Кухня-гостиная 32,3 м²
Кабинет 5,8 м²: Изолированная комната на первом этаже. Это универсальное пространство, которое можно использовать как: —рабочий кабинет (если вы работаете из дома); —гостевую спальню; —детскую игровую (пока дети маленькие и нуждаются в присмотре); —комнату для хобби или библиотеку. Санузлы первого этажа:
Важное преимущество проекта — наличие двух раздельных помещений:
—Ванная 3,8 м² — полноценное помещение с душевой или ванной, раковиной и местом для
Оглавление

Планируете строительство дома под ключ для большой семьи? Мы разобрали проект двухэтажного дома площадью 135,4 м², который идеально подходит для постоянного проживания. Узнайте, почему такая планировка пользуется спросом и как можно оптимизировать строительство дома в ипотеку, не теряя в качестве.

Чертёж-планировка 1 этажа
Чертёж-планировка 1 этажа
Чертёж-планировка 2 этажа
Чертёж-планировка 2 этажа

Планировка первого этажа: кухня-гостиная и гостевая зона


Планировка первого этажа: кухня-гостиная и гостевая зона:
Сердце дома — просторное помещение, объединяющее зону приготовления пищи и отдыха. Большие окна обеспечивают хорошее естественное освещение в течение всего дня.

Кухня-гостиная 32,3 м²

Кабинет 5,8 м²:

Изолированная комната на первом этаже. Это универсальное пространство, которое можно использовать как:

—рабочий кабинет (если вы работаете из дома);

—гостевую спальню;

—детскую игровую (пока дети маленькие и нуждаются в присмотре);

—комнату для хобби или библиотеку.

Санузлы первого этажа:
Важное преимущество проекта — наличие двух раздельных помещений:

—Ванная 3,8 м² — полноценное помещение с душевой или ванной, раковиной и местом для стиральной машины.

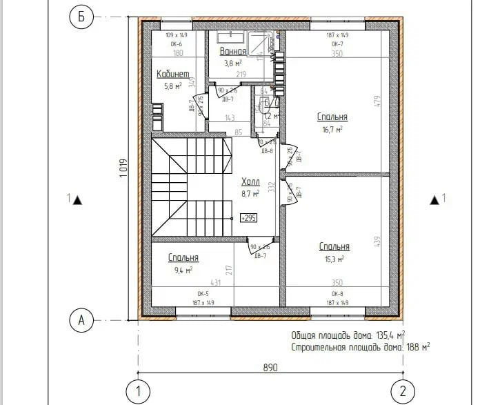
Планировка второго этажа: спальни и гардеробная

Спальня 16,7 м²

Просторная главная спальня. Здесь легко разместится двуспальная кровать, прикроватные тумбы и комод. Окна (судя по чертежу, выходят на разные стороны) обеспечивают хороший воздухообмен при проветривании.

Спальня 9,4 м²

Комната поменьше — идеально подойдет для детской, спальни подростка или гостевой. Компактная, но не тесная, с достаточным количеством света от окна.

Спальня 15,3 м²

Комната поменьше — идеально подойдет для детской, спальни подростка или гостевой. Компактная, но не тесная, с достаточным количеством света от окна.

Холл 8,7 м²

Просторная лестничная площадка на втором этаже, из которой есть выход во все комнаты. Это пространство можно использовать как небольшую зону отдыха, поставив кресло и торшер, или как место для встроенных шкафов для хранения постельного белья.

Готовый проект дома на Адыгейской Набережной.
Готовый проект дома на Адыгейской Набережной.

Строительство дома в ипотеку:

Если вы планируете строительство дома в ипотеку, важно заранее просчитать бюджет и найти статьи разумной экономии без потери качества. С этим вам обязательно помогут наши специалисты!

Заключение

Данный проект — пример продуманного строительства дома под ключ для семьи, которая ценит комфорт и личное пространство. Два санузла, отдельная гардеробная и возможность организовать кабинет или гостевую на первом этаже делают этот дом функциональным и удобным для жизни. Если вы рассматриваете строительство дома в ипотеку, эта планировка позволит вам рационально использовать каждый квадратный метр и получить максимум комфорта за ваши деньги.

Получите консультацию по строительству дома под ключ:

📞 Строительство и проектирование: +7 (928) 460-60-04 — руководитель офиса

📞 Ипотечное кредитование: +7 (989) 27-36-888 — главный специалист по ипотечному кредитованию

📍 Офис компании: г. Краснодар, ул. Тепличная, 62/1, корп. 5

https://domovoy.online/

ДОМОВОЙ — строим дома, в которых хочется жить