Добавить в корзинуПозвонить
Найти в Дзене
ВОДОКОМФОРТ

Все включено: стоит ли покупать насосную станцию вместо насоса?

Насос или насосная станция — вопрос, который возникает примерно у каждого, кто впервые занимается водоснабжением на участке. Быстро становится понятно, что станция значительно дороже, но спойлер: вопрос не только в цене. Нет. Это первое, что стоит понять – станция станции рознь. Насосная станция — это не конкретное оборудование, а концепция: насос, гидроаккумулятор и автоматика в одном корпусе. Но даже этот стандартный набор у разных моделей отличается — и по составу, и по начинке. В одной всё включено: манометр, реле давления, защита от сухого хода. В другой — только базовое реле, а манометр приходится докупать отдельно. Где-то бак встроен в корпус, где-то идёт отдельным элементом. На это важно смотреть при выборе, а не принимать как данность. Классическая бюджетная станция работает просто: насос включился — набрал давление — отключился. Включился снова. И так по кругу. Более продвинутые модели, так какие как Shinhoo AQUAMASTER умеют поддерживать давление плавно, без рывков — благода
Оглавление

Насос или насосная станция — вопрос, который возникает примерно у каждого, кто впервые занимается водоснабжением на участке.

Быстро становится понятно, что станция значительно дороже, но спойлер: вопрос не только в цене.

Что вообще такое насосная станция — это всегда одно и то же?

Нет. Это первое, что стоит понять – станция станции рознь.

Насосная станция — это не конкретное оборудование, а концепция: насос, гидроаккумулятор и автоматика в одном корпусе. Но даже этот стандартный набор у разных моделей отличается — и по составу, и по начинке. В одной всё включено: манометр, реле давления, защита от сухого хода. В другой — только базовое реле, а манометр приходится докупать отдельно. Где-то бак встроен в корпус, где-то идёт отдельным элементом. На это важно смотреть при выборе, а не принимать как данность.

Классическая бюджетная станция работает просто: насос включился — набрал давление — отключился. Включился снова. И так по кругу.

Более продвинутые модели, так какие как Shinhoo AQUAMASTER умеют поддерживать давление плавно, без рывков — благодаря встроенному частотному преобразователю.

Это принципиально другой уровень комфорта и ресурс работы насоса.

Кстати, станцию при желании можно собрать самостоятельно из отдельных элементов: купить насос, гидробак, реле давления, обратный клапан — и скрутить всё самому. Это реально. Но займёт время, потребует понимания гидравлики и в итоге выйдет в схожую стоимость — плюс возня с подбором совместимых компонентов.

Преимущества насосных станций перед насосами.

-2

Все включено.

Когда покупаешь готовую станцию, все компоненты уже подобраны и настроены друг под друга. Насос знает, с каким баком работает. Автоматика откалибрована под нужное давление. Не нужно думать, хватит ли производительности насоса для этого гидробака, или правильно ли выставлено реле.

Самостоятельный монтаж

Монтаж при этом реально проще, чем со связкой отдельных устройств. Подключить станцию к трубопроводу может человек без специальных знаний — нужно лишь выровнять корпус, зафиксировать на основании, подсоединить всасывающий и напорный патрубки и включить в розетку.

Мобильность

Станцию можно убирать на зиму. Это актуально для сезонных дач: слил воду, унёс в тепло, весной поставил обратно. Упрощенная консервация: трубы всё равно придётся продуть, но не нужно возиться с насосом на месте, заливать антифриз в систему или утеплять оборудование. Для тех, кто приезжает только летом, это удобное решение.

Когда насосная станция оправдана

Дача с постоянным проживанием

Когда одновременно открывают кран на кухне и кто-то идёт в душ, давление в системе должно держаться стабильно.

-3

К тому же отдельный насос в принципе не имеет автоматики. Включил в розетку – работает. Вытащил из розетки, насос не работает.

По сути, станция нужна если вы хотите автоматическое водоснабжение в загородном доме как в городской квартире.

Вода нужна для полива, хозяйства и удовольствия

Какой толк в даче, если все время сидеть дома? То ли дело собрать огурцы с пупырышками с грядки, нарвать веник, совместить мойку машины с равномерным загаром, а вечером в баньку…

-4

Огород, теплица, баня, мойка машины — всё это создаёт переменный расход. То вода нужна сильно, то нет. Гидроаккумулятор в станции сглаживает эти пики, поэтому насос не дёргается на каждое открытие крана.

Когда станция не подойдет. Финансовые и технические барьеры.

Не всегда дорогое решение — самое правильное. Вот ситуации, когда можно обойтись проще и дешевле.

Нужна высокая производительность.

Насосные станции поверхностного типа рассчитаны на умеренный расход. Если вам нужно перекачивать большие объёмы — для производства, ирригации крупного участка — это уже другая категория оборудования.

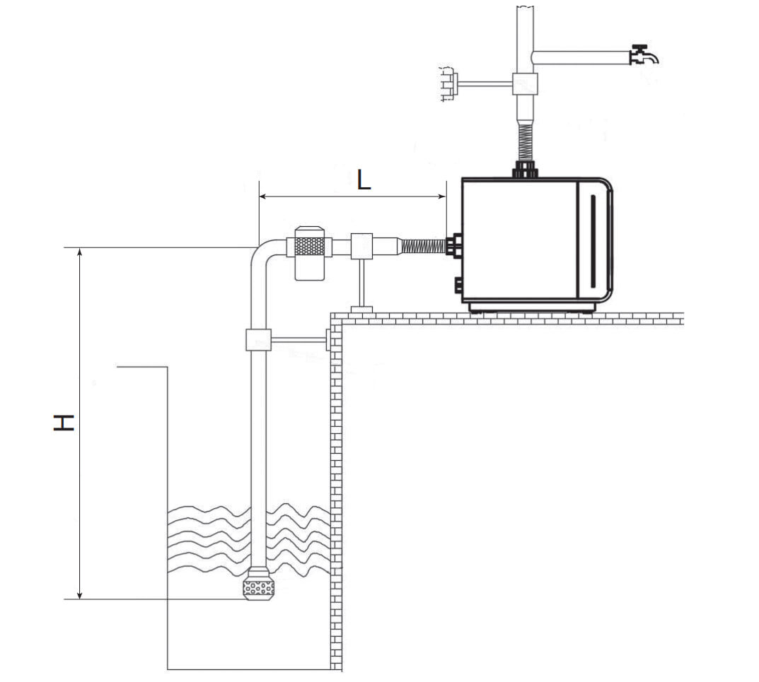
Глубина источника – это, пожалуй, самый важный параметр.

Поверхностные насосные станции поднимают воду с глубины до 8 метров — это физический предел самовсасывания. Хотите больше? Тогда нужен эжектор (дополнительный расход) или погружной насос — и совсем другая схема водоснабжения.

-5

Если у вас колодец глубиной 10 метров и больше, или скважина с динамическим уровнем воды ниже 8–9 метров — насосная станция поверхностного типа вам не подойдёт в принципе. Никакие бренды и технологии здесь не помогут: это не вопрос качества оборудования, это гидравлика.

Расстояние от источника до дома

Ещё один ограничитель — расстояние от источника до дома. Горизонтальная труба тоже создаёт сопротивление, и если тянуть воду больше 30–40 метров, поверхностная станция может просто не втянуть воду в себя.

-6

В этом случае выход — погружной насос: он ставится прямо в источник и толкает воду к дому, а не тянет её издалека. Длина трассы для него практически не ограничение — главное правильно подобрать мощность.

Качество воды

Насосная станция — это не фильтрующее устройство. Она рассчитана на чистую воду без твёрдых включений. Песок, ил, взвесь — всё это убивает рабочее колесо быстро и безвозвратно.

-7

Если вода в источнике мутная, особенно в паводок или после дождей — рассматривайте погружной насос с соответствующей защитой.

На что обратить внимание при выборе: вопрос про сервис и обслуживание.

Один нюанс, который важен именно сейчас.

Многие привычные европейские бренды свернули официальные поставки и сервис на территории России. Это означает: купить оборудование ещё можно (через параллельный импорт), а вот с гарантийным ремонтом и официальными запчастями — уже сложнее.

-8

При выборе станции стоит проверить, есть ли у производителя авторизованные сервисные центры в России с реальными возможностями обслуживания. Насосная станция — это не расходник, а оборудование на годы, и гарантия должна работать.

Например, станция Shinhoo AQUAMASTER, которую можно приобрести в интернет-магазине Водокомфорт, имеет официального импортёра и сертифицированный сервис на территории ЕАЭС. Для частного владельца это означает, что при поломке не придётся искать «серого» мастера или везти насос в неизвестном направлении.

А чтобы в своём выборе быть уверенными наверняка, мы всегда можете проконсультироваться со специалистами интернет-магазина ВОДОКОМФОРТ и подобрать оборудование под ваши индивидуальные потребности.

Насосы
5974 интересуются