Добавить в корзинуПозвонить
Найти в Дзене

ЖК «Светский лес» открыл продажи в 1 литере и объявил об изменении концепции

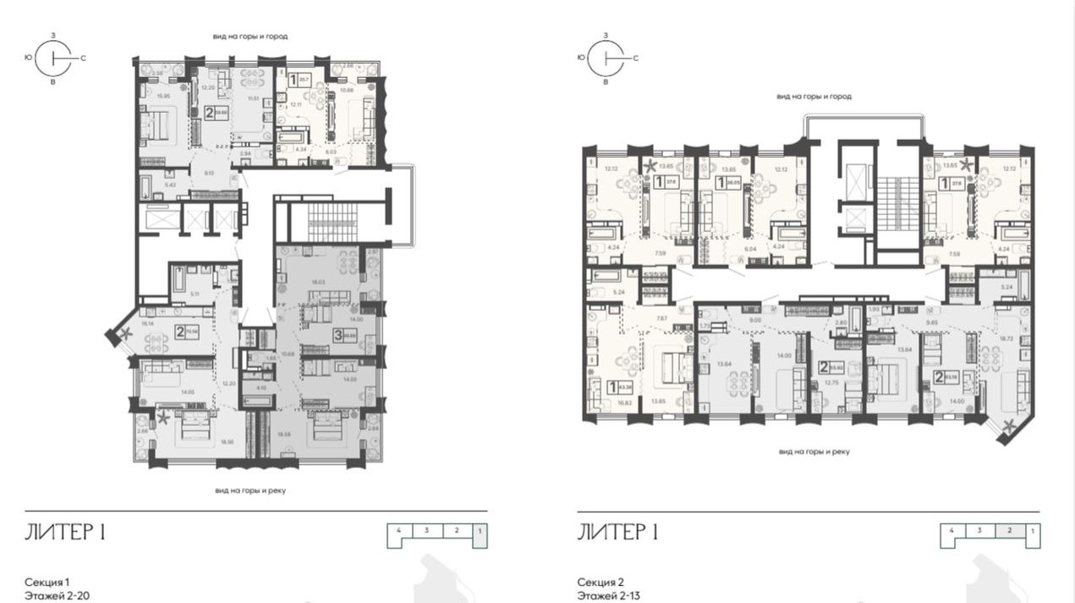
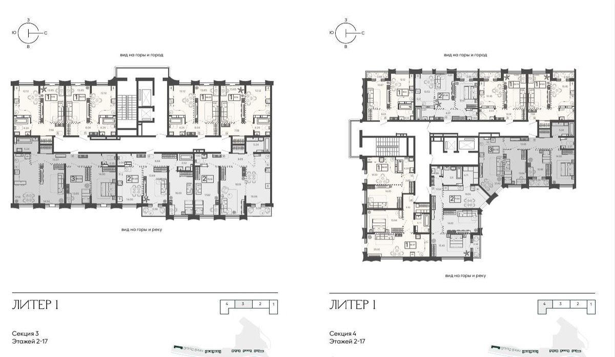
Теперь часть проекта реализуют партнеры Точно -  девелоперская компания «Творчество» из Тюмени.  Первая очередь - литеры 2,3 и 4 остаются прежними. Другие корпуса составят обособленный квартал более высокого класса в прочтении «Творчества». Территория, набережная, школа и сад остаются общими. А новый квартал от «Творчества» станет его драгоценной жемчужиной для тех, кто ищет максимум дизайна и сервиса. А что изменилось? В 1 литере, самом ближнем к морю, по-прежнему 4 секции/подъезда. Но в 1 секции теперь 4 квартиры, вместо 8 (как во 2 литере). Во втором - на 2 квартиры меньше: 4 однушки и две двушки. В третьем стало на 1 квартиру больше, а в четвертом - сразу на 3. Студий нет. Ну и судя по планировке, фасады литера 1 отличаются от остальных. Так что если хотите приватности - вам в 1 секцию первого литера) И открыли продажи паркинга под первой очередью (литеры 1-4). Стоимость машино-места от 2,7 млн до 8,5 млн за 33м2. Купить может любой,  но для покупателей квартир в этом ЖК - де

ЖК «Светский лес» открыл продажи в 1 литере и объявил об изменении концепции

Теперь часть проекта реализуют партнеры Точно -  девелоперская компания «Творчество» из Тюмени.  Первая очередь - литеры 2,3 и 4 остаются прежними. Другие корпуса составят

обособленный квартал более высокого класса в прочтении «Творчества».

Территория, набережная, школа и сад остаются общими.

А новый квартал от «Творчества» станет его драгоценной жемчужиной для тех, кто ищет максимум дизайна и сервиса.

А что изменилось?

В 1 литере, самом ближнем к морю, по-прежнему 4 секции/подъезда. Но в 1 секции теперь 4 квартиры, вместо 8 (как во 2 литере). Во втором - на 2 квартиры меньше: 4 однушки и две двушки. В третьем стало на 1 квартиру больше, а в четвертом - сразу на 3. Студий нет.

Ну и судя по планировке, фасады литера 1 отличаются от остальных.

Так что если хотите приватности - вам в 1 секцию первого литера)

И открыли продажи паркинга под первой очередью (литеры 1-4). Стоимость машино-места от 2,7 млн до 8,5 млн за 33м2. Купить может любой,  но для покупателей квартир в этом ЖК - дешевле на 5%

#сочиполюбви

-2
-3
-4
-5
-6
-7
-8