Найти в Дзене

Мы уже делились некоторыми чертежами этого секретного проекта

Но именно окна — это концентрат всей сложности. Трек проходит в верхнем узле и должен совпасть с потолочной геометрией. Ниже решетка конвектора: рейка с шаг в 10 мм. Шаг не декоративный, он влияет на вентиляцию, ритм и масштаб филенки одновременно. Съемная крышка лючка розетки (отдельный узел). С зазорами, вырезом для открывания, глубиной посадки, потому что розетка интегрирована в основание подоконника. 📍Материал: МДФ со шпоном, штапики массив дуба. Хотим отметить, что абсолютно каждое окно собирается отдельно, потому что одинаковых проемов в природе не существует. В данном случае чертеж определяет и то, как изделие будет выглядеть через 5–10 лет эксплуатации. И в этом проекте таких окон не одно. Назовем этот объект показательно сложным 😉

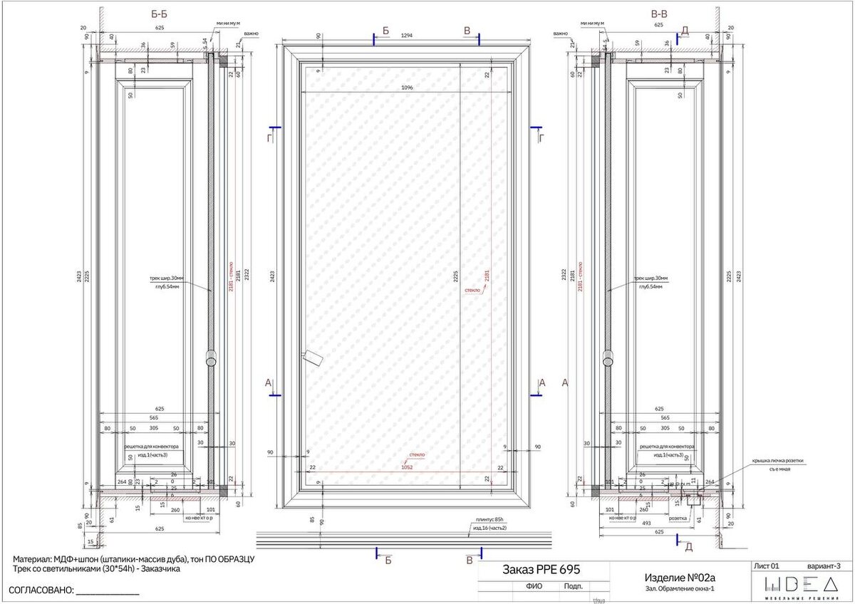
Мы уже делились некоторыми чертежами этого секретного проекта.

Но именно окна — это концентрат всей сложности.

Трек проходит в верхнем узле и должен совпасть с потолочной геометрией.

Ниже решетка конвектора: рейка с шаг в 10 мм. Шаг не декоративный, он влияет на вентиляцию, ритм и масштаб филенки одновременно.

Съемная крышка лючка розетки (отдельный узел). С зазорами, вырезом для открывания, глубиной посадки, потому что розетка интегрирована в основание подоконника.

📍Материал: МДФ со шпоном, штапики массив дуба.

Хотим отметить, что абсолютно каждое окно собирается отдельно, потому что одинаковых проемов в природе не существует. В данном случае чертеж определяет и то, как изделие будет выглядеть через 5–10 лет эксплуатации.

И в этом проекте таких окон не одно. Назовем этот объект показательно сложным 😉

-2
-3
-4
-5