Добавить в корзинуПозвонить
Найти в Дзене

#чертежи_ШВЕД

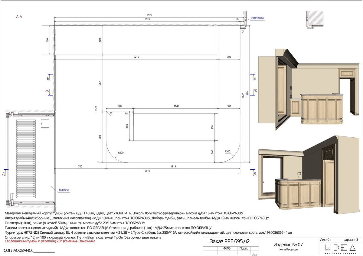
Ресепшн в нашем новом проекте. Ранее мы уже делились фрагментами рабочей документации из этого проекта, сегодня более детально делимся зоной ресепшн. По чертежам хорошо читается основа композиции: пилястры, радиусная геометрия, активная фрезеровка и плотная работа с пропорциями. Ресепшн выстроен как цельный объем, где декоративные элементы не накладываются поверх формы, а формируют ее. Конструкция радиусная сразу в двух направлениях: по внешнему и по внутреннему контуру. Радиусы заданы в чертежах с точными привязками. Самая тонкая часть работы здесь как раз в том, чтобы декоративные элементы корректно повторяли радиус без изломов. Отдельно зафиксирован шаг фрезеровки. По материалам: основная масса выполнена из МДФ со шпоном с тонировкой по образцу. Декор — накладной, из массива дуба. Это осознанное решение: массив лучше работает в сложной геометрии и позволяет делать мелкие архитектурные детали. Скоро мы вернемся к вам с фотографиями этого объекта уже после его монтажа.

#чертежи_ШВЕД

Ресепшн в нашем новом проекте.

Ранее мы уже делились фрагментами рабочей документации из этого проекта, сегодня более детально делимся зоной ресепшн.

По чертежам хорошо читается основа композиции: пилястры, радиусная геометрия, активная фрезеровка и плотная работа с пропорциями. Ресепшн выстроен как цельный объем, где декоративные элементы не накладываются поверх формы, а формируют ее.

Конструкция радиусная сразу в двух направлениях: по внешнему и по внутреннему контуру. Радиусы заданы в чертежах с точными привязками. Самая тонкая часть работы здесь как раз в том, чтобы декоративные элементы корректно повторяли радиус без изломов. Отдельно зафиксирован шаг фрезеровки.

По материалам: основная масса выполнена из МДФ со шпоном с тонировкой по образцу. Декор — накладной, из массива дуба. Это осознанное решение: массив лучше работает в сложной геометрии и позволяет делать мелкие архитектурные детали.

Скоро мы вернемся к вам с фотографиями этого объекта уже после его монтажа.

-2
-3
-4
-5
-6
-7
-8