Найти в Дзене

Стоимость свайно-винтового фундамента под баню из бруса размером 8,4 × 5,5 м

В городе Солнечногорске Московской области специалисты КЗС возвели фундамент под две бани из бруса. Бани строятся по практически одинаковым проектам, единственное различие — диаметр бревна. Для одной бани будет использовано бревно диаметром 200 мм, для второй — 220 мм. В остальном проекты не различаются, и по результату выполненного расчета нагрузок для двух строений был спроектирован идентичный фундамент. В данном случае увеличение диаметра бревна не привело к необходимости увеличения диаметра свай. В обоих проектах использовали сваи диаметром 108 мм. На основании данных о грунте подобрали длину свай — 2,5 м. На участке хороший грунт, и основная задача при выборе длины была в том, чтобы заглубить лопасть сваи ниже глубины промерзания, где на нее не будут действовать силы морозного пучения. Если бы на участке был торфяник, насыпной или другой слабонесущий грунт, пришлось бы использовать сваи большей длины, чтобы пройти через слабый грунт до плотных слоев. Всего для каждого фундамента и
Оглавление

В городе Солнечногорске Московской области специалисты КЗС возвели фундамент под две бани из бруса.

Бани строятся по практически одинаковым проектам, единственное различие — диаметр бревна. Для одной бани будет использовано бревно диаметром 200 мм, для второй — 220 мм.

Выдержка из проекта
Выдержка из проекта

Проект фундамента

В остальном проекты не различаются, и по результату выполненного расчета нагрузок для двух строений был спроектирован идентичный фундамент. В данном случае увеличение диаметра бревна не привело к необходимости увеличения диаметра свай. В обоих проектах использовали сваи диаметром 108 мм.

На основании данных о грунте подобрали длину свай — 2,5 м. На участке хороший грунт, и основная задача при выборе длины была в том, чтобы заглубить лопасть сваи ниже глубины промерзания, где на нее не будут действовать силы морозного пучения. Если бы на участке был торфяник, насыпной или другой слабонесущий грунт, пришлось бы использовать сваи большей длины, чтобы пройти через слабый грунт до плотных слоев.

Всего для каждого фундамента использовали 20 винтовых свай диаметром 108 мм и длиной 2,5 м. Для каждой сваи проектом предусмотрено использование оголовка. Оголовок состоит из стакана и пластины, на которую через прослойку гидроизоляционного материала будет уложен венец постройки.

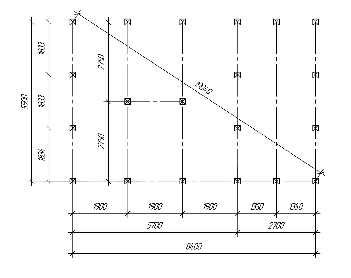
План свайного поля
План свайного поля

В банях будут установлены электрические печи. Если бы планировалось возведение больших кирпичных печей, то для них в проекте был бы предусмотрен отдельный свайный фундамент внутри строения. И этот фундамент не был бы жестко связан с основным контуром. То есть на плане мы бы увидели прямоугольник из 4—6 или более свай, связанных между собой металлической обвязкой, а не брусом.

Фото готового фундамента:

-3

Стоимость такого фундамента

Рассчитаем стоимость аналогичного комплекта свай с оголовками и услуг монтажа на основании цен «Королёвского завода свай» актуальных на 3 марта 2026 года. Стоимость 20 аналогичных винтовых свай диаметром 108 мм и длиной 2,5 м — 53 тыс. ₽, комплекта оголовков с установкой — 8 тыс. ₽, монтажа свай — 36 тыс. ₽. Общая стоимость — 97 тыс. ₽.

-4

Цены действительны на 3 марта 2026 года. Актуальные цены и акции — на сайте завода kzs.ru

Приведенный расчет не включает стоимость доставки и дополнительных работ на объекте, если они потребуются. Стоимость доставки зависит от расстояния от МКАД. Расчет носит ознакомительный характер, не является офертой.

Узнать актуальные цены на продукцию и услуги «Королёвского завода свай» можно на официальном сайте kzs.ru. А чтобы получить расчет стоимости фундамента из винтовых или забивных свай для вашего объекта, оставьте заявку на сайте — менеджер завода свяжется с вами для подготовки индивидуальной сметы.