Добавить в корзинуПозвонить
Найти в Дзене
Елена Володина

От бетона до вазы за 4 млн: итог ремонта в квартире бизнес-класса

Эту квартиру мы делали с бетона почти полгода. Евро-2, 56м2. Дом бизнес-класса, Нагатино i-land. Квартира под сдачу, целевая аудитория - пара, без детей и животных. За все 6 месяцев клиентка приезжала на объект буквально пару раз - первый в конце чистовых работ, второй - уже на приемку. Да, и если мы еще не знакомы: меня зовут Лена Володина, я профессионально занимаюсь инвест-ремонтами и комплектацией квартир под сдачу, а потом зачастую помогаю клиентам их выгодно сдать. Более оперативно о своих объектах рассказываю в своем телеграм-канале "Пока меня не было" и на канале в MAX. В этой квартире много воздуха, что нетипично для современных евродвушек. Просторная спальня, большой санузел и гардеробная. Визуал клиентка согласовала с первого раза без правок. Она не присылала референсов (я их обычно и не запрашиваю), поэтому вдвойне удивилась результату – говорит, вы словно прочитали мои мысли. Больше всего понравились гуси) Для этого проекта я выбирала спокойные глубокие тона. В ванную

Эту квартиру мы делали с бетона почти полгода. Евро-2, 56м2. Дом бизнес-класса, Нагатино i-land. Квартира под сдачу, целевая аудитория - пара, без детей и животных. За все 6 месяцев клиентка приезжала на объект буквально пару раз - первый в конце чистовых работ, второй - уже на приемку.

Да, и если мы еще не знакомы: меня зовут Лена Володина, я профессионально занимаюсь инвест-ремонтами и комплектацией квартир под сдачу, а потом зачастую помогаю клиентам их выгодно сдать. Более оперативно о своих объектах рассказываю в своем телеграм-канале "Пока меня не было" и на канале в MAX.

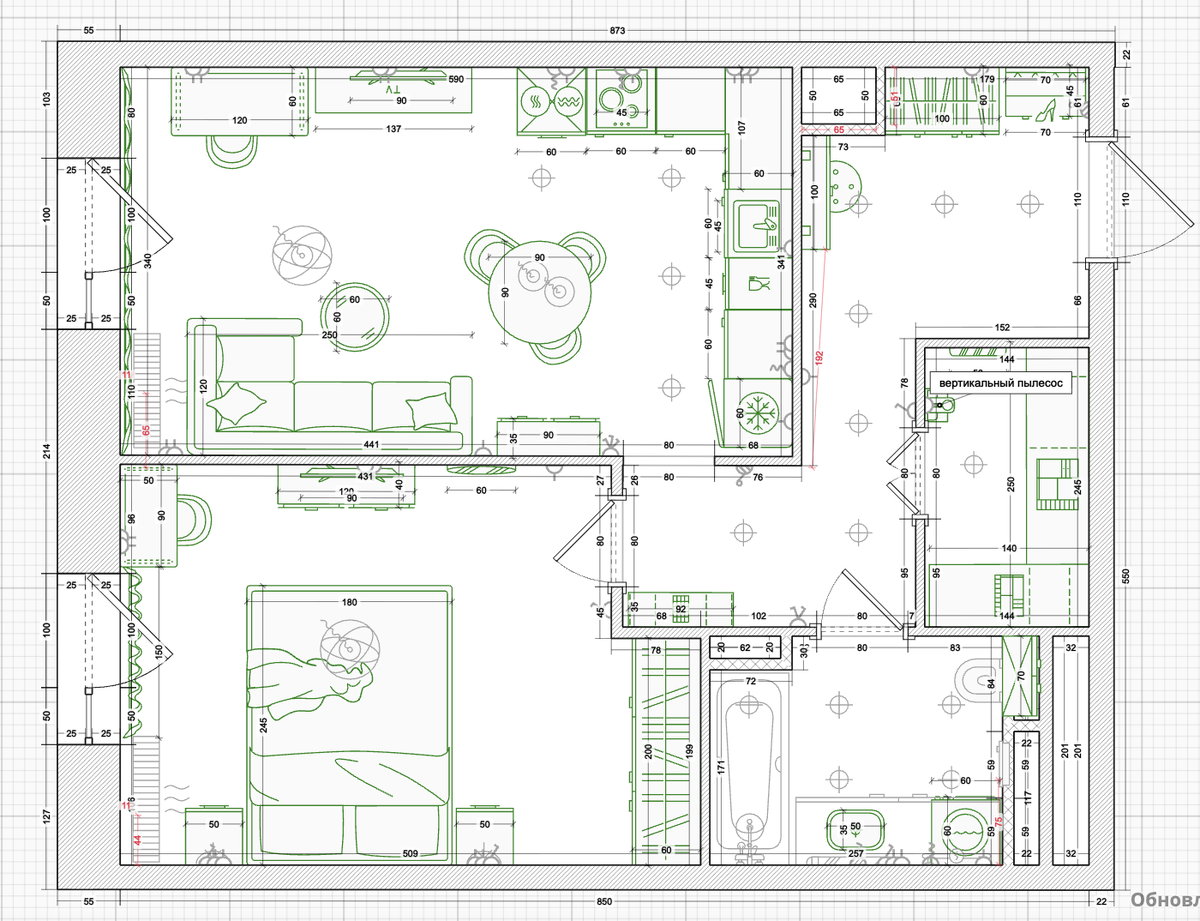
Планировка квартиры
Планировка квартиры

В этой квартире много воздуха, что нетипично для современных евродвушек. Просторная спальня, большой санузел и гардеробная.

Визуал клиентка согласовала с первого раза без правок. Она не присылала референсов (я их обычно и не запрашиваю), поэтому вдвойне удивилась результату – говорит, вы словно прочитали мои мысли. Больше всего понравились гуси)

Для этого проекта я выбирала спокойные глубокие тона. В ванную комнату подобрала плитку в Керама Марацци, все из коллекции Касабланка, поэтому сочетание идеальное, от пола до стен, не надо было переживать из-за несовпадения оттенков. Особенно понравился необычный принт в зоне ванны.

Здесь много мебели на заказ – шкаф в спальне, оба шкафа в прихожей, в нишу в ванной, тумба под раковиной. Чем больше пробую из объекта в объект, тем больше вхожу во вкус) уже есть пару проверенных подрядчиков, которые делают быстро, буквально за пару недель, иногда и за неделю.

Кухня и гардеробная от Hoff. Диван, буфет, черный шкаф в коридоре, столы, кровать и тумбы – divan.ru. Бра у кровати, люстры в гостиную шли из Китая. Особенно долго ждали подвесные светильники над обеденным столом. Но оно того стоило.

Здесь впервые использовала не белые, а кашемировые двери. И особенно горжусь двустворчатыми дверьми в гардеробную – выбрала это решение для того, чтобы избежать мясорубки из дверей в длинном коридоре. Почти все подрядчики, которые оказывались в квартире, обращали на них внимание, хвалили, трогали, открывали. В общем, двери производят вау-эффект.

Общий бюджет на ремонт и комплектацию без учета стоимости моих услуг составил около 4 млн рублей. При этом сами работы (черновые и чистовые + черновые материалы) обошлись в 20 000 рублей за м2 (такого ценника на рынке практически не найти).

Выборочными артикулами этого проекта поделюсь в Максе - подписывайтесь! Возможно, что-то из этого захотите купить и для своего интерьера!
___________
Записаться на комплектацию квартир
можно тут. Я специализируюсь на интерьерах под сдачу.
Подробнее об условиях работы -
на сайте.