Найти в Дзене

Как понять, что планировка плохая, даже если на чертеже всё выглядит логично

Есть парадокс. На плане всё правильно:
размеры соблюдены, мебель помещается, нормы не нарушены. А жить неудобно. Почему так происходит? Потому что планировка — это не про стены.
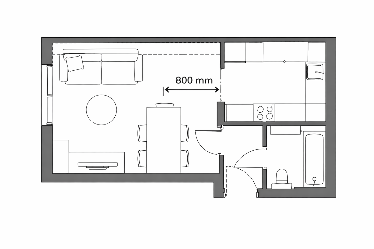
Это про сценарии движения и повседневную жизнь. Разберём признаки, по которым можно понять, что план «формально нормальный», но в реальности проблемный. На чертеже часто можно увидеть проход 800 мм. Формально — допустимо.
Фактически — если рядом диван, стол или открывающаяся дверь, остаётся 550–600 мм. Это уже «боком пройти». Норма ≠ удобно. Частая ошибка современных квартир — длинный, бесполезный коридор. Он: Иногда достаточно изменить конфигурацию — и за счёт этого: Но на исходном плане коридор выглядит «логично». На чертеже: диван 2000 мм
стол 900 мм
шкаф 600 мм Всё влезает. В реальности: Планировка должна учитывать не габарит мебели, а габарит её использования. Посмотрите на план и мысленно пройдите маршрут: Если пути пересекаются, мебель стоит на траектории, а двери конфликтуют — планировка плохая. Даже ес
Оглавление

Есть парадокс.

На плане всё правильно:
размеры соблюдены, мебель помещается, нормы не нарушены.

А жить неудобно.

Почему так происходит?

Потому что планировка — это не про стены.
Это про сценарии движения и повседневную жизнь.

Разберём признаки, по которым можно понять, что план «формально нормальный», но в реальности проблемный.

1️⃣ Проходы соответствуют нормам — но не комфорту

На чертеже часто можно увидеть проход 800 мм.

Формально — допустимо.
Фактически — если рядом диван, стол или открывающаяся дверь, остаётся 550–600 мм.

Это уже «боком пройти».

Норма ≠ удобно.

2️⃣ Коридор занимает площадь, но не работает

Частая ошибка современных квартир — длинный, бесполезный коридор.

Он:

  • «съедает» метры
  • не даёт хранения
  • не улучшает функционал

Иногда достаточно изменить конфигурацию — и за счёт этого:

  • появляется гардеробная
  • расширяется санузел
  • добавляется постирочная

Но на исходном плане коридор выглядит «логично».

3️⃣ Мебель помещается — но жить неудобно

На чертеже:

диван 2000 мм
стол 900 мм
шкаф 600 мм

Всё влезает.

В реальности:

  • стул нельзя отодвинуть полностью
  • дверь шкафа блокируется
  • диван стоит в зоне движения

Планировка должна учитывать не габарит мебели, а габарит её использования.

4️⃣ Нет сценариев движения

Посмотрите на план и мысленно пройдите маршрут:

  • вход → кухня
  • спальня → санузел
  • кухня → стол → гостиная

Если пути пересекаются, мебель стоит на траектории, а двери конфликтуют — планировка плохая.

Даже если по размерам всё корректно.

5️⃣ План «нарисован от стен», а не от жизни

Самая распространённая ошибка.

Планировка строится так:

«Где стена — там комната».

Правильный подход другой:

Сначала — сценарии жизни.
Потом — зонирование.
И только потом — стены.

Почему это особенно актуально сегодня

В современных квартирах почти невозможно что-то исправить без перепланировки.

Застройщики часто:

  • делают длинные коридоры
  • ставят неудобные входные зоны
  • оставляют мало места под хранение

Если планировка изначально непродуманная, косметический ремонт её не спасёт.

Что делать перед ремонтом

Перед тем как начать отделку, важно задать себе три вопроса:

  1. Удобно ли двигаться по квартире?
  2. Есть ли достаточно хранения?
  3. Работает ли пространство под мой образ жизни?

Если хотя бы на один вопрос ответ «не совсем» — стоит пересмотреть планировку.

Потому что переделки всегда дороже, чем продуманное решение на старте.