Добавить в корзинуПозвонить
Найти в Дзене
INVEST | DESIGN | HOME STAGING

Как недорого подготовить к аренде квартиру в новостройке: реальный пример с цифрами и промокодами на скидки

Сегодня я расскажу, как помогла клиентке подготовить для аренды квартиру в новостройке, потратив меньше миллиона рублей (на конец 2024 года). Исходные данные: Квартира 33 м² в Новой Москве в ПИКовсой новостройке с ремонтом от застройщика. Задача: Максимально бюджетно и качественно подготовить жильё к сдаче в аренду на долгий срок. И поскольку квартира уже с ремонтом, нужно оценить, что из этого оставить, а что менять и переделывать. Реализация: Бюджет — 960.000 рублей (цены были актуальны на конец 2024 года). И в эту сумму входит не только ремонт, но и страховка квартиры, дополнительные чипы для подъезда, подключение и установка интернета, коммунальные платежи за время ремонта, а также весь декор от штор и подушек до картин и светильников. Цена долгосрочной аренды — 50.000 рублей в месяц (на осень 2024 года). Когда ко мне обращается клиент, мы обсуждаем концепцию, цветовую гамму, оснащение и бюджет. А потом я полностью беру на себя подготовку квартиры: Клиент отдаёт мне пустую квартиру
Оглавление

Сегодня я расскажу, как помогла клиентке подготовить для аренды квартиру в новостройке, потратив меньше миллиона рублей (на конец 2024 года).

Исходные данные:

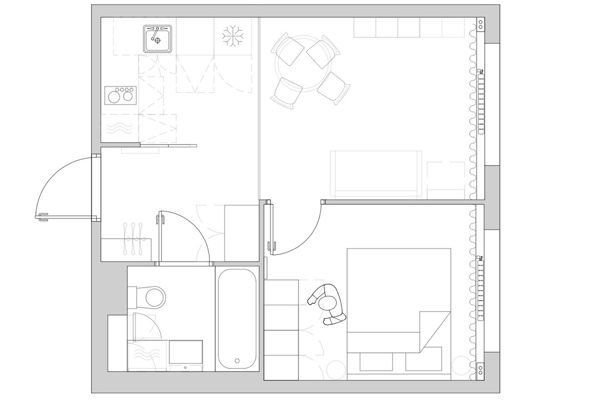
Квартира 33 м² в Новой Москве в ПИКовсой новостройке с ремонтом от застройщика.

Задача:

Максимально бюджетно и качественно подготовить жильё к сдаче в аренду на долгий срок. И поскольку квартира уже с ремонтом, нужно оценить, что из этого оставить, а что менять и переделывать.

Реализация:

Бюджет — 960.000 рублей (цены были актуальны на конец 2024 года). И в эту сумму входит не только ремонт, но и страховка квартиры, дополнительные чипы для подъезда, подключение и установка интернета, коммунальные платежи за время ремонта, а также весь декор от штор и подушек до картин и светильников.

Цена долгосрочной аренды — 50.000 рублей в месяц (на осень 2024 года).

Когда ко мне обращается клиент, мы обсуждаем концепцию, цветовую гамму, оснащение и бюджет. А потом я полностью беру на себя подготовку квартиры:

  • заказываю мебель и технику, контролирую их доставку и установку;
  • езжу в салоны, чтобы живьём посмотреть качество мебели и других изделий;
  • нахожу подрядчиков для ремонта и контролирую их работу;
  • посещаю торговые точки, выбираю краску, текстиль, декор и другие элементы, которые создают цельный интерьер.
Клиент отдаёт мне пустую квартиру с ремонтом от застройщика, а через несколько месяцев получает полностью оборудованную, стильную и готовую к сдаче в аренду жильцам.

Задачи, которые решали в этой квартире:

  • Доработка ремонта от застройщика
  • Заказ и комплектация кухни
  • Меблировка гостиной
  • Обустройство спальни
  • Подбор мебели для прихожей
  • Оснащение санузла
  • Важные финишные мелочи

Расскажу подробнее о каждом этапе.

Доработка ремонта от застройщика

В ремонте от застройщика есть элементы, которые быстро изнашиваются. Их лучше заменить сразу, ведь если заменять их потом по мере износа, клиент потеряет деньги из-за простоя в аренде. И ещё есть моменты, которые можно сразу улучшить, сделав жильё более комфортным и привлекательным для арендаторов.

В этой квартире мы решили поменять двери, заменить и перенести розетки, расширить подоконники.

Замена дверей от застройщика

Как правило, двери такого качества быстро изнашиваются, и выгоднее заменить их сразу.

Так выглядели старые двери от застройщика.
Так выглядели старые двери от застройщика.

Взамен почти картонных дверей от застройщика я подобрала вариант с вандалоустойчивым покрытием и матовым стеклом. Они добавляют квартире «лёгкости» и подходят для любой комнаты, в том числе санузла.

Две двери со стеклянной вставкой обошлись в 26.000 рублей, включая монтаж. Но ручки мы переставили от старых дверей, так как их качество нас устраивало.

Многие хоумстейджеры не меняют двери от ПИКа, но мы с заказчицей решили, что даже для бюджетного сегмента оставлять их в таком виде — не вариант. Они быстро потеряют приличный вид, и это будет сразу бросаться в глаза новым арендаторам. А менять двери по готовому ремонту и с живущими арендаторами — в перспективе плохая история.

Замена и перенос розеток и выключателей

Обычно людям нужно больше розеток, чем предусматривает застройщик, ведь необходимо подключать технику и постоянно заряжать гаджеты. Также розетки должны быть удобно расположены: не перекрываться мебелью и располагаться там, где до них точно дотянутся вилки от приборов.

В этой квартире мы переносили розетки на кухне в более удобные места, а также сделали дополнительные по 4 модуля, чтобы арендаторам было комфортно подключать ТВ и другие устройства. Некоторые одинарные розетки в других помещениях мы сделали двойными. Также все розетки от застройщика мы проверяли на качество подключения. В некоторых местах оно было плохое, что в будущем могло привести к замыканию.

Ещё пришлось переносить 2 выключателя в прихожей, чтобы поставить более вместительный шкаф.

Провода для новых розеток без проблем уместились под новым красивым плинтусом, который мы установили взамен дешёвого пластикового плинтуса от застройщика. Там же мы проложили интернет-кабель, который застройщик не предусмотрел и не провёл.

Да, многие скажут, что это лишние расходы. Но я придерживаюсь позиции, что даже для бюджетного жилья такие решения необходимы. Арендаторы замечают эти детали и рассматривают их как весомые плюсы квартиры. А ещё такие решения служат дольше.

Расширение подоконников

В ПИКовских квартирах заниженные подоконники и большая площадь окна. В таких случаях обычно мы с клиентом расширяем подоконники в спальне и гостиной, делая их дополнительной зоной отдыха.

Для этого мы выламываем старые подоконники и ставим новые шириной 500 мм и длиной 3000 мм. Они получаются цельными и на всю стену. Для укрепления свисающей части используем металлические уголки: так подоконник не надломится, когда на нём будут сидеть.

На фото видно, что шторы полностью закрывают новые широкие подоконники, а не лежат на них. Но карнизов с подходящим выносом в продаже нет, поэтому я отдельно подбираю металлические уголки и отдельно покупаю карнизные шины.

Демонтаж старых подоконников, монтаж новых ПВХ подоконников и металлические уголки для укрепления нависающих частей обошлись в районе 15.000 рублей на оба окна.

Теперь подоконники стали полноценным местом для отдыха или работы у окна. Здесь можно комфортно расположиться с ноутбуком или посидеть с подругой и поболтать с бокалом вина.

Заказ и комплектация кухни

Самое дорогое и сложное помещение в квартире — это кухня. При этом на поиск подходящей формы, выбор материалов и расчёт сметы может уйти много времени. Основная задача здесь — это найти оптимальный вариант, который уложится в бюджет и подойдёт по качеству и внешнему виду.

Я создала для заказчицы четыре разных варианта планировки в одних и тех же границах. Но достаточно и одного варианта, если вы сразу знаете, чего хотите. При одном и том же варианте отделки фасадов и столешницы разные комбинации стоили от 102.000 рублей до 138.000 рублей без техники. Согласитесь, это немаленькая разница для бюджетного сегмента.

Более подробно об этом я писала в моём Телеграм-канале в постах про выбор кухни, устаноку техники и монтаж на объекте.

Кухня получилась функциональной и вместительной. Этот вариант вместе с мебелью, доставкой и сборкой обошёлся в 113.000 рублей. А вся бытовая техника, включая ПММ, духовку, СВЧ-печь, вытяжку и встроенный холодильник, обошлась ещё в 117.000 рублей, включая доставку.

Выбирать мебель и технику удобно на маркетплейсах и в онлайн-магазинах. Вы сразу видите размеры предметов и можете рассчитать, подходят ли они под ваши задачи. Но обязательно учитывайте стоимость доставки, подъёма и сборки мебели, иначе финальная цена может оказаться значительно выше выделенного бюджета.

В моём Телеграм-канале есть видео о том, как я искала раскладку плитки на фартук для этой кухни.

Меблировка гостиной

На небольшом пространстве необходимо разместить обеденную зону, а также зону отдыха и обязательно мини-кабинет для работы за ноутбуком.

Среди ходовых моделей диванов я нашла оптимально подходящий по цвету и бюджету простой раскладной диван, а также кухонный стол со стульями. Все эти элементы хорошо вписались в колористическое решение интерьера.

А для создания рабочего места подошёл компактный секретер и деревянный складной стул, который легко убрать после завершения рабочего дня. Секретер для работы за ноутбуком я тестировала сама и точно знаю, что это подходящий вариант. Также этой же зоне понадобились две дополнительные розетки, чтобы можно было подключать ноутбук и телефоны для подзарядки.

На этих фото видно, как именно мне удалось разместить три разных зоны в таком небольшом пространстве. Подобранные варианты экономят место в маленькой квартире и удобны для проживания одного-двух человек.

Обустройство спальни

В небольшую квартиру я обязательно ставлю кровать с подъёмным механизмом, так как дополнительное место для хранения белья в этом случае очень важно. Ширину кровати обычно выбираю 160 мм, чтобы на ней было комфортно спать двум людям. А вот длину кровати для стеснённых комнат можно брать не 2000 мм, а 1900 мм.

Мебель в спальне
Мебель в спальне

На фото видно, что большую часть комнаты занимает большая кровать, но всё равно остаётся место для других предметов интерьера и свободного перемещения. А зона с широким подоконником стала дополнительным местом отдыха и визуальным акцентом.

Но самая большая сложность при меблировке спальни — это подбор шкафа. Важно, чтобы он был недорогим, полноценным и вместительным, а также чтобы крайняя створка свободно открывалась до конца, не задевая другую мебель. Я заметила, что открывающиеся неполностью дверцы — это частая проблема на других арендных квартирах, и считаю, что такого быть не должно.

У меня есть отдельная статья о том, как заказать такой шкаф, чтобы было дёшево и хорошо.

Створки шкафа свободно открываются и не задевают прикроватную тумбу.
Створки шкафа свободно открываются и не задевают прикроватную тумбу.

С другой стороны, между кроватью и окном есть вторая тумба. Так как там тоже мало пространства, я искала компактный и бюджетный вариант. И в итоге тумбочка туда отлично вписалась. Она подошла по размерам и цене, а благодаря Г-образной форме сохранился доступ к розеткам снизу.

Тумба видна на фото слева, она даже не задевает шторы, встала идеально.
Тумба видна на фото слева, она даже не задевает шторы, встала идеально.
Если занимаетесь планировкой самостоятельно, учитывайте не только длину кровати, но и плинтус, и изголовье. Потому что они могут прибавить к общей длине те сантиметры, которые в итоге сделают проход слишком узким и не позволят поставить напротив кровати другую мебель, например, выбранную систему хранения.

Подбор мебели для прихожей

Для прихожей нужен удобный гардеробный модуль, чтобы было место для грязной обуви, а также чтобы было куда повесить верхнюю одежду и поставить сумку, придя домой.

Гардеробный модуль
Гардеробный модуль

Вот такой гардеробный модуль идеально вписался по размерам. В нём есть место для обуви, выдвижной ящик для мелочей, крючки и рейлинг для вешалок. Он отлично встал в пространство между входной дверью и дверью в санузел.

С другой стороны прихожей я разместила шкаф. В одном из таких шкафов я всегда выделяю секцию под хозяйственно-бытовое хранение.

Пылесос, швабра, щётки уместились в одну из секций шкафа. Теперь они не будут на виду.
Пылесос, швабра, щётки уместились в одну из секций шкафа. Теперь они не будут на виду.
Лайфхак: визуально отделить входную зону от кухни можно с помощью тонкой перегородки из дверей для шкафа-купе, но с жёсткой фиксацией. Такая конструкция обойдётся гораздо дешевле изготовленной на заказ.

На фото видно, что перегородка вписывается интерьер и выполняет свою функцию, разделяя зоны. А ещё теперь в квартире появилось дополнительное зеркало.

Перегородка в белом профиле с рифлёным стеклом и второй частью из ЛДСП обошлась в 20.000 рублей вместе с монтажом. А стоимость конструкции, изготовленной на заказ, составила бы от 40.000 до 70.000 рублей.

В моём Телеграм-канале есть пост о том, как мы делали эту декоративную разделительную перегородку, а также видео того, что в итоге получилось.

Оснащение санузла

Изначально в этом помещении была только ванная и раковина. Мы укомплектовали санузел стиральной машиной, а также готовой тумбой с раковиной-столешницей — этот вариант однозначно дешевле, чем на заказ. А между тумбой и ванной хорошо встала узкая корзина для белья. И чтобы разместить всё необходимое, снова нужно было учитывать каждый сантиметр.

Вертикальный узкий полотенцесушитель я тоже выбрала не просто так. Он не мешает полноценному открыванию створок шкафов, плюс на нём есть крючки, на которые удобно вешать полотенца.

Для ванной комнаты отличной находкой стали кухонные навесные шкафы. Оказалось, что у производителя кухни, которую мы с заказчицей выбрали, были ещё и модульные навесные шкафы. И один из них как раз по глубине прекрасно встал в нишу ванной комнаты. А модули кухонь из Леруа (Лемана ПРО) были чуть глубже и выпирали бы, так что они не подошли.

Слева вверху виден шкаф, который идеально вписался в узкую нишу санузла.
Слева вверху виден шкаф, который идеально вписался в узкую нишу санузла.

Теперь в ванной комнате есть ещё одно место для хранения вещей жильцов.

Важные финишные мелочи

Объекты под ключ я делаю как для себя, поэтому стараюсь доводить до ума каждую мелочь, чтобы потом всё хорошо эксплуатировалось и долго жило. В каждый объект я закладываю:

  • защитные наклейки для ножек мебели;
  • силиконовые защитные наклейки-стопперы;
  • защитные коврики для ящиков кухни и некоторых шкафов;
  • гигиенические поддоны для вставки под мойку и в зону хозяйственного инвентаря;
  • непромокаемый наматрасник на резинке.

А также заказываю тонкое мягкое стекло для столешницы на кухне, чтобы арендаторы не испортили стол.

Что мы получили в итоге

Поскольку квартира очень компактная, максимум внимания я уделяла именно эргономике пространства. Ведь выбранная мебель должна идеально встать в отведённое место, а дверцы и ящики — без проблем открываться и не мешать передвижению по комнате.

Что я предусмотрела в этом проекте:

  • вместительные системы хранения, так как места должно хватать не только для вещей, но и для хозяйственно-бытовых предметов;
  • основное место для сна в спальне и дополнительное в зале, например, для гостей;
  • рабочую зону для ноутбука;
  • достаточное количество розеток, расположенных в удобных местах;
  • дополнительную зону отдыха в виде широких подоконников;
  • а также все дизайнерские решения, связанные с освещением, декором, функциональностью предметов в квартире.
Продуманные детали квартиры не только положительно влияют на качество жизни арендаторов, но и увеличивают стоимость объекта даже в низкий сезон, что важно для арендодателя.

-16

Если вам понравился проект, вы можете купить его целиком со всеми необходимыми чертежами и таблицами для закупок, чтобы реализовать самостоятельно.

Подробнее обо мне, инвест-дизайне и хоумстейджинге читайте в моей отдельной статье.

Больше полезной и интересной информации читайте в моих каналах:

ТГ: INVEST | DESIGN | STAGING

МАКС: INVEST | DESIGN | STAGING

А если нужны скидки, скачивайте бесплатный гайд с моими промокодами и полезными магазинами мебели и декора.