Добавить в корзинуПозвонить
Найти в Дзене
Строим на Позитиве

Компактный дом 11х8.5: 73.9 м² комфорта для молодой семьи

В последнее время я всё чаще задумываюсь об оптимизации пространства: как сделать дом меньше, но при этом сохранить комфорт проживания. И это при том, что мой собственный дом сейчас строится на 150 м²! На самом деле, я бы с радостью построил себе гораздо меньший дом, но, к сожалению, я запоздал со стройкой. Когда строишь в возрасте 40+, начинаешь думать о будущих половинках детей, о внуках, и хочешь не хочешь, площадь дома начинает расти. А вот если бы я строил в 20-25 лет, когда дети ещё только в планах или совсем крохотные, я бы рассматривал дом до 100 м². Размышляя на тему, какой бы дом я построил, будь мне 25, появился очередной мини-проект площадью всего 73.9 м². Почему я так стремлюсь к компактным домам? Причин несколько, и одна из самых главных – я не уверен, что хочу жить за городом постоянно. Более того, я не уверен, что захочу на пенсии жить за городом всё время. Длительная жизнь в мегаполисе даёт о себе знать: с одной стороны, сильно устаёшь от всей этой городской суеты, про
Оглавление

В последнее время я всё чаще задумываюсь об оптимизации пространства: как сделать дом меньше, но при этом сохранить комфорт проживания. И это при том, что мой собственный дом сейчас строится на 150 м²! На самом деле, я бы с радостью построил себе гораздо меньший дом, но, к сожалению, я запоздал со стройкой. Когда строишь в возрасте 40+, начинаешь думать о будущих половинках детей, о внуках, и хочешь не хочешь, площадь дома начинает расти. А вот если бы я строил в 20-25 лет, когда дети ещё только в планах или совсем крохотные, я бы рассматривал дом до 100 м². Размышляя на тему, какой бы дом я построил, будь мне 25, появился очередной мини-проект площадью всего 73.9 м².

Одноэтажный дом 74м2
Одноэтажный дом 74м2

Плюсы компактного одноэтажного дома

Почему я так стремлюсь к компактным домам? Причин несколько, и одна из самых главных – я не уверен, что хочу жить за городом постоянно. Более того, я не уверен, что захочу на пенсии жить за городом всё время. Длительная жизнь в мегаполисе даёт о себе знать: с одной стороны, сильно устаёшь от всей этой городской суеты, проблем с парковками, неадекватными соседями и т.д. С другой стороны, так привыкаешь к тому, что все точки притяжения (магазины, кафе, поликлиники) в шаговой доступности, что сложно представить, как будет по-другому, а вдруг не понравится? Отсюда появляется желание построить такой дом, в котором и отдыхать удобно круглый год, и содержать его не накладно.

Ещё один очевидный плюс – стоимость строительства. Небольшой дом гораздо дешевле и быстрее построить, выполнить в нём инженерные и отделочные работы. И, конечно, содержать его гораздо дешевле, в том числе отапливать зимой, когда сам проживаешь в городе.

Вернёмся к проекту. Этот дом предназначен для молодой семьи, планирующей двух, а может, даже и трёх детей, для гибридного проживания. Основная часть жизни – в городе, где учёба, работа, а лето, каникулы, выходные и праздники – в доме.

Дом размерами 11 на 8.5 метров, площадью всего 73.9 м², по сути, равен небольшой трёхкомнатной квартире. Давайте посмотрим, что удалось поместить в это пространство.

Кухня-гостиная

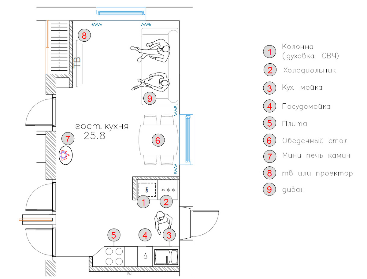
Эта зона состоит из двухлинейной кухни, обеденной зоны и места для отдыха. Кухня укомплектована всем необходимым как для кратковременного отдыха, так и для длительного проживания. Учитывая компактные размеры, посудомоечную машину я разместил на 45 см – для небольшой семьи этого вполне хватает, я с такой живу в квартире уже много лет.

кухня-гостинная
кухня-гостинная

В обеденной зоне размещён раздвижной стол, на плане он отрисован в сложенном состоянии размером 1.2 x 0.9 метра, с возможностью разложить до 1.8-2.2 метра для праздничных застолий.

В центре, напротив стола, я разместил небольшую дровяную печь-камин. С учётом отопления только тёплыми полами, она будет весьма кстати для быстрого прогрева дома.

Также предусмотрено место для просмотра ТВ или проектора, расположившись на небольшом диванчике (на плане размер дивана 2.3 x 1.1 метра), который при необходимости можно разложить, получив дополнительное спальное место для гостей.

Детские спальни

В этом проекте я решил по-новому взглянуть на организацию детских комнат. Основная идея — создание гибкого пространства, которое адаптируется к меняющимся потребностям детей.

Гибкое пространство для игр и уединения

Две детские спальни, практически идентичные по размеру, разделены раздвижной дверью-пеналом, которая полностью уходит в стену. Это решение позволяет при необходимости объединять комнаты в одно большое пространство для совместных игр. При этом у каждого ребенка сохраняется своя личная территория и зона ответственности, где он учится поддерживать порядок.

Детская комната
Детская комната

Каждая комната площадью чуть более 9 квадратных метров достаточно просторна для размещения всего необходимого: учебной зоны, системы хранения и детской кровати (на схеме изображена кровать размером 1.9x0.8 метра). Однако настоящая ценность заключается в возможности легко трансформировать эти помещения.

От совместного сна к самостоятельности

Помимо игр, раздвижная дверь решает и проблему детских страхов. В самом юном возрасте перегородку можно держать открытой, позволяя детям чувствовать себя в безопасности. По мере взросления, когда приходит время приучать детей к самостоятельности, дверь можно закрывать, постепенно формируя у них привычку спать в своей комнате.

Хозяйская спальня

Основная спальня для родителей площадью 13.3 м² спроектирована с учетом максимального комфорта. Она оптимального размера, с удобными подходами к кровати, вместительным встроенным шкафом для одежды и телевизором, расположенным на идеальном расстоянии для просмотра.

хозяйская спальня
хозяйская спальня

Для обеспечения полноценного отдыха и приватности крайне важно уделить внимание звукоизоляции перегородки между хозяйской и детскими спальнями. Отлично зарекомендовали себя конструкции из специальных листов ГКЛ (минимум по два листа с каждой стороны) на независимых каркасах, заполненные шумоизоляционными материалами. Да, такая перегородка будет иметь толщину не менее 150 мм, но ее преимущества в виде тишины и покоя между спальней и детской неоспоримы.

Прихожая, ванная, топочная, санузел.

Прихожая площадью 6.6 м² оборудована шкафом размером 1.2x0.6 м и открытой вешалкой с пуфом, что обеспечивает удобство при входе.

Топочная спроектирована с учетом всех норм для размещения газового котла, требуемый объем помещения — не менее 15 м³. Если подключение газа не планируется, помещение можно разделить на кладовку и комнату для установки электрокотла, бойлера, коллекторов теплого пола и других инженерных систем.

Прихожая, топочная ваннаю и с.у.
Прихожая, топочная ваннаю и с.у.

Ванная комната и санузел в данном проекте раздельные. Несмотря на небольшие размеры, они полностью соответствуют функциональности аналогичных помещений в городских квартирах.

Заключение

Этот проект не претендует на универсальность, и для постоянного проживания площадь, возможно, стоило бы увеличить. Однако для тех, кто не готов полностью расставаться с городской жизнью, этот вариант представляется весьма перспективным. Он предлагает продуманные решения, которые сочетают в себе функциональность, комфорт и гибкость, адаптируясь к потребностям современной семьи.

А на этом все, ставьте лайки, подписывайтесь на канал, оставляйте комментарии.

Также вам может быть интересно: