Найти в Дзене

Как выбрать планировку каркасного дома под себя и построить недорогой дом в 2026 году: честный разбор без иллюзий

Большинство статей про каркасные дома пишут люди, которые никогда их не строили. Поэтому там — красивые рендеры, общие слова и советы уровня «выберите удобную планировку». А реальность другая:
люди боятся ошибиться, боятся переплатить, боятся, что дом окажется неудобным, холодным или слишком дорогим в эксплуатации. Я собрал то, что действительно важно — нюансы, которые обычно узнают только после ошибок, на основе своих ошибок , когда строил дом своими руками. Большинство выбирает планировку глазами. Это ошибка.
Правильный подход — через сценарии жизни. Мы так же можем помочь Вам с выбором,например, не только отчертить планировку, но и расставить мебель под Ваш образ жизни. Представьте один обычный день вашей семьи и отметьте: Теперь сравните это с планировкой.
Если хотя бы один сценарий «ломается» — планировка не ваша. Хранение.
Если в проекте нет кладовой, гардеробной, техпомещения — дом будет захламлён через месяц.
Минимум: Это дешевле, чем потом покупать шкафы и городить пристрой
Оглавление

Большинство статей про каркасные дома пишут люди, которые никогда их не строили. Поэтому там — красивые рендеры, общие слова и советы уровня «выберите удобную планировку».

А реальность другая:
люди боятся ошибиться, боятся переплатить, боятся, что дом окажется неудобным, холодным или слишком дорогим в эксплуатации.

Я собрал то, что действительно важно — нюансы, которые обычно узнают только после ошибок, на основе своих ошибок , когда строил дом своими руками.

1. Как понять, что планировка подходит именно вам: метод, который экономит сотни тысяч

Большинство выбирает планировку глазами. Это ошибка.
Правильный подход —
через сценарии жизни. Мы так же можем помочь Вам с выбором,например, не только отчертить планировку, но и расставить мебель под Ваш образ жизни.

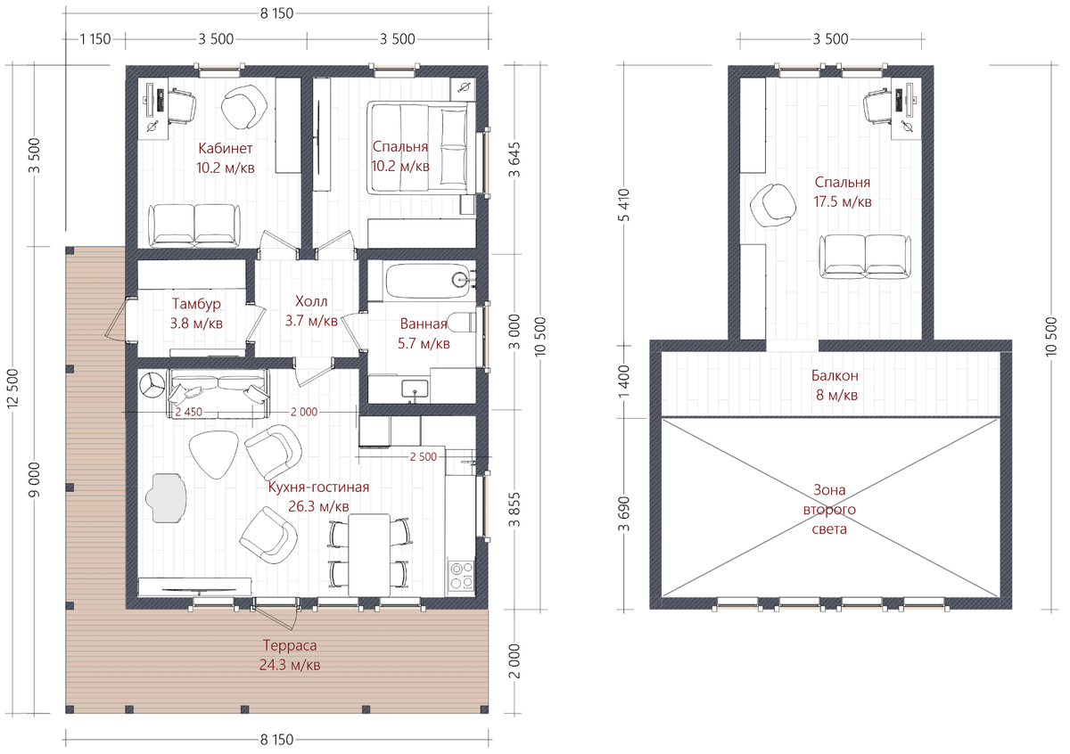
пример планировки
пример планировки

Уникальная фишка: «24 часа в доме»

Представьте один обычный день вашей семьи и отметьте:

  • где вы просыпаетесь
  • куда идёте первым делом
  • где завтракаете
  • где работаете
  • где дети играют
  • где сушится бельё
  • где стоит пылесос
  • где вы отдыхаете вечером

Теперь сравните это с планировкой.
Если хотя бы один сценарий «ломается» — планировка не ваша.

Нюанс, о котором забывают 90% людей

Хранение.
Если в проекте нет кладовой, гардеробной, техпомещения — дом будет захламлён через месяц.
Минимум:

  • 3 м² под хранение сезонных вещей
  • 2 м² под технику
  • 1 м² под бытовую химию

Это дешевле, чем потом покупать шкафы и городить пристройки.

2. Как выбрать стиль дома, чтобы он не устарел и не удорожил стройку

Стиль — это не про моду. Это про конструктив.
Некоторые стили удорожают дом на 20–40%, хотя выглядят «простыми».

Фишка: стиль должен совпадать с конструктивом

  • Барнхаус — отлично дружит с каркасом
  • Сканди— идеально для небольших домов
  • Минимализм — без скрытых скрытых узлов
  • Классические дома с двускатной крышей — без сложных деталей - отличный выбор

Вывод: выбирайте стиль, который не конфликтует с технологией. На нашем сайте отфильтрованы стили домов по сериям и можно посмотреть как они отличаются и ценой и внешним видом

Нюанс: большие окна — это не только красиво

Это:

  • +30% к стоимости фасада
  • +нагрузка на отопление
  • +вентиляция должна быть продуманной

Но если окна расположить грамотно — дом будет светлым и экономичным.

3. Как построить недорогой дом в 2026 году: честные правила экономии

Экономия — это не «дешёвые материалы».
Экономия — это
правильные решения на старте.

Правило трёх удорожаний — объяснение простыми словами

Есть одна важная вещь, о которой почти никто не говорит, пока человек не вляпается в стройку.
Любой «красивый элемент» в доме — эркер, сложная крыша, выступ, ниша, декоративная фигура —
удорожает дом не один раз, а трижды.

Вот как это работает:

1. Дороже построить

Любая нестандартная форма = больше материалов, больше работы, больше времени.
Простой прямоугольник строится быстро и дешево.
Эркер или ломаная крыша — это уже «ювелирка».

2. Дороже утеплить

Все выступы, углы, изломы — это мостики холода.
Чтобы дом не промерзал, туда уходит больше утеплителя, мембран, герметизации.
И всё это стоит денег.

3. Дороже обслуживать

Сложные формы быстрее изнашиваются:

  • больше стыков — больше мест, где может протечь
  • сложная крыша — дороже ремонт
  • эркер — больше окон, больше откосов, больше проблем

То есть вы платите не только при строительстве, но и каждый год, пока живёте в доме.

Нюанс: маленький дом ≠ тесный дом

Дом 70–85 м² может быть комфортнее, чем 120 м², если:

  • нет лишних коридоров
  • кухня-гостиная объединены
  • спальни компактные
  • есть кладовая
-2
-3

4. Как разбить стройку на этапы и въехать в дом за год: реальный рабочий план

Большинство людей застревают на этапе «всё сразу».
Правильный подход —
поэтапность.

Этап 1. Проект + геология + смета (1 месяц)

Без геологии — риски по фундаменту, как минимум сделайте пробное исследование грунта.
Без сметы — стройка растянется.

Этап 2. Фундамент (2–3 недели)

Лучшие варианты для каркасника:

  • свайно-ростверковый
  • УШП (если бюджет позволяет)

Этап 3. Каркас + крыша + окна (1–2 месяца)

На этом этапе дом уже закрыт от осадков.

Этап 4. Инженерка (1 месяц)

Самая важная часть:

  • вентиляция
  • отопление
  • электрика
  • водоснабжение

Этап 5. Черновая отделка (1 месяц)

Утепление, пароизоляция, ГКЛ.

Этап 6. Чистовая отделка (2–3 месяца)

Можно жить и доделывать.

5. Как понять, что дом действительно «ваш»: тест из 5 вопросов

Перед утверждением проекта задайте себе:

  1. Могу ли я жить в этом доме, если отключат интернет и телевизор
  2. Есть ли место, где можно побыть одному
  3. Удобно ли будет стареть в этом доме
  4. Реально ли отапливать такую площадь
  5. Хватает ли мест хранения

Если 4 из 5 — «да», проект подходит.

А какой ВАЖНЫЙ вопрос добавили ли вы к нашему тесту?- напишите в комментарии

-4

Главный вывод

Построить недорогой, удобный и современный каркасный дом в 2026 году — реально.
Но только если вы:

  • выбираете планировку под свою жизнь
  • не гонитесь за модой
  • понимаете, где экономить, а где нельзя
  • строите поэтапно

Поможем правильно подобрать дом, адаптировать дом под Вас, совместно с Вами спланировать план строительства, пишите - консультация бесплатная.