Добавить в корзинуПозвонить
Найти в Дзене
Эстетика Эпох

Тихий модернизм: Карло Скарпа, гробница для семьи Бриони. Архитектура бессмертия.

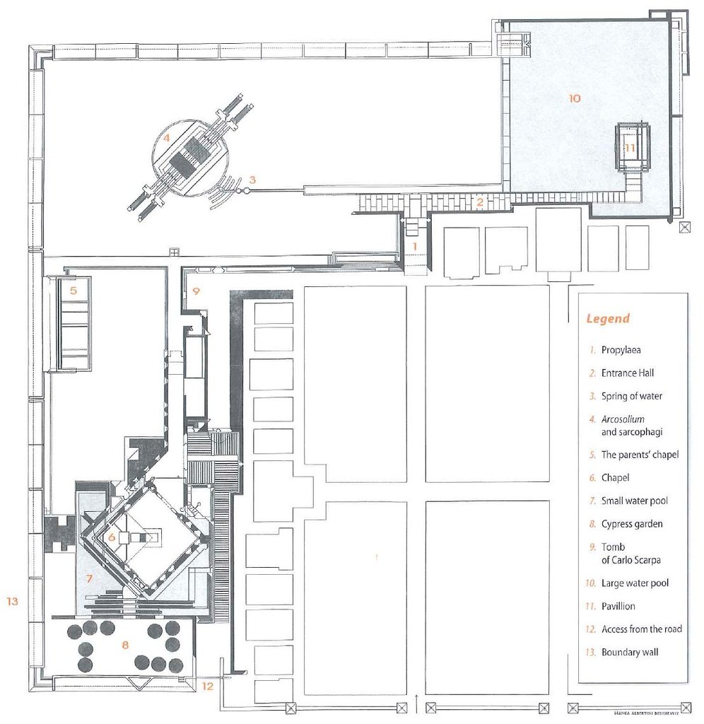
В тихом уголке кладбища Сан-Вито в Альтиволе покоится один из самых проникновенных шедевров Карло Скарпы — гробница рода Бриони. Это не просто усыпальница, а пространственная медитация о жизни, памяти и вечности, выполненная рукой мастера, для которого архитектура была языком философии. Когда семья Бриони из Тревизо обратилась к Скарпе в 1960-х годах, они сделали осознанный выбор. Они искали не строителя, а художника, способного превратить место памяти в произведение искусства. Бриони принадлежали к той просвещённой итальянской буржуазии, которая ценила не показную роскошь, а глубину и подлинность. Они предоставили архитектору редкую творческую свободу, доверив ему самое сокровенное — фамильную память. Скарпа, в свою очередь, подошёл к задаче с величайшей ответственностью. К этому времени он уже был зрелым мастером, чей уникальный стиль — синтез венецианской традиции, японской эстетики ваби-саби и современного модернизма — сформировался полностью.
Его метод работы был поч
Оглавление

Гробница рода Бриони: Архитектура как застывшая память

В тихом уголке кладбища Сан-Вито в Альтиволе покоится один из самых проникновенных шедевров Карло Скарпы — гробница рода Бриони. Это не просто усыпальница, а пространственная медитация о жизни, памяти и вечности, выполненная рукой мастера, для которого архитектура была языком философии.

-2

Архитектор и заказчик: диалог доверия

Когда семья Бриони из Тревизо обратилась к Скарпе в 1960-х годах, они сделали осознанный выбор. Они искали не строителя, а художника, способного превратить место памяти в произведение искусства.

-3

Бриони принадлежали к той просвещённой итальянской буржуазии, которая ценила не показную роскошь, а глубину и подлинность. Они предоставили архитектору редкую творческую свободу, доверив ему самое сокровенное — фамильную память.

Часовня
Часовня

Скарпа, в свою очередь, подошёл к задаче с величайшей ответственностью. К этому времени он уже был зрелым мастером, чей уникальный стиль — синтез венецианской традиции, японской эстетики ваби-саби и современного модернизма — сформировался полностью.


Часовня. Интерьер
Часовня. Интерьер

Его метод работы был почти ремесленным: он чувствовал материалы, часами подбирал камень, считал падение света частью композиции.

Часовня. Интерьер
Часовня. Интерьер

Материальная поэзия

Гробница представляет собой архитектурный диалог между двумя мирами. Два параллельных бетонных саркофага, накрытых массивными плитами тёмного камня (вероятно, базальта или тёмного мрамора), покоятся на общем основании. Между ними — узкий, точно рассчитанный проём.

Гробница с двумя саркофагами
Гробница с двумя саркофагами

Этот зазор — не пустота, а смысловой центр композиции: граница, которая одновременно разделяет и связывает, переход, который становится мостом.

Гробница с двумя саркофагами
Гробница с двумя саркофагами

Мастерство Скарпы проявляется в деталях, которые превращают конструкцию в поэзию:

Диалог материалов: Шероховатая, "честная" фактура бетона контрастирует с отполированной гладкостью тёмного камня. Этот контраст говорит о разности, но и о единстве.

-9

Игра света и воды: Скарпа рассчитал падение света так, чтобы в разное время суток тени рисовали на поверхности меняющиеся узоры. Желобки для стока воды включают стихию в композицию, напоминая о течении времени.

-10

Абсолютная точность: Каждый стык, каждый крепёж, каждый угол продуман и выполнен с ювелирной точностью. Ничего случайного, ничего лишнего — только чистая форма, несущая смысл.

-11

Гробница не подавляет тяжестью смерти. Она излучает просветлённую печаль и достоинство. Это пространство для тихого диалога с ушедшими, где архитектура направляет чувства, но не диктует их.

-12

Семья в камне: память как наследие

Для рода Бриони это место стало фамильным алтарём, воплощением преемственности поколений. Два саркофага — возможно, супругов или представителей разных поколений — говорят о связи, которая сильнее смерти. Их параллельность означает равенство перед вечностью, а общее основание — неразрывность рода.

-13

Скарпа создал не монумент отдельной личности, а архитектурный гимн семейной памяти как коллективной истории. Гробница Бриони — это каменная книга, где вместо слов — пропорции, материалы и свет. Она рассказывает о том, что память может быть не бременем, а благословением, не тяжёлым камнем, а лёгким, почти парящим напоминанием.

-14

Примечательно, что всего в нескольких десятках метров от гробницы Бриони покоится сам Карло Скарпа. Его могила, спроектированная сыном Тобиа, представляет собой разительный и осмысленный контраст с творением для Бриони. Это не бетонная композиция, а простой, массивный блок светлого камня "pietra di Vicenza" — того самого песчаника, который использовал в своих постройках архитектор эпохи Возрождения Андреа Палладио, духовный учитель Скарпы.

Захоронение Карло Скарпы
Захоронение Карло Скарпы

Это соседство придаёт месту особую завершённость. Мастер вечно пребывает рядом со своим творением, наблюдая, как свет, который он так тщательно рассчитывал для Бриони, играет на камнях. Но главным героем этого пространства остаётся именно гробница Бриони — законченный, совершенный шедевр, в котором философия Скарпы нашла своё чистейшее выражение. Простое надгробие архитектора служит лишь тихим постскриптумом, напоминанием о скромности творца перед лицом созданной им вечной красоты.

-16

Гробница рода Бриони сегодня — больше чем частное захоронение. Это общечеловеческий памятник, говорящий на универсальном языке гармонии и памяти. Она напоминает, что истинная архитектура не просто создаёт стены, а строит мосты между временем и вечностью, между потерей и любовью, которая, обретая форму в камне, становится бессмертной.

-17

Екатерина Серёжина

Стеклянный дом Миса Ван дер Роэ: любовная драма и архитектура
Эстетика Эпох25 февраля 2025