Добавить в корзинуПозвонить
Найти в Дзене

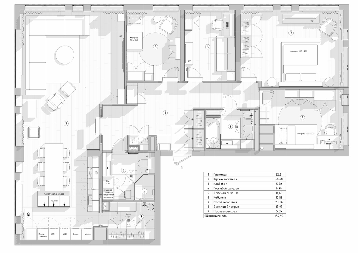
Разбор интерьера для семьи с двумя детьми в ЖК «ONYX»

Проект создавался для молодой семьи с двумя детьми, в которой также предусмотрено место и для пятого ее члена — корги. Заказчики хотели просторную квартиру с гостевой комнатой, отдельным рабочим местом и большой зоной хранения для одежды, так как это всегда насущная проблема для семей с детьми. Также, им хотелось добавить интересных цветов в их будущий интерьер. Заказчики отдали предпочтение не столь популярному сейчас стилю — лофт, который, однако, отвечает их запросам как нельзя лучше — приветствует интересные цветовые решения, нестандартные, где-то «сырые» отделочные материалы, а также дает волю фантазии и остается, при всем этом, уютным. Визитная карточка квартиры — большая кухня-гостиная площадью 60 кв м. Кухня имеет свою небольшую кладовую, которую можно использовать как место для хранения круп, банок с вареньем и заготовок на зиму. Доступ к ней простой — через сдвижную дверь. Кухня-гостиная получилась с большим количеством естественного света, поэтому ее интерьер выглядит более
Оглавление

Проект создавался для молодой семьи с двумя детьми, в которой также предусмотрено место и для пятого ее члена — корги.

Заказчики хотели просторную квартиру с гостевой комнатой, отдельным рабочим местом и большой зоной хранения для одежды, так как это всегда насущная проблема для семей с детьми. Также, им хотелось добавить интересных цветов в их будущий интерьер.

Заказчики отдали предпочтение не столь популярному сейчас стилю — лофт, который, однако, отвечает их запросам как нельзя лучше — приветствует интересные цветовые решения, нестандартные, где-то «сырые» отделочные материалы, а также дает волю фантазии и остается, при всем этом, уютным.

Кухня-гостиная

Визитная карточка квартиры — большая кухня-гостиная площадью 60 кв м. Кухня имеет свою небольшую кладовую, которую можно использовать как место для хранения круп, банок с вареньем и заготовок на зиму. Доступ к ней простой — через сдвижную дверь.

Кухня-гостиная получилась с большим количеством естественного света, поэтому ее интерьер выглядит более спокойным, чем в других помещениях. В качестве акцентов мы использовали терракотовый цвет в различных оттенках: для дивана, кресла, комода и обеденных стульев.

Саму кухню мы оформили по правилам минимализма, использовались светлые тона и дерево в оттенке тобако, так как заказчики попросили подобрать интересное и богатое по текстуре дерево для пола и мебели. А зону ТВ выделили кирпичной стеной.

Мастер-спальня

Мастер-спальня и кухня-гостиная получились очень похожими по задумке оформления интерьера. Здесь, также, много естественного света и за изголовьем кровати присутствует кирпичная кладка.

Так как мастер-спальня довольно просторная и равна 23 м², мы смогли расположить широкую кровать прямо в центре комнаты.

Санузлы

В этой квартире мы расположили два санузла. В гостевом находится душевая и зона постирочной, сбольшой вертикальной сушкой и хранением. В мастер-санузле мы также разместили большое хранение, еще одну сушку, ванную и биде.

Здесь была использована терракотовая плитка-кабанчик с еще более мелкой плиткой на заказ в верхнем ряду кладки. В этих помещениях удалось подружить сразу две акцентных плитки и микроцемент.

Детская старшего сына

Это детская комната старшего сына. Она уже начинает отвечать формирующимся увлечениям ребенка — здесь нашлось место для турника, рабочего места, большого хранения для книг, игрушек и одежды.

Оттенок зеленого для этой детской был выбран по желанию заказчиков. Также они решили самостоятельно нанести рисунки на стены.

Детская младшего сына

Детская младшего ребенка чуть поменьше и имеет площадь 11 м². На кресле около кровати можно расположиться, чтобы почитать сказку перед сном. Здесь предусмотрено достаточное хранение для игрушек, в которые можно поиграть в центре комнаты. Также, на вырост спланировано место для рабочего стола — подобно кабинету, с окном с левой стороны от сидящего к столу.

Эта детская наполнена уже имеющейся у заказчиков мебелью, центром композиции стала стена у кровати с яркими обоями и декоративной панелью.

Кабинет / гостевая

Эту комнату мы с заказчиками решили отдать под кабинет, который еще может быть использован, как полноценная гостевая комната.

В отделке кабинета мы решили активно использовать приглянувшийся заказчикам дуб табако, хорошо сочетающийся с более грубоватой, лофтовской декоративной штукатуркой.

Прихожая

Так как у нас был запрос добавить яркие цвета, мы решили добавить терракотовый цвет и выделили им зону прихожей. Единый яркий акцент по стене с входной дверью и фасадам шкафов притягивает взгляд, но не слишком надоедает, так как остальные стены прихожей-коридора сделаны более нейтрально — в декоративной штукатурке темно-бежевого цвета.

Этот интерьер — пример того, как можно учесть запросы всей семьи, не теряя стиль и характер.

Мы в студии дизайна Екатерины Костыриной разрабатываем проекты, где комфорт начинается с первых шагов. Помогаем сделать пространство не просто красивым, а по-настоящему удобным и под ваш образ жизни.

📩 Если хотите обсудить свой проект — оставьте заявку для бесплатной консультации с руководителем студии!

Подписывайтесь на наш телеграм-канал, там еще больше интересного о дизайне интерьера — https://t.me/+CNljda01fGwyNjJi

__________________________________

Наш сайт:

Студия дизайна интерьера Екатерины Костыриной

Следите за нами и в других социальных сетях:
ВКонтакте
Pinterest
YouTube
RuTube

#дизайн #интерьер #дизайнинтерьера #дизайнквартиры #интерьерквартиры #интерьердома #дизайндома #дизайнпроект #ремонт #авторскийдизайн #екатеринакостырина #сумомидушой