Найти в Дзене

Зачем нужен проект электрики: интересные факты, о которых мало кто задумывается ⚡

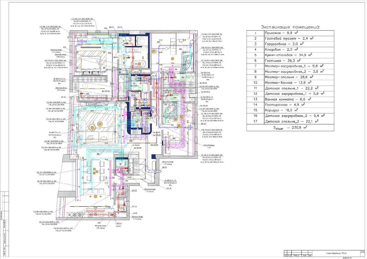
Проект электрики — это не «бумажки для галочки» и не прихоть строителей.
Это основа безопасного и надёжного ремонта 🏠 Многие думают: «Да что там сложного — кинуть провода и поставить розетки».
Но реальность другая. Современная квартира — это десятки потребителей: техника, тёплые полы, кондиционеры, бойлеры, освещение, умный дом. Без расчёта нагрузок система работает на пределе 🔥 📌 Интересный факт:
Большинство проблем с электрикой (перегрев, выбивание автоматов, запах гари) возникают именно там, где не было проекта. Почему мы всегда делаем проект электрики и не работаем без чертежей:
⚡ рассчитываются реальные нагрузки на линии
⚡ заранее понятно, какие автоматы и УЗО нужны
⚡ правильно собирается щит — без сюрпризов
⚡ исключается перегрев кабелей и риск возгорания Без схемы щита и расчётов невозможно дать гарантию. А мы за неё отвечаем.
Работа «на глаз» — это хаос. А хаос в электрике может стоить очень дорого. Проект электрики позволяет:
✔ избежать переделок
✔ сэкономить на ремонте в

Проект электрики — это не «бумажки для галочки» и не прихоть строителей.
Это основа
безопасного и надёжного ремонта 🏠

Многие думают: «Да что там сложного — кинуть провода и поставить розетки».
Но реальность другая. Современная квартира — это десятки потребителей: техника, тёплые полы, кондиционеры, бойлеры, освещение, умный дом. Без расчёта нагрузок система работает
на пределе 🔥

📌 Интересный факт:
Большинство проблем с электрикой (перегрев, выбивание автоматов, запах гари) возникают именно там, где не было проекта.

Почему мы всегда делаем проект электрики и не работаем без чертежей:
⚡ рассчитываются реальные нагрузки на линии
⚡ заранее понятно, какие автоматы и УЗО нужны
⚡ правильно собирается щит — без сюрпризов
⚡ исключается перегрев кабелей и риск возгорания

Без схемы щита и расчётов невозможно дать гарантию. А мы за неё отвечаем.
Работа «на глаз» — это хаос. А хаос в электрике может стоить очень дорого.

Проект электрики позволяет:

✔ избежать переделок
✔ сэкономить на ремонте в будущем
✔ безопасно пользоваться всей техникой
✔ быть спокойным за свой дом и семью

Мы уверены: хороший ремонт начинается с грамотной инженерии, а не с красивых розеток на стене 😄

Если вам нужен качественный ремонт под ключ и надёжная электрика по всем правилам — обращайтесь. Мы работаем только по проекту и отвечаем за результат.

📞 Контакты для связи:
+7 (987) 411-77-04 (звонки, Telegram)

#ремонт16 #ремонтподключ #электрика #проектэлектрики #ремонтквартиры #строительство #дизайнинтерьера #безопасностьдома #ремонтказань