Найти в Дзене

Идеальный первый дом: Разбор планировки с кухней-гостиной и тремя комнатами

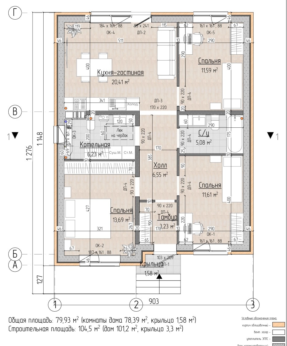
Этот проект — идеальный выбор для тех, кто ищет баланс между компактной площадью и полноценным функционалом. Лаконичный кирпичный дом площадью 79,93 м² (по внутренним помещениям) или 118,5 м² (в расширенном варианте с террасой) спроектирован так, чтобы обеспечить максимальный комфорт для семьи из 3–4 человек. Внешний вид дома сочетает в себе надежность кирпичного домостроения и современную эстетику: Внутреннее пространство разделено на четкие функциональные зоны, что позволяет эффективно использовать каждый квадратный метр: Свяжитесь с нами по вопросам строительства, проектирования и ипотеки: Новые проекты и новости строительного рынка публикуем ежедневно, подпишитесь на канал "Домовой"!
Оглавление

Рациональность в каждом метре

Этот проект — идеальный выбор для тех, кто ищет баланс между компактной площадью и полноценным функционалом. Лаконичный кирпичный дом площадью 79,93 м² (по внутренним помещениям) или 118,5 м² (в расширенном варианте с террасой) спроектирован так, чтобы обеспечить максимальный комфорт для семьи из 3–4 человек.

Дом построен СК "Домовой" (г. Краснодар) в КП "Николино-Парк"
Дом построен СК "Домовой" (г. Краснодар) в КП "Николино-Парк"

Экстерьер: Современная классика

Внешний вид дома сочетает в себе надежность кирпичного домостроения и современную эстетику:

  • Двухцветный фасад: Облицовка выполнена из кирпича контрастных оттенков — глубокого шоколадного в нижней части и теплого песочного в верхней, что визуально облегчает конструкцию.
  • Лаконичные формы: Четырехскатная темная кровля и строгая геометрия окон придают дому аккуратный и завершенный вид.
  • Продуманные детали: Входная группа оформлена небольшим крыльцом, защищенным от осадков.

Планировка: Территория комфорта

Внутреннее пространство разделено на четкие функциональные зоны, что позволяет эффективно использовать каждый квадратный метр:

Проект разработан архитектором СК "Домовой" (г. Краснодар)
Проект разработан архитектором СК "Домовой" (г. Краснодар)
  • Дневная зона: Светлая кухня-гостиная площадью 20,41 м² или 36,86 м² (в зависимости от выбранной модификации). Это сердце дома, где семья проводит большую часть времени.
  • Приватная зона: Три уютные изолированные спальни площадью от 11,59 м² до 13,69 м². Расположение комнат обеспечивает тишину и личное пространство для каждого.
  • Хозяйственный блок: В проекте предусмотрены все необходимые технические помещения — отдельная котельная (6,12–6,23 м²) и просторный санузел (5,08–6,83 м²).

Свяжитесь с нами по вопросам строительства, проектирования и ипотеки:

Новые проекты и новости строительного рынка публикуем ежедневно, подпишитесь на канал "Домовой"!

  • +7 (928) 460-60-04 клиентский менеджер
  • +7 (989) 27-36-888 главный специалист по ипотечному кредитованию
  • 8 (800) 23-478-23 звонок по РФ бесплатный
  • офис г. Краснодар, ул. Тепличная, 62/1, корп. 5
  • наш сайт https://domovoy.online/
Домовой - строительство домов и проектирование | Дзен