Добавить в корзинуПозвонить
Найти в Дзене

О долговечности деревянных домов — на реальном примере

Мы уже рассказывали про деревянный дом Сканди. Его построила финская компания Honka около 15 лет назад. За это время дом сменил трёх владельцев и почти 12 лет простоял без отопления и отделки. За ним не ухаживали, не обслуживали, фактически — просто оставили. И всё же дом сохранился в хорошем состоянии. Внутри мы полностью обновили инженерные коммуникации и выполнили отделку. Снаружи понадобилось совсем немного времени и вложений, чтобы вернуть дому аккуратный, ухоженный вид. Классическая финская архитектура — компактные помещения и невысокие потолки, продуманные для энергосбережения. Дом будет использоваться в дачном формате, и именно в таком режиме он максимально комфортен для заказчиков. Деревянный дом — это про надёжность, если он построен правильно.
Деревянный дом Сканди
Деревянный дом Сканди

Мы уже рассказывали про деревянный дом Сканди. Его построила финская компания Honka около 15 лет назад.

За это время дом сменил трёх владельцев и почти 12 лет простоял без отопления и отделки. За ним не ухаживали, не обслуживали, фактически — просто оставили. И всё же дом сохранился в хорошем состоянии.

Внутри мы полностью обновили инженерные коммуникации и выполнили отделку. Снаружи понадобилось совсем немного времени и вложений, чтобы вернуть дому аккуратный, ухоженный вид.

Классическая финская архитектура — компактные помещения и невысокие потолки, продуманные для энергосбережения. Дом будет использоваться в дачном формате, и именно в таком режиме он максимально комфортен для заказчиков.

Деревянный дом — это про надёжность, если он построен правильно.

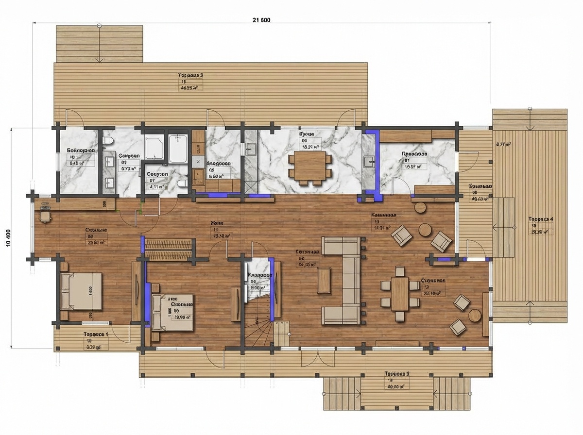
План первого этажа деревянного дома Сканди
План первого этажа деревянного дома Сканди
План второго этажа деревянного дома Сканди
План второго этажа деревянного дома Сканди
В деревянном доме Сканди есть открытая терраса во всю длину дома
В деревянном доме Сканди есть открытая терраса во всю длину дома
На заднем дворе деревянного дома запланирован открытый подогреваемый бассейн
На заднем дворе деревянного дома запланирован открытый подогреваемый бассейн
-6