Добавить в корзинуПозвонить
Найти в Дзене
Миллион Мелочей

5 этапов ремонта в новостройке.

Дом сдан. Заветные ключи получены. Теперь у вас есть квартира, пустая и совершенно неподготовленная для жизни. А также – множество планов и идей, как превратить её в свое тёплое и уютное место отдыха. В этой статье вы узнаете, на каком этапе стоит обращаться к дизайнерам за дизайн-проектом? Почему важно изучить всю документацию перед планированием ремонта? И в чем разница черновой и чистовой отделки. Как бы скучно это ни звучало, но прежде всего необходимо распланировать будущий ремонт. Это поможет понять, какие работы предстоит выполнить, в какой последовательности, какие инструменты для этого понадобятся и самое важное – во сколько все обойдется. Документы и схемы. Чтобы избежать проблем в будущем, внимательно изучите техническую документацию квартиры до начала каких-либо работ. Необходимо убедиться, что все коммуникации: вода, электричество или газ соответствуют нормам и требованиям безопасности. К тому же, если вы соберетесь делать перепланировку, вы сразу увидите несущие конструкц
Оглавление

Дом сдан. Заветные ключи получены. Теперь у вас есть квартира, пустая и совершенно неподготовленная для жизни. А также – множество планов и идей, как превратить её в свое тёплое и уютное место отдыха.

В этой статье вы узнаете, на каком этапе стоит обращаться к дизайнерам за дизайн-проектом? Почему важно изучить всю документацию перед планированием ремонта? И в чем разница черновой и чистовой отделки.

Подготовительный этап.

Как бы скучно это ни звучало, но прежде всего необходимо распланировать будущий ремонт. Это поможет понять, какие работы предстоит выполнить, в какой последовательности, какие инструменты для этого понадобятся и самое важное – во сколько все обойдется.

Документы и схемы. Чтобы избежать проблем в будущем, внимательно изучите техническую документацию квартиры до начала каких-либо работ. Необходимо убедиться, что все коммуникации: вода, электричество или газ соответствуют нормам и требованиям безопасности. К тому же, если вы соберетесь делать перепланировку, вы сразу увидите несущие конструкции и сможете получить официальное разрешение на снос некоторых стен.

Фото из открытых источников в интернете
Фото из открытых источников в интернете

Подбор бригады рабочих. Если вы решите нанимать строительную бригаду для ремонта, рекомендуем ознакомиться с этой статьей. В ней мы подробно расписали, на что стоит обратить внимание, чтобы получить качественную услугу по приемлемой цене и в оговоренные сроки.

Фото из открытых источников в интернете
Фото из открытых источников в интернете

Закупка материалов. Заранее закупитесь строительными и отделочными материалами, инструментами и дополнительными подручными средствами для первоначального этапа ремонта. Это поможет избежать задержек в работе из-за отсутствия нужных компонентов. Также учитывайте сроки поставок и докупайте заканчивающиеся материалы заранее.

Фото из открытых источников в интернете
Фото из открытых источников в интернете

Очистка квартиры. Если вы собираетесь ломать или достраивать стены – это как раз тот самый этап. Все громкие, шумные и грязные работы проводятся в это время. После чего необходимо тщательно промыть помещение. Очистить пол и стены от пыли и грязи. Поменять или демонтировать защиту на окнах и дверях. Чем качественнее проведена уборка, тем быстрее и красивее будет проходить дальнейший ремонт.

Фото из открытых источников в интернете
Фото из открытых источников в интернете

Черновые работы.

Черновая отделка — это фундамент, на котором строится весь дальнейший ремонт. Поэтому крайне важно подойти к этому этапу с должной ответственностью и вниманием.

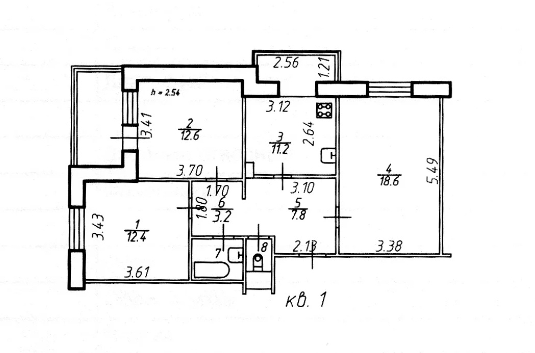
План и коммуникации. На этом этапе уже стоит продумать схематичное расположение основных предметов интерьера. Это необходимо для грамотной разводки электрики и водоснабжения. Где расположатся розетки и выключатели, куда планируете монтировать раковину, будет ли унитаз в санузле иметь пьедестал. Все это важные детали, от которых зависит прокладка коммуникаций.

Фото из открытых источников в интернете
Фото из открытых источников в интернете

Пол и стены. Следующий этап – стяжка пола. Чтобы любое напольное покрытие ложилось легко, ровно и без проблем, не скрипело и не проваливалось – пол должен быть идеально ровным. Не стоит экономить на этом этапе, ведь от него зависит качество и долговечность всего ремонта. Далее хорошо изучите стены в новостройке. Нуждаются ли они в дополнительном выравнивании? Штукатурка стен позволит любому финишному покрытию лечь ровно и не портить внешний вид комнат.

Дисконтную карту в магазины ТВК «Миллион Мелочей» можно оформить по ссылке (https://passl.ink/hW8Lp)

Фото из открытых источников в интернете
Фото из открытых источников в интернете

Чистовой ремонт.

Этот этап ремонта один из самых приятных. Во время него ваше жилище начинает приобретать свой конечный вид, наполняться цветом и стилем. Уже на этом этапе можно обратиться за помощью к дизайнерам для составления полноценного дизайн-проекта, либо же определиться с основными цветами самостоятельно.

После того, как стены стали ровными и готовыми к финишному покрытию, предстоит определиться, что это будет. Обои, краска, декоративная штукатурка, панели – подойдет любой из вариантов, который покажется вам наиболее красивым. Главное, не забудьте сначала покрыть стены грунтовкой. Это обеспечит лучшее сцепление с поверхностью.

Теперь пришла очередь напольных покрытий. Внимательно ознакомьтесь с каждым вариантом и техникой, чтобы выбрать то, что подойдет именно вам.

Завершающим аккордом чистовой отделки является установка межкомнатных дверей и оконных рам.

Фото из открытых источников в интернете
Фото из открытых источников в интернете

Дизайн интерьера.

Поздравляем. На данном этапе у вас уже есть готовый чистый лист для творчества и воплощения любых идей. Если у вас уже есть четкий план расстановки мебели – прекрасно. Но, если вы все еще сомневаетесь и выбираете, советуем обратиться к дизайнерам. В мебельных магазинах часто работают профессионалы, которые помогут бесплатно составить для вас варианты дизайна по размерам вашей квартиры. Ведь на данном этапе важно не только продумать функциональность каждого элемента интерьера, но и то, как он будет сочетаться с общей концепцией дома.

При самостоятельной разработке дизайна учитывайте следующие факторы:

Размер каждого помещения. Необходимо зафиксировать длину и ширину всех стен, высоту потолков, размеры оконных и дверных проёмов, расстояния до инженерных коммуникаций. Особое внимание стоит уделить нишам, выступам, перепадам уровней пола и потолка.

Функциональные зоны. Определите заранее, где расположить рабочее место, зону отдыха, обеденный стол. Это позволит оптимально распределить пространство и избежать хаотичной планировки.

Расположение окон и дверей. Для комфорта человек должен беспрепятственно видеть, кто входит в комнату. От установки дивана спиной ко входу и рабочего стола лицом к стене лучше отказаться.

Фото из магазина Mr. Doors
Фото из магазина Mr. Doors

Выбор мебели.

Мебель лучше начинать выбирать от большего к меньшему. Соответственно, сначала купите кухонный гарнитур, шкаф в прихожую, диван для гостиной, кровать в спальню и так далее. Далее интерьер выстраивается именно вокруг этой мебели.

Качество мебели также играет решающую роль. Оно напрямую влияет на срок службы и безопасность использования. Предпочтение стоит отдавать проверенным производителям и материалам, устойчивым к износу.

Не забывайте про освещение. Правильно подобранные светильники не только выделят ключевые зоны и создадут нужную атмосферу, но и подчеркнут красоту мебели.

Последний штрих ремонта – декор. Наполните ваш интерьер необычными деталями, раскрывающими вашу индивидуальность. Чем больше в квартире будет «вас», тем уютнее будет в ней находиться.

Фото из магазина Mr. Doors
Фото из магазина Mr. Doors

За фотографии и информацию для статьи благодарим дизайнера Анну Рыбину и магазин Mr.Doors в ТЦ «Миллион Мелочей» по адресу м. Бибирево, ул. Пришвина, 26. Еще больше полезных статей по ремонту и обустройству дома читайте на канале Миллион Мелочей: