Добавить в корзинуПозвонить
Найти в Дзене
INMYROOM

Как на 35 м² разместили полноценную двушку

Большая кухня, гостиная, спальня и много хранения Эта квартира находится в блочном доме в Басманном районе Москвы. Дизайнер Кристина Абраменкова купила ее с целью дальнейшей перепродажи. Новый интерьер, полный света и уюта, искусно сочетает французский шик, ностальгические советские мотивы и богемный стиль бохо. Многие вещи были переделаны своими руками. Стоимость преображения составила 1 миллион 700 тысяч рублей. Изначально планировка предусматривала изолированную кухню и одну большую комнату. Но Кристина превратила ее в мини-двушку, обустроив отдельную спальню и гостиную. Также в квартире есть кухня, прихожая, совмещенный санузел и просторная лоджия. Кухня площадью 9,6 кв. м обставлена гарнитуром, собранным из готовых модулей. Выбор пал на бюджетный белый вариант, поскольку этот цвет выигрышно смотрится в любом интерьере и легко адаптируется к разным стилям. Эргономичное решение с размещением шкафов лишь вдоль одной стены позволило создать ощущение простора, а открытая полка на смежн
Оглавление

Большая кухня, гостиная, спальня и много хранения

Эта квартира находится в блочном доме в Басманном районе Москвы. Дизайнер Кристина Абраменкова купила ее с целью дальнейшей перепродажи. Новый интерьер, полный света и уюта, искусно сочетает французский шик, ностальгические советские мотивы и богемный стиль бохо. Многие вещи были переделаны своими руками. Стоимость преображения составила 1 миллион 700 тысяч рублей.

Румтур этой квартиры (25 минут)

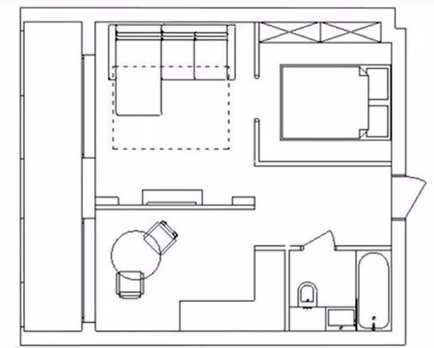
О планировке

Изначально планировка предусматривала изолированную кухню и одну большую комнату. Но Кристина превратила ее в мини-двушку, обустроив отдельную спальню и гостиную. Также в квартире есть кухня, прихожая, совмещенный санузел и просторная лоджия.

 📷
📷

О кухне

Кухня площадью 9,6 кв. м обставлена гарнитуром, собранным из готовых модулей. Выбор пал на бюджетный белый вариант, поскольку этот цвет выигрышно смотрится в любом интерьере и легко адаптируется к разным стилям.

Эргономичное решение с размещением шкафов лишь вдоль одной стены позволило создать ощущение простора, а открытая полка на смежной стене добавила функциональности и визуальной легкости. Кухня оснащена современной встроенной техникой, обеспечивающей комфорт и удобство в приготовлении пищи. Освещение, представленное светильниками, подвешенными над рабочей поверхностью на разной высоте, создает игру света и тени, привнося в интерьер динамичность и характер.

 📷
📷
 📷
📷
 📷
📷

На полу уложен ламинат «елочкой», а белые стены служат нейтральным фоном, позволяя акцентировать внимание на деталях и мебели. Во всей квартире произведена замена окон. Подоконник, изготовленный из мебельного щита, покрытого морилкой, стал стильным и практичным элементом. Батарея, скрытая в декоративном коробе с ажурным экраном, не нарушает эстетики пространства.

У окна уютно расположилась обеденная зона с круглым столом и стульями в стиле бохо, гармонирующая с люстрой и другими элементами декора, создавая атмосферу непринужденной элегантности.

 📷
📷
 📷
📷

О гостиной

Часть гостиной была трансформирована в уютную спальную зону, отделенную перегородкой. В оставшейся части комнаты расположился просторный угловой диван, служащий как местом для отдыха, так и дополнительным спальным местом для гостей. Ковер с динамичным геометрическим рисунком эффектно перекликается с черными акцентами, расставленными в интерьере. Дополняет диван журнальный столик — обычная лавка, которая при необходимости может послужить дополнительным посадочным местом.

Винтажная люстра, прошедшая реставрацию, обрела новую жизнь благодаря черной краске и элегантным плафонам. Особую ценность представляет тумба, доставшаяся Кристине от бабушки; обновленная покраской и новой фурнитурой, она стала ярким акцентом интерьера. Рядом расположился уютный уголок для чтения с плетеным креслом и торшером, приглашающий отдохнуть с любимой книгой. В гостиной также органично вписаны ниши-стеллажи, предназначенные для хранения книг и демонстрации декоративных элементов.

 📷
📷
 📷
📷
 📷
📷

О спальне

Спальная зона, деликатно отделенная от гостиной перегородкой из ГКЛ, представляет собой уединенный уютный уголок. Стены, потолок и плинтусы, выкрашенные в глубокий, насыщенный оттенок, создают ощущение камерности, словно обволакивая мягким коконом безмятежности.

Центральное место в спальне занимает деревянная кровать, застеленная постельным бельем из натурального хлопка, дарящим ощущение комфорта и нежности. Для хранения вещей предусмотрен шкаф с раздвижными фасадами, который помогает сохранить пространство спальни организованным и функциональным, не загромождая его.

 📷
📷
 📷
📷

О прихожей

Полы во входной зоне облицованы плиткой, а стены окрашены в тот же насыщенный синий цвет, что и в спальне, создавая ощущение целостности и гармонии с остальным пространством. Прихожая, несмотря на скромные размеры, максимально функциональна: здесь разместились вместительный шкаф для хранения, вешалка для верхней одежды, удобный пуф и большое зеркало, добавляющее воздуха и света.

 📷
📷

О санузле

Для отделки стен в ванной комнате использована классическая квадратная плитка, серая затирка которой подчеркивает лаконичный стиль. Оригинальная выкладка плитки придает интерьеру скандинавские нотки. Остальные стены и потолок окрашены в синий цвет. Сантехника выполнена в элегантном черном цвете, добавляя контраст и современность. Бохо-шторка добавляют уюта, а стильная картина скрывает сантехнический люк, не нарушая эстетики пространства.

 📷
📷
 📷
📷

Хотите, чтобы ваш проект был опубликован на INMYROOM? Присылайте фотографии интерьера на wow@inmyroom.ru.

Сейчас читают:

Спасибо, что читаете нас! ❤️

Если материал был полезен — поставьте лайк и отправьте другу.

А ещё больше интерьерных идей, советы экспертов и классные румтуры в нашем Telegram-канале. Подписывайтесь, вам точно понравится!