Найти в Дзене
ТАК МОЖНО | 1530mm.design

Квартира для посуточной аренды на реальном примере: когда интерьер начинает работать на владельца

Этот проект я делала для квартиры под посуточную сдачу. И это совершенно не то же самое, что разработка дизайна для жизни на постоянке. Здесь интерьер становится инструментом. Тем, что влияет на отзывы, на возвраты гостей, на фотографии в объявлениях и в итоге на доход. Ниже расскажу, на что я всегда обращаю внимание в проектах под аренду и какие решения заложены именно в этой квартире. В посуточной квартире важны не квадратные метры, а логика движения.
Где человек оставит сумку. Куда он положит ключи. Где переоденется. Куда сядет вечером с чаем. Где разложит вещи, если заехал на неделю. Где сможет немного поработать.
Здесь планировка сразу дала хороший потенциал: возможность изолировать спальню, полноценная кухня, отдельная гостиная зона, компактный, но функциональный санузел.
Я всегда стараюсь, чтобы квартира читалась интуитивно. Чтобы гостю было практически очевидно, что где находится и как лучше пользоваться окружающими предметами. Но при этом мне важно, чтобы квартиру было ин
Оглавление

Этот проект я делала для квартиры под посуточную сдачу. И это совершенно не то же самое, что разработка дизайна для жизни на постоянке.

Здесь интерьер становится инструментом. Тем, что влияет на отзывы, на возвраты гостей, на фотографии в объявлениях и в итоге на доход.

Ниже расскажу, на что я всегда обращаю внимание в проектах под аренду и какие решения заложены именно в этой квартире.

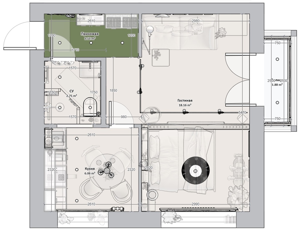
Квартира. 30 кв.м. Вид сверху
Квартира. 30 кв.м. Вид сверху

Первое, что я оцениваю ─ планировку и сценарии

В посуточной квартире важны не квадратные метры, а логика движения.

Где человек оставит сумку. Куда он положит ключи. Где переоденется. Куда сядет вечером с чаем. Где разложит вещи, если заехал на неделю. Где сможет немного поработать.

Здесь планировка сразу дала хороший потенциал: возможность изолировать спальню, полноценная кухня, отдельная гостиная зона, компактный, но функциональный санузел.

Я всегда стараюсь, чтобы квартира читалась интуитивно. Чтобы гостю было практически очевидно, что где находится и как лучше пользоваться окружающими предметами. Но при этом мне важно, чтобы квартиру было интересно рассматривать, чтобы она запоминалась на фоне безликих, нейтральных, уже привычных нам всем интерьеров.

Второй слой ─ атмосфера, а не просто стиль

В проектах под аренду я почти никогда не делаю холодные, стерильные интерьеры.

Здесь много природных оттенков, сложного зеленого, теплого дерева, текстиля, живых фактур. Квартира не выглядит временной. Она выглядит жилой. Такой, где хочется пожить, а не просто переночевать.

Это напрямую влияет на восприятие ценности. Такие интерьеры чаще сохраняют, фотографируют, упоминают в отзывах. А это уже бесплатный маркетинг для собственника.

Третий момент ─ визуальная запоминаемость

Посуточный рынок перегрет одинаковыми интерьерами.

Поэтому я всегда ищу баланс: нейтральная база + характер.

В этом проекте характер создают:

- сложная зеленая гамма

- ботанические мотивы в прихожей

- сочетание современного света и более теплых, домашних форм

- продуманная работа с текстилем

Квартира легко узнается. Она будет хорошо смотреться в объявлениях. А значит ─ чаще привлекать внимание.

Четвертый уровень ─ практичность

Красота в аренде не имеет смысла без выносливости.

Я всегда думаю о том:

- что легко мыть

- что не жалко

- что можно быстро заменить

- что не выйдет из моды за сезон

Здесь много решений, которые выглядят уютно, но при этом логичны для интенсивной эксплуатации: плитка, устойчивая к нагрузкам, простые формы мебели, понятные системы хранения, свет, который решает сразу несколько задач.

Что для меня экспертность в таких проектах

Экспертность в посуточных квартирах ─ это не про тренды.

Это про умение собрать интерьер, который:

- нравится большинству

- запоминается

- комфортен

- экономически разумен при реализации

- допускает подбор заказчиком (арендодателем) похожих элементов по своему бюджету

Важно, когда интерьер не требует постоянных переделок, долго не устаревает морально и поддерживает ценность объекта.

Почему я люблю такие задачи

Потому что здесь дизайн ─ это не про эго дизайнера и его портфолио.

А про человека, который приедет ночью с чемоданом. Про семью, которая заедет на выходные. Про девушку, которая будет пить утренний кофе у окна и удаленно работать за ноутбуком.

И, если им будет спокойно, удобно и приятно ─ значит интерьер свою задачу выполнил.

Что я предложила в качестве непривычной идеи зонирования

Вместо перегородки из реек я предложила сделать шторки и экран проектора. Они создадут хоть какой-то эффект приватности. Если, например, родители спят, их ребенок может на диване смотреть проектор в наушниках, свет и звук от него не будет мешать. При этом слева будет возможность выдвинутый экран обойти, сдвинув одну из шторок. Ну и в целом, как мне кажется, это выглядит интересно при выборе квартиры. Можно сделать несколько рекламных фото для объявления закатным вечером, когда на экране какое-то узнаваемое всеми старое кино. Да и стоят сейчас эти проекторы немного.

В рамках этого проекта подготовила несколько панорам для наглядности

Мне кажется, очень наглядно в дополнение к отдельным ракурсам и планам по помещениям делать интерактивные панорамы. Можно покрутить пальчиком/мышкой самостоятельно или наблюдать за автоматическим движением картинки с комфортной скоростью под музыку. А при определенном энтузиазме можно даже в VR-очках погулять!

Прикладываю ссылки:

1. https://panorama.homestyler.com/v2?m=p&id=t78rY2tfcfnbxyzXYDEpuk&locale=ru_RU

2. https://panorama.homestyler.com/v2?m=p&id=kfvXKv8f8rBEEa1vkgTEwy&locale=ru_RU

3. https://panorama.homestyler.com/v2?m=p&id=pD9SEff6zsNQsKw327pV14&locale=ru_RU

4. https://panorama.homestyler.com/v2?m=p&id=9Zn51DvSFQkW3XTuCpUzWQ&locale=ru_RU

5. https://panorama.homestyler.com/v2?m=p&id=f2L8t7t6VAkD3kjMHeNEoB&locale=ru_RU

6. https://panorama.homestyler.com/v2?m=p&id=qBAyp8EYDjfNvmy89YGqSq&locale=ru_RU

7. https://panorama.homestyler.com/v2?m=p&id=uNDcthUud29vfBkPtCZXij&locale=ru_RU

8. https://panorama.homestyler.com/v2?m=p&id=mRkpocs3DdaThtJeNFnAZ6&locale=ru_RU

9. https://panorama.homestyler.com/v2?m=p&id=vJL8utb8Lgiuzu5wKuT9KE&locale=ru_RU

Если вы планируете квартиру под сдачу

Я всегда работаю с такими объектами не как с декором, а как с системой.

С учетом бюджета, рынка, формата аренды, будущего обслуживания и реальной жизни.

Именно это я считаю своей сильной стороной.

Мой ТГК

Мое расширенное портфолио