Добавить в корзинуПозвонить
Найти в Дзене
lfn_fan

Квартира Никиты: эволюция пространства

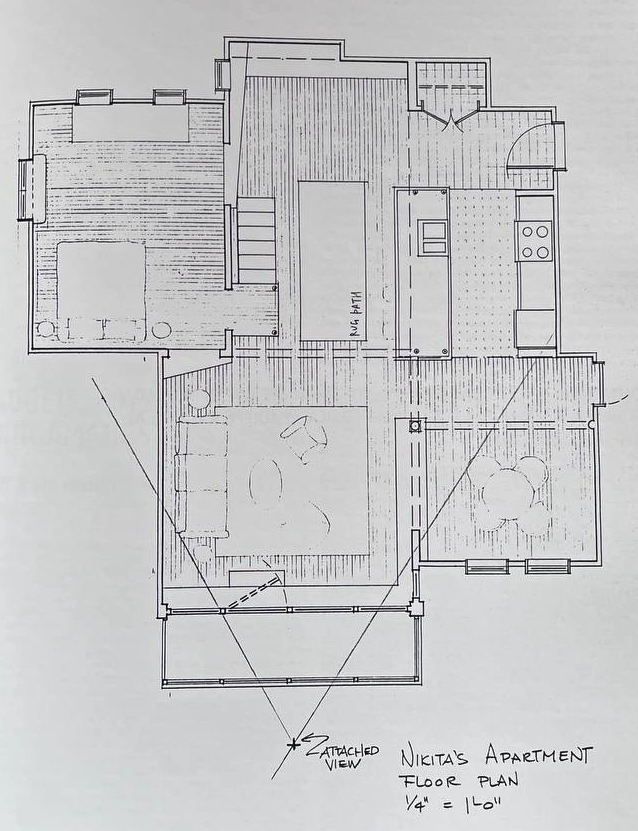
Сегодня я расскажу о том, как дизайнеры сериала «Её звали Никита» создавали декорации для квартиры главной героини и как это пространство менялось в разных сезонах. Статья написана по материалам книги Кристофера Хейна «Внутри Первого Отдела». Квартира Никиты была единственной постоянной декорацией, не являющейся частью Отдела. Для разработки этого пространства дизайнер Рокко Маттео довольствовался лишь самыми скудными указаниями. Сценаристы опасались давать подробные описания, потому что хотели представить Никиту как уличную девчонку, дикую и не имеющую прошлого. Эту квартиру ей просто дали, поэтому никто точно не знал, что она должна в себя включать. Пета Уилсон пришла в сериал с кучей собственных идей о том, какой должна быть Никита. Она полагала, что Никита, будучи дикой натурой, воспротивится тому, что ей дали и куда её определили. Скрепя сердце, мне пришлось позволить Уилсон проводить в квартире всевозможные ритуалы и трансформации. Поначалу я не знал, как к этому относиться, но

Сегодня я расскажу о том, как дизайнеры сериала «Её звали Никита» создавали декорации для квартиры главной героини и как это пространство менялось в разных сезонах.

Статья написана по материалам книги Кристофера Хейна «Внутри Первого Отдела».

Квартира Никиты была единственной постоянной декорацией, не являющейся частью Отдела. Для разработки этого пространства дизайнер Рокко Маттео довольствовался лишь самыми скудными указаниями.

Сценаристы опасались давать подробные описания, потому что хотели представить Никиту как уличную девчонку, дикую и не имеющую прошлого. Эту квартиру ей просто дали, поэтому никто точно не знал, что она должна в себя включать.

Квартира — до заселения туда главной героини
Квартира — до заселения туда главной героини

Пета Уилсон пришла в сериал с кучей собственных идей о том, какой должна быть Никита. Она полагала, что Никита, будучи дикой натурой, воспротивится тому, что ей дали и куда её определили.

Скрепя сердце, мне пришлось позволить Уилсон проводить в квартире всевозможные ритуалы и трансформации. Поначалу я не знал, как к этому относиться, но потом решил, что в каком-то смысле это логично. Она рисовала на стенах, собирала странные артефакты и мастерила разные вещицы.

Никита обустраивает своё личное пространство
Никита обустраивает своё личное пространство

Рокко Маттео:

Как и большинству актёров, ей хотелось с чем-то взаимодействовать в кадре, когда она не произносила реплики. Но так как Никита была не из тех, кто, придя домой после тяжёлого рабочего дня, разваливается на диване, смотрит телевизор и пьёт виски, это вызывало определённые сложности, потому что сценаристы отказывались придумывать ей какие-либо другие хобби. В итоге, квартира стала скорее символом, чем пространством для практических целей.

Этот подход к дизайну пространства — символ, а не быт — становится более выраженным по мере развития сериала и взросления персонажа.

Весь первый сезон она самовыражалась в этом пространстве, и оно стало игровой площадкой и зоной для экспериментов. Но на втором году возникло ощущение — и Пета сама мне об этом сказала — что она больше не будет бунтовать против воли Отдела. Наоборот, чтобы сохранить рассудок, она приняла его эстетику и атмосферу, поэтому её квартира превратилась в прохладное, безмятежное и современное место.
-5

Её желание бунтовать, тревога и нервозность по поводу окружающих вещей словно испарились. Теперь всё сводилось к тому, что она пребывала в медитативном покое с бокалом вина или чашкой чая.

Когда Никита возвращалась домой, это был контраст с любым другим местом, где она бывала — а это всегда были либо светские рауты, либо суета, либо безумие в той или иной форме. С удалением неоновых светильников, переходом на монохромную цветовую гамму и полностью обновленной кухонной зоной из матового стекла и металла, квартира стала ощущаться как «место, которое само может о себе позаботиться». Не то чтобы у неё была экономка или она тратила много времени на уборку пылесосом. Квартира стала похожа на очень стильный гостиничный номер.
-6

Несмотря на успешную трансформацию пространства Никиты, Рокко Маттео всё же жалеет, что бюджет сериала не позволил сделать что-то более масштабное.

Если бы я знал о некоторых сложных постановочных задачах, которые в итоге прописали сценаристы, я бы спроектировал вход иначе. Я надеялся создать атмосферу спокойствия на крыше, где она могла бы смотреть на город, который, по сути, оставила позади. Я пытался смоделировать форму квартиры, по крайней мере, её вид сверху, чтобы привязать её к существующей локации, что дало бы больше связи с реальным миром. Но это стало проблемой; производство просто не смогло вписать это в график съёмок. Чтобы успешно это реализовать, группе пришлось бы выезжать на натурные съемки, а это было непрактично. В результате максимум, что зрители видят из внешнего мира Никиты — это нарисованный городской пейзаж на заднем плане за французскими дверями, которые ведут на полностью обставленное патио — тоже постоянную декорацию. Несмотря на огромный объём работы над деталями «внешнего» компонента квартиры Никиты, зона патио редко использовалась на протяжении всего сериала.
-7

В третьем и четвёртом сезонах квартира Никиты почти не менялась, в ней лишь появлялись более современные вещи или мебель.

Моё мнение.

Мне безумно нравится, что квартира Никиты была символом её внутреннего состояния, а не просто жилым помещением. В каждом сезоне она делала ремонт или какие-то перестановки, и это отражало процессы, происходившие в её психике. Квартира действительно была способом создателей приоткрыть зрителям мысли и чувства Никиты, ведь напрямую об этом почти не говорилось.

Пересматривая первый сезон, у меня сложилось ощущение, что квартира Никиты была похожа на свалку, куда героиня, как сорока, тащила всё, что блестит. Это логично: она не знала, кто она, и она активно искала себя, используя появившиеся ресурсы.

Всё же, мне больше по душе минималистичный стиль более поздних сезонов, который Рокко Маттео назвал «отелем, заботящимся о самом себе». Место для отдыха, без кричащих попыток самовыражения.

Жаль, что очень мало показывали спальную зону в квартире, особенно когда туда начал захаживать Майкл 😁

Почему-то куда чаще показывали кухонный островок, хотя Никита ни разу за ним не готовила. Это было своеобразное место встреч и различных бесед.

Любопытно, что в пятом сезоне у Никиты «отняли» квартиру, и она жила в Отделе. Понятно, что это было связано с техническими сложностями (декорации квартиры разобрали после финала 4 сезона), но всё же это тоже можно принять за символ. Если квартира Никиты была местом её самовыражения и отдыха — символом её души — то в пятом сезоне об этом остались только воспоминания.

В каком сезоне дизайн квартиры Никиты нравится вам больше всего? Пишите в комментариях!