Найти в Дзене

КОМПАКТНАЯ БАНЯ 60 М²: уют, функциональность и стиль

Не всем нужна большая баня - гораздо важнее, чтобы она была удобной и продуманной. Этот проект мы создавали индивидуально для клиента, который хотел небольшую, но вместительную баню, без лишних деталей и перегрузки пространства. Задача была не в типовой варианте, а в создании пространства, где комфортно пользоваться баней круглый год: париться, отдыхать, оставаться с ночёвкой и проводить время с близкими. Площадь проекта - 60 м² бани + 7 м² терраса. При таких размерах баня получилась функциональной и удобной за счёт продуманной планировки. Что внутри Внутри есть всё, чтобы пользоваться баней было удобно и приятно: Даже при компактных размерах баня ощущается просторной и функциональной. ВНЕШНИЙ ВИД Архитектура в минималистичном стиле: Такой внешний вид не зависит от трендов и остаётся актуальным долгие годы. ПОЧЕМУ ДЛЯ БАНИ ВЫБРАЛИ КЛЕЕНЫЙ БРУС Клеёный брус идеально подходит для бань, которые используют регулярно: ИТОГ Даже небольшая баня может быть: ✅ Просторной ✅ Функциональной ✅ Тёп

Не всем нужна большая баня - гораздо важнее, чтобы она была удобной и продуманной.

Этот проект мы создавали индивидуально для клиента, который хотел небольшую, но вместительную баню, без лишних деталей и перегрузки пространства.

Задача была не в типовой варианте, а в создании пространства, где комфортно пользоваться баней круглый год: париться, отдыхать, оставаться с ночёвкой и проводить время с близкими.

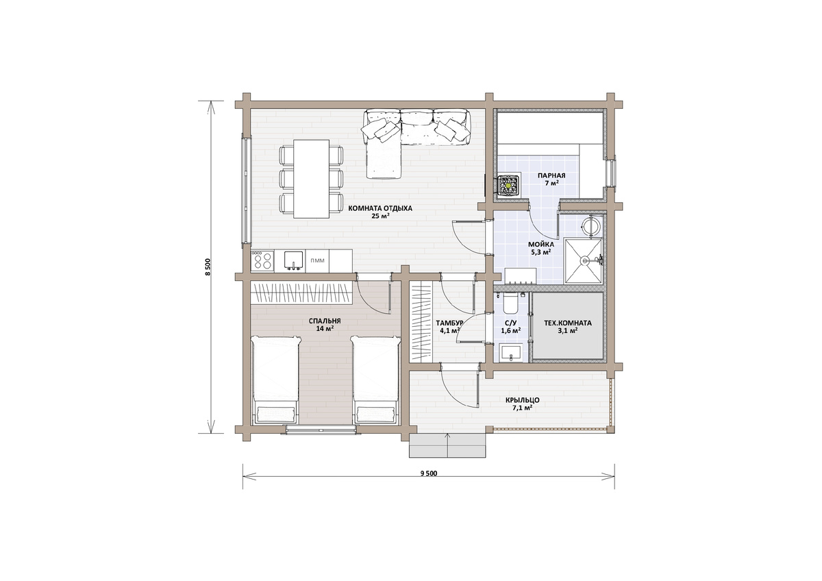
Площадь проекта - 60 м² бани + 7 м² терраса.

При таких размерах баня получилась функциональной и удобной за счёт продуманной планировки.

Что внутри

-2

Внутри есть всё, чтобы пользоваться баней было удобно и приятно:

  • тамбур - сохраняет тепло зимой и защищает основное помещение
  • санузел с техническим помещением - всё под рукой
  • моечная с душевой зоной
  • парная - комфортное пространство с продуманными пропорциями для равномерного распределения тепла
  • спальня - отдельное тихое пространство для отдыха после банных процедур
  • комната отдыха - просторная зона для расслабления всей семьей
  • крытая терраса - отдых в любое время года

Даже при компактных размерах баня ощущается просторной и функциональной.

ВНЕШНИЙ ВИД

Архитектура в минималистичном стиле:

  • односкатная кровля
  • чёткая геометрия
  • натуральные цвета дерева
  • тёмные акценты кровли и конструктивных элементов
  • аккуратная терраса без перегрузки деталями

Такой внешний вид не зависит от трендов и остаётся актуальным долгие годы.

ПОЧЕМУ ДЛЯ БАНИ ВЫБРАЛИ КЛЕЕНЫЙ БРУС

Клеёный брус идеально подходит для бань, которые используют регулярно:

  • Стабильность: не ведёт и не трескается при перепадах температур
  • Тепло: быстро прогревается и долго удерживает тепло
  • Простота: не требует сложной внутренней отделки
  • Долговечность: сохраняет аккуратный вид на годы

ИТОГ

Даже небольшая баня может быть:

✅ Просторной

✅ Функциональной

✅ Тёплой

✅ Аккуратной и гармоничной

Всё решает грамотный проект и правильно выбранный материал.

💭 А что для вас важнее в бане - сама парная или пространство для отдыха?

Пишите в комментариях.