Добавить в корзинуПозвонить
Найти в Дзене
INMYROOM

7 бюджетных и стильных решений, подсмотренных в питерской однушке 35 м²

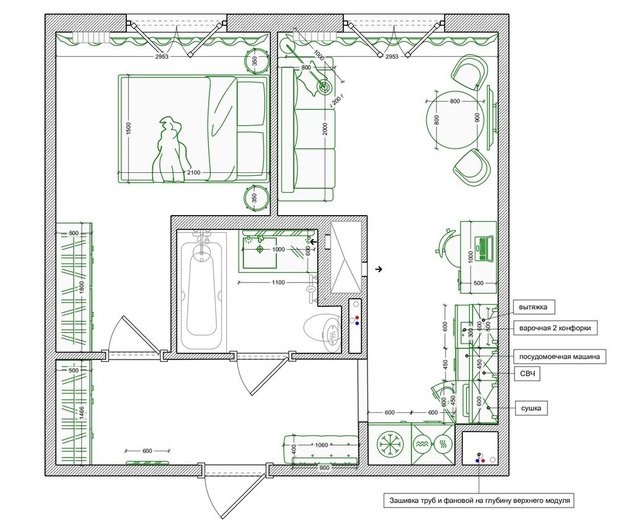
Крутые идеи из проекта дизайнера Команда студии инвестдизайна «50 оттенков интерьера», дизайнеры Татьяна Бельтова и Ксения Лёвина реализовали проект однокомнатной квартиры в новостройке Санкт-Петербурга. Они обустроили светлый изысканный интерьер с парижским вайбом и всем необходимым для комфортного проживания. Показываем классные идеи из проекта, которые вдохновят вас на переделки. Концепция проекта вдохновлена архитектурой района со сталинками и французскими окнами квартиры. Получился микс сталинского ампира и парижского очарования: белые стены с молдингами, черно-белые фотографии, плитка с графичным орнаментом, черная фурнитура и золотые акценты. Это делает небольшую однокомнатную квартиру светлее, просторнее и более атмосферной. Единый цвет на стенах по всей квартире использовали намеренно, так как геометрия помещений очень непростая. Комнаты имеют неправильные формы с выступающими углами, и эти архитектурные особенности «растворили» в чистоте белого цвета, подарив помещениям чисто
Оглавление

Крутые идеи из проекта дизайнера

Фото: Александр Зиновьев.
Фото: Александр Зиновьев.

Команда студии инвестдизайна «50 оттенков интерьера», дизайнеры Татьяна Бельтова и Ксения Лёвина реализовали проект однокомнатной квартиры в новостройке Санкт-Петербурга. Они обустроили светлый изысканный интерьер с парижским вайбом и всем необходимым для комфортного проживания. Показываем классные идеи из проекта, которые вдохновят вас на переделки.

 📷
📷

1. Микс сталинского ампира и французского очарования.

Концепция проекта вдохновлена архитектурой района со сталинками и французскими окнами квартиры. Получился микс сталинского ампира и парижского очарования: белые стены с молдингами, черно-белые фотографии, плитка с графичным орнаментом, черная фурнитура и золотые акценты. Это делает небольшую однокомнатную квартиру светлее, просторнее и более атмосферной.

 📷
📷

2. Единый цвет — ключ к гармонии

Единый цвет на стенах по всей квартире использовали намеренно, так как геометрия помещений очень непростая. Комнаты имеют неправильные формы с выступающими углами, и эти архитектурные особенности «растворили» в чистоте белого цвета, подарив помещениям чистоту и ясность. Молдинги на стенах помогают обозначить зоны: зону гостиной, столовой и домашнего офиса.

 📷
📷

3. Функциональное зонирование

В гостиной выделили место для домашнего офиса, поставив письменный стол и предусмотрев розетки для подключения ноутбука, зарядки телефонов и включения настольной лампы. Таким образом столовая и рабочая зона не смешиваются.

 📷
📷

4. Максимум хранения, минимум визуального шума

В зоне кухни нарастили стену и поставили два больших пенала в нишу, спрятав в них встроенный холодильник и духовку с СВЧ. Таким образом обеспечили максимальное место для хранения и сохранили аккуратный и эстетичный вид зоны готовки.

 📷
📷

5. Дополнительное спальное место

В гостиной предусмотрели широкий диван-кровать. При необходимости он позволит разместить гостей, несмотря на ограниченный метраж квартиры.

 📷
📷

6. Уютная компактная спальня

В спальне очень скромных габаритов поставили кровать 140 см шириной и две миниатюрные тумбочки, чтобы с обеих сторон от кровати остались полноценные проходы. Подвесные светильники рифмуются с акцентной подушкой на кровати. Шторы-блэкаут фланкируют французское окно, а на стене над изголовьем кровати расположили крупноформатную фотографию с изображением настоящего парижского окна с красивой кованой решеткой и распахнутыми ставнями.

 📷
📷

7. Бюджетные решения для ванной

Стены в санузле частично в крупногабаритном керамограните, частично — в покраске специальной водостойкой краской. Этот прием позволяет значительно уменьшить бюджет на плитку, при этом помещение смотрится более «жилым». Этот эффект усилили, повесив парадную люстру.

 📷
📷

Этот проект демонстрирует, что даже в небольшой квартире можно создать стильное, функциональное и комфортное пространство, используя продуманные дизайнерские решения и творческий подход.

Сейчас читают:

Спасибо, что читаете нас! ❤️

Если материал был полезен — поставьте лайк и отправьте другу.

А ещё больше интерьерных идей, советы экспертов и классные румтуры в нашем Telegram-канале. Подписывайтесь, вам точно понравится!