Найти в Дзене
Aqua Fraternitas

Кейс принципиальной схемы противопожарного водоснабжения жилого здания

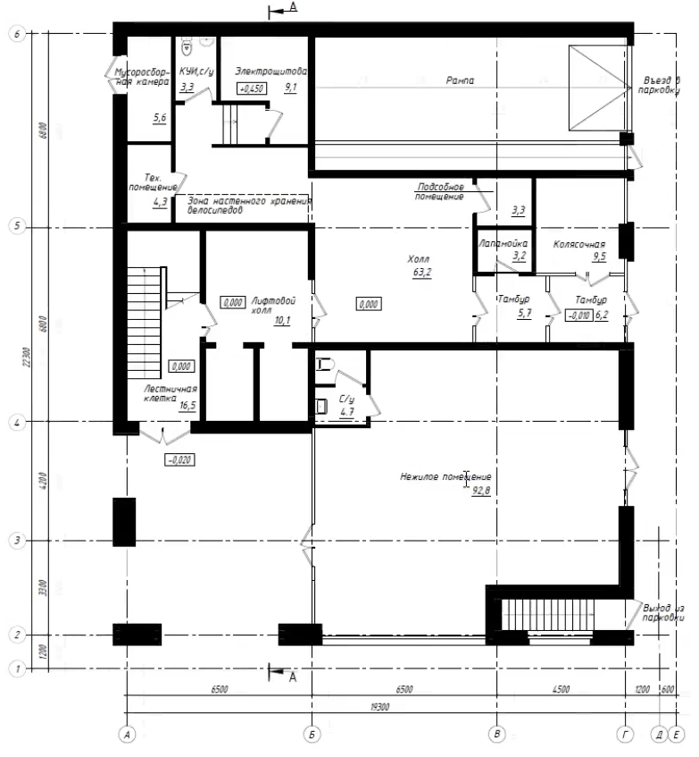
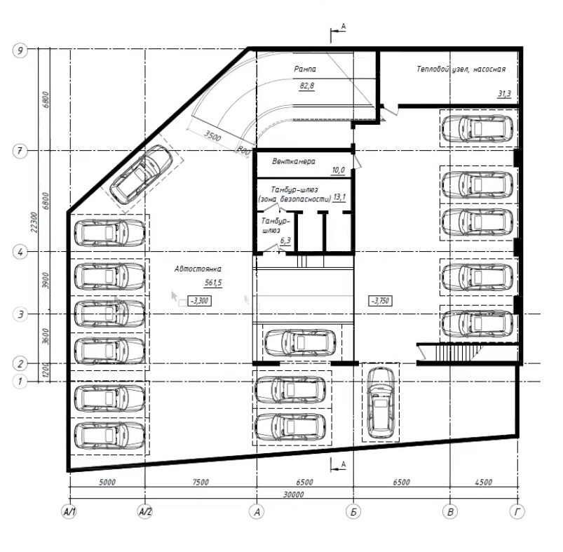
Думаю было бы не честно оставлять данный материал без развернутого комментария, как говорится: "критикуешь - предлагай". Речь идет о проектном решении для здания, изложенного в статье: В данной статье попробую показать, как можно совершенствовать принятые решения, чтобы они соответствовали пунктам НТД. Так же данная статья будет наглядным материалом, как трактуются и реализуются разными специалистами решения. В целом все ИД лежат в презентационных материалах. Исходя из них имеется 2 противопожарных отсека, которые делятся между собой перекрытием на отм. 0.000. По этажности здания понимаем и требование к пожаротушению. Встроенные помещения (1 и 2 этаж) имеют такое же число струй, как и жилая зона (3-14 этаж). Ранее я уже приводил сведения о требуемом кол-ве пожарных струй на тушения здания с такой характеристикой: С планами заморачиваться не будем, работаем только с принципиальной схемой. Отмечу, что принято решение о раздельной сети ВПВ и АПТ. Т.е. наш пожарный отсек в виде подземной а
Оглавление

Думаю было бы не честно оставлять данный материал без развернутого комментария, как говорится: "критикуешь - предлагай". Речь идет о проектном решении для здания, изложенного в статье:

В данной статье попробую показать, как можно совершенствовать принятые решения, чтобы они соответствовали пунктам НТД. Так же данная статья будет наглядным материалом, как трактуются нормы и реализуются решения разными специалистами.

Исходные данные

В целом все ИД лежат в презентационных материалах. Исходя из них имеется 2 противопожарных отсека, которые делятся между собой перекрытием на отм. 0.000. По этажности здания понимаем и требование к пожаротушению. Встроенные помещения (1 и 2 этаж) имеют такое же число струй, как и жилая зона (3-14 этаж). Ранее я уже приводил сведения о требуемом кол-ве пожарных струй на тушения здания с такой характеристикой:

Работа с принципиальной схемой

С планами заморачиваться не будем, работаем только с принципиальной схемой. Отмечу, что принято решение о раздельной сети ВПВ и АПТ. Это означает, что наш пожарный отсек в виде подземной автостоянки будет иметь ПК, запитаные от системы АПТ (объединенный ВПВ+АПТ).

Работа с нормативкой

Повторим пункты из нашей нормативки, а начнем с нашего родного СП30...2020 изм.3:

Так как у нас изм.1 до сих пор не принят, действующим будет СП10...2020:

Из-за п. 6.1.13 приходилось выполнять резерв ПК, итого 2 ПК на этаж. Можно скинуть на логику, что если 1 стояк будет выведен на ремонт, то второй будет работать и обеспечивать ту самую струю. У нас 14 этажей, это минимум 28 ПК. От кольца не отвертишься.

Так же отмечу п. 8.1 СП30 который распространяется на все типы водоснабжения, поэтому мы его учитываем и для ВПВ.

Корректировка принципиальной схемы

Как мы производим совершенствование принятой схемы? Разобью на этапы корректировки.

1. Корректировка обвязки насосной

Начнем с обвязки ПНС. Я привык к отображению единого готового изделия, в состав которого может входить и жокей-насос. Условная граница ПНС не показана (поздно заметил), но условно принимаем по вибровставкам. Так же меняю арматуру с дисковых затворов на задвижку клиновую (по мнению эксплуатации все плохо, но дисковый затвор хуже всего):

2. Корректировка разводки в подвале

Так как нам необходимо кольцевание и разделение колец, выполняем корректировку в подвале. Запитку кольца производим 2мя нитками трубопровода от ПНС, разделяем кольцо на отключаемые участки так же задвижками:

3. Корректировка поэтажной разводки

Корректируем поэтажную разводку. Добавляем ПК, кольцуем, добавляем по верху разделительную задвижку и воздушник:

4. Корректировка соединений колец

Далее интересный момент со стыковкой стояков/опусков с подвальным кольцом. Знаю, что в гражданке в популярных проектных фирмах отсечную арматуру и спускную предпочитают отображать на схемах в полном объеме:

Сравнение до и после

Собственно, общий вид принципиальной схемы ВПВ для нашего здания до корректировки и после:

Дополнительные узлы

Узлы для наглядности разводки в натуре тоже можно привести:

Выводы

Достаточно интересный кейс получился, как мне кажется. В свое время я очень долго штудировал форум абок и различные справочники, чтобы познать все тонкости числа струй и размещения ПК. Не скажу, что подробной информации с наглядными схемами было много, особенно с пояснениями. В свою очередь изучение тонкостей ВПВ мной ведется и по сей день. Поэтому и захотелось реализовать что-то подобное.

Как бы реализовали ВПВ? Чтобы добавили/убрали?

-11
Уважаемый читатель, буду очень рад, если вы поставите статье «нравится» и поделитесь в социальных сетях! Подписывайтесь на канал!

Так же вы можете присоединиться к сообществу в телеграмм и другим площадкам, где выкладываются интересные материалы: