Добавить в корзинуПозвонить
Найти в Дзене

Врываюсь в трудовые будни с новой планировкой и голосованием

😀 Планировка 2го этажа частного дома. Собственники обращались ко мне в октябре за планировкой первого этажа. Второй этаж планировали сделать самостоятельно. Но столкнулись с сложностями. На 30 кв.м. необходимо было разместить: ✅ 2 спальни: основную спальню и детскую ✅ Дополнительное место для сна (раскладное кресло) ✅ Зону ТВ в детской ✅ Гардеробную и много мест хранения ✅ Небольшой стол в спальне ✅ Свободное место для детского столика/шалаша в детской ⛔️Дополнительную сложность создавали: 2 несущие балки практически по середине этажа и 3 панорамных окна вдоль одной стены, из-за которых ограничиваются варианты возведения перегородок. 👉🏻Я предложила 2 варианта, в которых удалось учесть все необходимое. 1й вариант основан на изначальном проекте от застройщика, но улучшен. Мой фаворит - 2й вариант, в нем более "чистая" геометрия комнат. Как всегда, планы и видео с 3д обзором! Какой вариант лучше?)👇🏻 1 вариант - ❤️ 2 вариант - 🔥

Врываюсь в трудовые будни с новой планировкой и голосованием😀

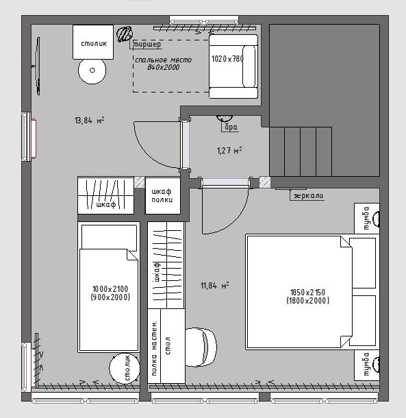
Планировка 2го этажа частного дома.

Собственники обращались ко мне в октябре за планировкой первого этажа. Второй этаж планировали сделать самостоятельно. Но столкнулись с сложностями.

На 30 кв.м. необходимо было разместить:

✅ 2 спальни: основную спальню и детскую

✅ Дополнительное место для сна (раскладное кресло)

✅ Зону ТВ в детской

✅ Гардеробную и много мест хранения

✅ Небольшой стол в спальне

✅ Свободное место для детского столика/шалаша в детской

⛔️Дополнительную сложность создавали: 2 несущие балки практически по середине этажа и 3 панорамных окна вдоль одной стены, из-за которых ограничиваются варианты возведения перегородок.

👉🏻Я предложила 2 варианта, в которых удалось учесть все необходимое.

1й вариант основан на изначальном проекте от застройщика, но улучшен.

Мой фаворит - 2й вариант, в нем более "чистая" геометрия комнат.

Как всегда, планы и видео с 3д обзором!

Какой вариант лучше?)👇🏻

1 вариант - ❤️

2 вариант - 🔥

-2
-3