Найти в Дзене
INMYROOM

Санузел 5 м², который влюбляет в себя с порога

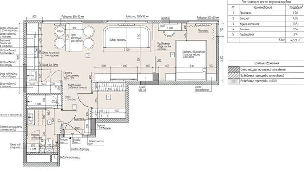
Здесь золото, дерево и камень звучат как единый ансамбль Эту евродвушку площадью 42 м² дизайнер Елена Марченко вместе с супругом приобрела для долгосрочной аренды. Интерьер задумывался как уютное и самодостаточное пространство для одного человека или пары с акцентом на продуманную планировку и нестандартную палитру. Ванная комната, как и вся квартира, получилась выразительной: теплые древесные текстуры, светлый керамогранит с рисунком оникса и матовое золото задают тон, а грамотное освещение делает помещение не только стильным, но и по‑настоящему комфортным. Главная фишка — выбор крупноформатной плитки с фактурой оникса. Она задействована и на стенах, и на полу, благодаря чему интерьер воспринимается монолитно и целостно. В зависимости от угла и освещения поверхность меняется: от молочно‑дымчатой до глубокого лазурного с янтарными прожилками. Переходы в рисунке поддержаны ровной геометрией мебели — тумбы с ящиками под раковиной и шкафов над стиральной машиной. Акценты расставлены через

Здесь золото, дерево и камень звучат как единый ансамбль

Эту евродвушку площадью 42 м² дизайнер Елена Марченко вместе с супругом приобрела для долгосрочной аренды. Интерьер задумывался как уютное и самодостаточное пространство для одного человека или пары с акцентом на продуманную планировку и нестандартную палитру.

Ванная комната, как и вся квартира, получилась выразительной: теплые древесные текстуры, светлый керамогранит с рисунком оникса и матовое золото задают тон, а грамотное освещение делает помещение не только стильным, но и по‑настоящему комфортным.

 📷Дизайн: Елена Марченко
📷Дизайн: Елена Марченко

Главная фишка — выбор крупноформатной плитки с фактурой оникса. Она задействована и на стенах, и на полу, благодаря чему интерьер воспринимается монолитно и целостно. В зависимости от угла и освещения поверхность меняется: от молочно‑дымчатой до глубокого лазурного с янтарными прожилками. Переходы в рисунке поддержаны ровной геометрией мебели — тумбы с ящиками под раковиной и шкафов над стиральной машиной.

 📷Дизайн: Елена Марченко
📷Дизайн: Елена Марченко

Акценты расставлены через фурнитуру: душ, смеситель, полотенцесушитель и кнопка инсталляции выбраны в оттенке благородного матового золота. Они поддерживают теплую гамму дерева и придают интерьеру ощущение дорогого бутикового номера.

Для тумбы под раковиной использован шпонированный фасад, который не боится влаги — практичное решение для ванной, где при этом не хотелось отказываться от натуральных материалов.

 📷Дизайн: Елена Марченко
📷Дизайн: Елена Марченко

Освещение продумано до мелочей. Над зеркалом — встроенная подсветка, дублирующая дневной свет, а вдоль ванной и под потолком спрятана дополнительная подсветка, создающая мягкое рассеянное свечение. Ниша с полками для косметики в зоне душа тоже освещена — это и удобно, и добавляет уютный акцент в вечернее время.

 📷Дизайн: Елена Марченко
📷Дизайн: Елена Марченко

Наконец, вся техника и система хранения спрятаны максимально аккуратно. За фасадами — стиральная и сушильная машины, полки для бытовой химии и прочих мелочей. Навесной унитаз, тропический душ, гладкие поверхности: благодаря грамотной планировке санузел кажется значительно больше своих пяти метров.

 📷Дизайн: Елена Марченко
📷Дизайн: Елена Марченко

Если бы этот интерьер был гостиничным номером, он получил бы высший балл и за эстетику, и за функциональность. В квартире же он стал еще одной зоной, подтверждающей главный принцип проекта: каждая деталь здесь делает жизнь удобнее и красивее.

Сейчас читают:

Спасибо, что читаете нас! ❤️

Если материал был полезен — поставьте лайк и отправьте другу.

А ещё больше интерьерных идей, советы экспертов и классные румтуры в нашем Telegram-канале. Подписывайтесь, вам точно понравится!