Найти в Дзене
INMYROOM

8 крутых дизайн-решений для обустройства малогабаритки

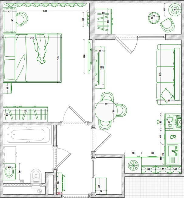
Идеи из проекта дизайнера, которые сделают маленькую квартиру удобной и стильной Жизнь в малогабаритной квартире может быть стильной, функциональной и комфортной! Доказательство тому — проект однушки в Краснодаре площадью всего 38 кв. м. Дизайнеру Любови Карабановой удалось создать уютное и современное пространство с ограниченным бюджетом. Показываем 8 идей из этого проекта, которые, несомненно, заслуживают вашего внимания. Любовь выбрала беспроигрышный вариант для небольшого пространства — светлую базу с добавлением графичных черных элементов. Светлый цвет стен и потолка визуально расширяет пространство, наполняет его воздухом и светом. Черные акценты (светильники, фурнитура, элементы декора) добавляют интерьеру динамики и современного звучания. А теплые терракотовые тона и деликатные голубые вкрапления придают индивидуальность и элегантность. Пространство кухни должно быть не только красивым, но и максимально практичным. В данном проекте была реализована функциональная и лаконичная к
Оглавление

Идеи из проекта дизайнера, которые сделают маленькую квартиру удобной и стильной

Жизнь в малогабаритной квартире может быть стильной, функциональной и комфортной! Доказательство тому — проект однушки в Краснодаре площадью всего 38 кв. м. Дизайнеру Любови Карабановой удалось создать уютное и современное пространство с ограниченным бюджетом. Показываем 8 идей из этого проекта, которые, несомненно, заслуживают вашего внимания.

 📷
📷

1. Гармония в светлых тонах и графичные акценты

Любовь выбрала беспроигрышный вариант для небольшого пространства — светлую базу с добавлением графичных черных элементов. Светлый цвет стен и потолка визуально расширяет пространство, наполняет его воздухом и светом. Черные акценты (светильники, фурнитура, элементы декора) добавляют интерьеру динамики и современного звучания. А теплые терракотовые тона и деликатные голубые вкрапления придают индивидуальность и элегантность.

 📷
📷

2. Функциональная и лаконичная кухня

Пространство кухни должно быть не только красивым, но и максимально практичным. В данном проекте была реализована функциональная и лаконичная кухня без лишних деталей. Светлые фасады шкафов, минималистичная фурнитура и хорошо продуманная система хранения — вот секрет стильной и удобной кухни в малогабаритной квартире.

 📷
📷

3. Рейки как акцент: красивое зонирование

Чтобы придать интерьеру выразительности и зонировать пространство, дизайнер использовала рейки, выкрашенные в сочный цвет. Этот прием отлично работает для выделения обеденной зоны в гостиной и рабочей зоны в спальне. Рейки добавляют ритм, текстуру и визуальный интерес.

 📷
📷

4. Балкон — уютное место для отдыха

Не стоит недооценивать потенциал балкона! Даже на небольшой площади можно создать уютное место для отдыха и релаксации. В этом проекте балкон превращен в мини-лаунж зону с голубыми стульями и журнальным столиком. Идеальное место для утреннего кофе или вечернего чаепития.

 📷
📷

5. Гардеробная за зеркальными дверями

В каждой квартире, особенно в малогабаритной, важна система хранения. В этом проекте гардеробная скрыта за зеркальными дверями. Такое решение позволяет эффективно использовать пространство и визуально расширяет комнату, добавляя в нее света и объема.

 📷
📷

6. Дополнительное спальное место

Раскладной диван – это must-have для однокомнатной квартиры. В данном проекте был выбран яркий терракотовый диван, который обеспечивает дополнительное спальное место, служит уютной зоной для приема гостей и становится ярким акцентом в интерьере.

 📷
📷

7. Акцентные постеры в цветах интерьера

Завершающим штрихом в создании стильного интерьера являются детали. В данном проекте стены в гостиной и в спальне украшены постерами, подобранными в цветах интерьера. Этот простой и бюджетный прием позволяет добавить индивидуальности и характера в любое пространство.

 📷
📷

8. Уютное освещение

В ванной комнате была установлена подсветка зеркала, что создает мягкое и комфортное освещение. Этот прием не только функционален, но и добавляет ванной комнате атмосферности и элегантности.

 📷
📷

Этот проект доказывает, что даже на небольшой площади можно создать стильное, функциональное и уютное пространство. Возьмите на вооружение эти потрясающие идеи и преобразите свою малогабаритку!

Сейчас читают:

Спасибо, что читаете нас! ❤️

Если материал был полезен — поставьте лайк и отправьте другу.

А ещё больше интерьерных идей, советы экспертов и классные румтуры в нашем Telegram-канале. Подписывайтесь, вам точно понравится!