Найти в Дзене
Антон Кондратьев

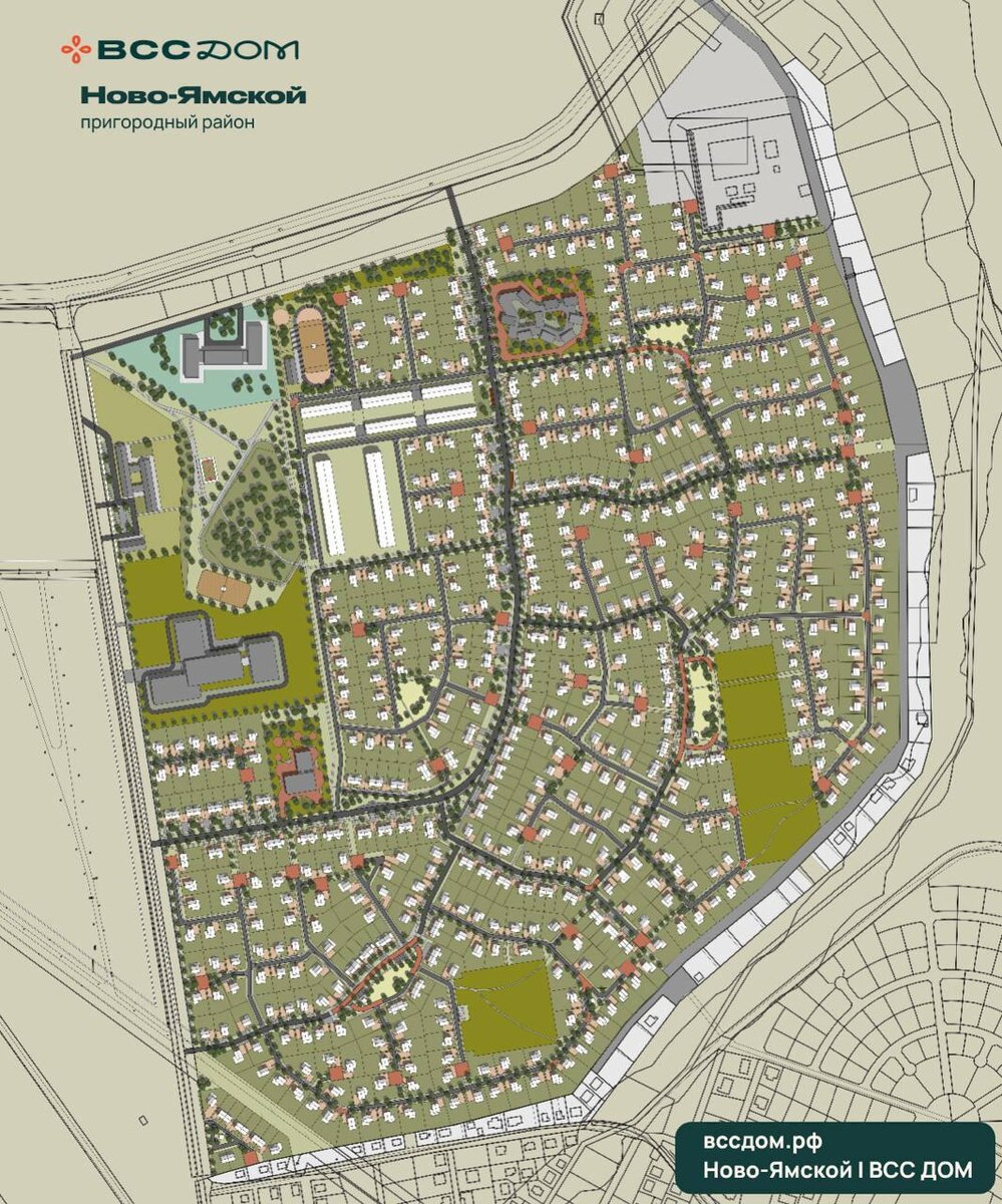
Раньше в пригород переезжали либо «от бедности» (потому что денег на квартиру не хватало, а на «дикий ИЖС» – вполне), либо «от богатства

». Посередине образовался вакуум. Такие проекты, как «Ново-Ямской» в Пивоварихе, призваны его заполнить – дать возможность жить в пригороде людям со средним уровнем дохода. В последние годы на рынке появлялись качественные организованные поселки. Но цена на дом в таких проектах высокая. И это понятно: архитектурная концепция, инфраструктура, благоустройство – все это закладывается в себестоимость. Среднестатистической семье очень сложно себе позволить жить в таком поселке. Наша идея состоит в том, чтобы взять «фишки» бизнес-класса – и перенести их в класс «комфорт». На большой территории это возможно: эффект масштаба дает экономию. Мы очень плотно поработали с продуктом «Ново-Ямского» в 2025 году: разработали въездную зону, благоустройство, профили улиц, прописали правила поселка, архитектурный код и так далее. По тому спросу, который есть, видим: это откликается у людей. Треть участков в первой очереди уже раскуплена. Многие говорят: «Мы даже не рассматривали Пивовариху раньше, а т

Раньше в пригород переезжали либо «от бедности» (потому что денег на квартиру не хватало, а на «дикий ИЖС» – вполне), либо «от богатства». Посередине образовался вакуум. Такие проекты, как «Ново-Ямской» в Пивоварихе, призваны его заполнить – дать возможность жить в пригороде людям со средним уровнем дохода.

В последние годы на рынке появлялись качественные организованные поселки. Но цена на дом в таких проектах высокая. И это понятно: архитектурная концепция, инфраструктура, благоустройство – все это закладывается в себестоимость. Среднестатистической семье очень сложно себе позволить жить в таком поселке.

Наша идея состоит в том, чтобы взять «фишки» бизнес-класса – и перенести их в класс «комфорт». На большой территории это возможно: эффект масштаба дает экономию.

Мы очень плотно поработали с продуктом «Ново-Ямского» в 2025 году: разработали въездную зону, благоустройство, профили улиц, прописали правила поселка, архитектурный код и так далее. По тому спросу, который есть, видим: это откликается у людей. Треть участков в первой очереди уже раскуплена. Многие говорят: «Мы даже не рассматривали Пивовариху раньше, а теперь смотрим – потому что нам нравится ваш продукт, и он нам доступен».

Источник: портал sia.ru.