Добавить в корзинуПозвонить
Найти в Дзене
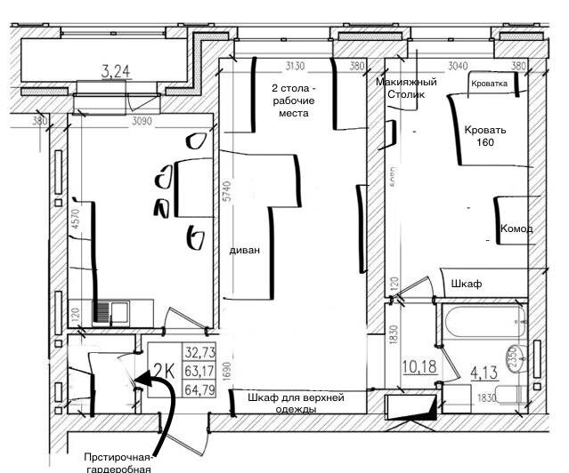
План Нехорошковой

Добрый день, Светлана

! Заранее благодарю за возможный ответ! Прикрепляю 2 фото: 1) без мебели 2) с расстановкой которая у нас сейчас (стену между гостиной и коридором мы убрали) О себе: Мы молодая семья 2 взрослых и маленький ребёнок (5 месяцев). Когда делали ремонт, мы жили вдвоем и часто у нас были большие компании гостей и нам было комфортно в нашей квартире, сейчас родился ребёнок и образ жизни изменился и хотелось бы под него изменить и пространство для жизни, но никак не могу сообразить как лучше сделать, чтобы всем было комфортно Сейчас времени проводим в зале: днем работа (удаленная) и занятия с ребенком, вечером просмотр телевизора, в спальне мы только спим. Что хотелось бы видеть: 1. Родительское спальное место (кровать) 2. 2 рабочих места 3. Макияжное место (желательно с каким то хранением, т к сейчас в одну тумбочку ничего не влазит) 4. Комната для ребенка со спальным местом и игровой зоной и тд 5. Пространство для вечернего отдыха - тв зона 6. Сохранить шкафы для хранения вещей Спасибо!

Добрый день, Светлана!

Заранее благодарю за возможный ответ!

Прикрепляю 2 фото: 1) без мебели 2) с расстановкой которая у нас сейчас (стену между гостиной и коридором мы убрали)

О себе: Мы молодая семья 2 взрослых и маленький ребёнок (5 месяцев).

Когда делали ремонт, мы жили вдвоем и часто у нас были большие компании гостей и нам было комфортно в нашей квартире, сейчас родился ребёнок и образ жизни изменился и хотелось бы под него изменить и пространство для жизни, но никак не могу сообразить как лучше сделать, чтобы всем было комфортно

Сейчас времени проводим в зале: днем работа (удаленная) и занятия с ребенком, вечером просмотр телевизора, в спальне мы только спим.

Что хотелось бы видеть:

1. Родительское спальное место (кровать)

2. 2 рабочих места

3. Макияжное место (желательно с каким то хранением, т к сейчас в одну тумбочку ничего не влазит)

4. Комната для ребенка со спальным местом и игровой зоной и тд

5. Пространство для вечернего отдыха - тв зона

6. Сохранить шкафы для хранения вещей

Спасибо!

-2