Найти в Дзене

СЕМЕЙНАЯ ИПОТЕКА 3,5% - РЕАЛЬНО

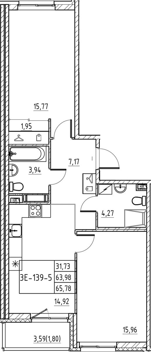
! В своих роликах на ютубе я рассказывал, что в феврале 2026 года изменят семейную ипотеку. 🙈 (Рекомендую ознакомиться, нажав на название ролика, если еще не ознакомились 👇) 📱 ЧТО БУДЕТ НА РЫНКЕ НЕДВИЖИМОСТИ В 2026 ГОДУ?! 🤔 И сейчас лучшее время для того, чтобы воспользоваться программой на старых условиях. 🔥 Я сделал для вас предложение еще и с субсидированной ставкой на 4 года под 3,5% и платежом всего 43 тысячи за двухкомнатную квартиру. 🎁 ✅ Стоимость квартиры - 11 988 405 рублей ✅Первоначальный взнос 20,1% - 2 409 670 рублей ✅Ставка на 4 года - 3,5% ✅Платеж на 4 года - 43 013 рублей ✅Ставка далее - 6% ✅Платеж далее - 55 713 рублей Подробнее ознакомиться с планировкой можно по ссылке (все детали в презентации 👇) 2 комнатная квартира с чистовой отделкой и площадью 65.78 м²! Заинтересовало? 😊 Вы знаете к кому обратиться! 👉 @kirillov_toprealtor

СЕМЕЙНАЯ ИПОТЕКА 3,5% - РЕАЛЬНО!

В своих роликах на ютубе я рассказывал, что в феврале 2026 года изменят семейную ипотеку. 🙈

(Рекомендую ознакомиться, нажав на название ролика, если еще не ознакомились 👇)

📱 ЧТО БУДЕТ НА РЫНКЕ НЕДВИЖИМОСТИ В 2026 ГОДУ?! 🤔

И сейчас лучшее время для того, чтобы воспользоваться программой на старых условиях. 🔥

Я сделал для вас предложение еще и с субсидированной ставкой на 4 года под 3,5% и платежом всего 43 тысячи за двухкомнатную квартиру. 🎁

✅ Стоимость квартиры - 11 988 405 рублей

✅Первоначальный взнос 20,1% - 2 409 670 рублей

✅Ставка на 4 года - 3,5%

✅Платеж на 4 года - 43 013 рублей

✅Ставка далее - 6%

✅Платеж далее - 55 713 рублей

Подробнее ознакомиться с планировкой можно по ссылке

(все детали в презентации 👇)

2 комнатная квартира с чистовой отделкой и площадью 65.78 м²!

Заинтересовало? 😊

Вы знаете к кому обратиться!

👉 @kirillov_toprealtor

-2